松山市西垣生町の土地
掲載情報更新日:2026年05月23日 次回更新予定日:2026年06月06日
- 1,039.80万円
-
- 借入ご希望金額
万円 - 借入期間
年 - 借入金利
% - 月々のお支払い金額
円
- 借入ご希望金額
※ 月々のお支払例は目安の試算となりますので、実際の金額とは異なる場合がございます。詳しくは店舗までお問合わせください。
- 松山市西垣生町
-
伊予鉄バス『三島神社前』 徒歩3分 (約240m)
松山市西垣生町土地 | 物件情報
条件がないからこそ、多様なプランに対応可能!小学校まで徒歩3分以内!お子さまの通学も安心の距離♪
●小学校近くの徒歩3分!お子さまの自由時間も増えてのびのびと過ごせる♪
●建築条件なし!お好きなハウスメーカーや工務店で建築可能♪
●バス停まで徒歩3分!雨の日や荷物が多い日でも移動がスムーズ♪
●ゆとりある広々とした敷地で、理想の暮らしを実現できる♪
●生活に必要な施設が徒歩圏内に集まり、便利で快適な毎日を実現♪
物件の設備
- 公営水道
- 公共下水
物件の特徴
- 更地渡
- 建築条件無
物件詳細情報
| 価格 | 1,039.80万円 | 坪単価 | 坪20.0万円 |
|---|---|---|---|
| 物件種別 | 土地 | ||
| 所在地 | 愛媛県松山市西垣生町 A号地 | ||
| アクセス |
|
||
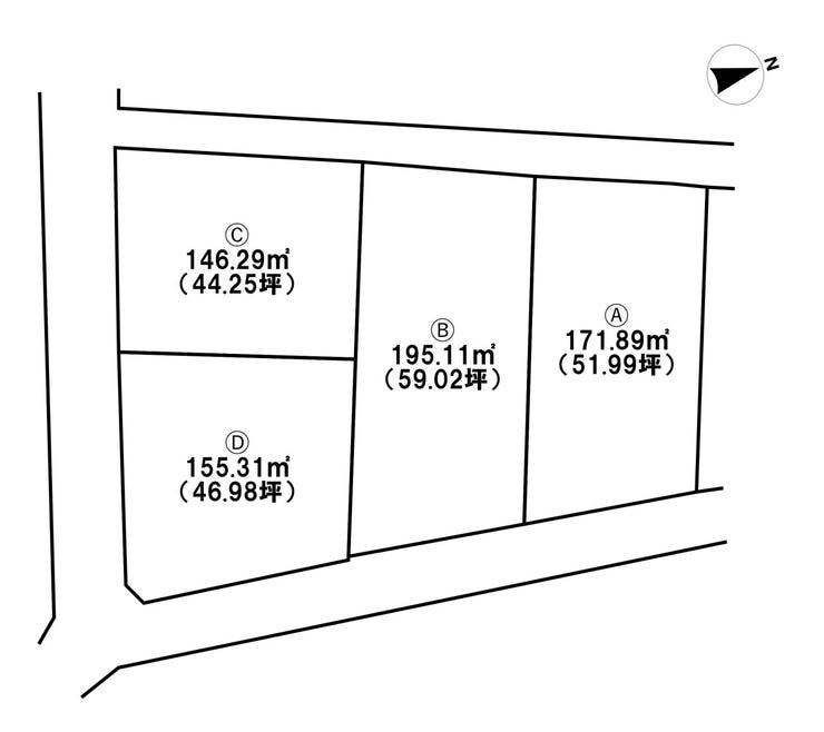
| 土地面積 | 171.89㎡(51.99坪) | 接道 | |
| 私道 | セットバック | ||
| 最適用途 | 造成完了時期 | ||
| 地目 | 宅地 | 地勢 | |
| 権利 | 所有権 |
||
| 分譲情報 | |||
| 都市計画 | 市街化区域 |
用途地域 | 準工業 |
| 建ぺい/容積率 | 60% / 200% | 土地国土法 | |
| 許可番号 | 建築基準法 | ||
| 法令制限 | |||
| 小学区 | 垣生小学校 徒歩3分 (約240m) | 中学区 | 垣生中学校 徒歩11分 (約850m) |
| 現況 | 未造成 | 引渡 | 期日指定:2026年02月(更地渡し) |
| 建築条件 | 建築条件なし | ||
| その他費用 | |||
| 周辺環境 | 垣生小学校 徒歩4分 (約290m) ドラッグストアmac垣生店 徒歩6分 (約450m) セブンイレブン 松山西垣生店 徒歩8分 (約620m) くすりのレディ垣生店 徒歩9分 (約700m) 垣生中学校 徒歩10分 (約760m) ウエルシア松山東垣生町店 徒歩12分 (約960m) フジ垣生店 徒歩11分 (約840m) 松山空港東緑地 徒歩14分 (約1100m) |
||
| 備考 | ●小学校近くの徒歩3分!お子さまの自由時間も増えてのびのびと過ごせる♪ ●建築条件なし!お好きなハウスメーカーや工務店で建築可能♪ ●バス停まで徒歩3分!雨の日や荷物が多い日でも移動がスムーズ♪ ●ゆとりある広々とした敷地で、理想の暮らしを実現できる♪ ●生活に必要な施設が徒歩圏内に集まり、便利で快適な毎日を実現♪ ※水道負担金35万円 ※下水道受益者負担金㎡/253円 ※公共下水道の宅内桝については、松山市に申請することにより、公費で引込可能です。その宅内桝申請は買主様の負担となります。(引込工事完了までの期間は約3ヶ月程度必要となります。) ※境界基礎・ブロック2段・メッシュフェンス施工費用(道路から1.2mは境界基礎のみ) →1号地 216,981円 2号地 460,108円 3号地 266,570円 4号地 266,570円 ※西側里道は建築基準法上の道路ではありません。 |
||
| 物件番号 | 4486505 | 取引態様 | 媒介 |
取扱店舗情報
| 電話番号 | 089-989-9258 |
|---|---|
| 所在地 | 〒791-3120 愛媛県伊予郡松前町筒井955番1 |
| 営業時間 | 9:30~18:00 |
| 定休日 | 水曜日、年末年始 |
| 宅建免許番号 | 愛媛県知事(6)第4310号 |
| アクセス | 店舗への地図はこちら |

来店ご予約
愛媛県松山市で価格が似ている物件はこちら
![]()
![]()
-
- 土地 2007.09.22
-
-
- 1,000万円
-
松山市みどりケ丘
-
JR予讃線「三津浜駅」まで徒歩10分
- 225.00m2
-
-
- 土地 2014.03.29
-
-
- 980万円
-
松山市土居田町
-
伊予鉄道郡中線「土居田駅」まで徒歩8分
- 124.98m2
-
-
- 土地 2016.07.29
-
-
- 980万円
-
松山市久万ノ台
-
伊予鉄道高浜線「衣山駅」まで徒歩8分
- 274.38m2
-
-
- 土地 2017.12.11
-
-
- 990万円
-
松山市衣山3丁目
-
伊予鉄道高浜線「衣山駅」まで徒歩6分
- 198.34m2
-
-
- 土地 2018.05.17
-
-
- 950万円
-
松山市元町
-
JR予讃線「三津浜駅」まで徒歩9分
- 238.01m2
-
-
- 土地 2018.10.12
-
-
- 1,000万円
-
松山市みどりケ丘
-
JR予讃線「三津浜駅」まで徒歩10分
- 185.26m2
-
-
- 土地 2019.08.06
-
-
- 1,123万円
-
松山市石手白石
-
伊予鉄道城南線「道後公園駅」まで徒歩27分
- 148.56m2
-
-
- 土地 2020.05.28
-
-
- 1,016万円
-
松山市勝岡町
-
JR予讃線「伊予和気駅」まで徒歩23分
- 210.12m2
-
-
- 土地 2021.07.02
-
-
- 980万円
-
松山市溝辺町
-
伊予鉄道城南線「道後温泉駅」まで徒歩35分
- 214.97m2
-
-
- 土地 2022.03.07
-
-
- 950万円
-
松山市元町
-
JR予讃線「三津浜駅」まで徒歩9分
- 238.01m2
-
-
- 土地 2022.07.12
-
-
- 970万円
-
松山市北斎院町
-
伊予鉄道高浜線「山西駅」まで徒歩24分
- 128.27m2
-
-
- 土地 2022.08.14
-
-
- 950万円
-
松山市太山寺町
-
JR予讃線「伊予和気駅」まで徒歩22分
- 281.81m2
-
-
- 土地 2022.12.07
-
-
- 1,000万円
-
松山市朝美2丁目
-
伊予鉄道高浜線「衣山駅」まで徒歩13分
- 141.23m2
-
-
- 土地 2023.06.19
-
-
- 960万円
-
松山市内宮町
-
JR予讃線「伊予和気駅」まで徒歩18分
- 175.22m2
-
-
- 土地 2023.08.12
-
-
- 1,087.25万円
-
松山市清住2丁目
-
伊予鉄道高浜線「山西駅」まで徒歩13分
- 143.79m2
-
-
- 土地 2023.08.12
-
-
- 1,087.25万円
-
松山市清住2丁目
-
伊予鉄道高浜線「山西駅」まで徒歩13分
- 143.80m2
-
-
- 土地 2023.08.12
-
-
- 1,000.27万円
-
松山市清住2丁目
-
伊予鉄道高浜線「山西駅」まで徒歩13分
- 143.79m2
-
-
- 土地 2023.09.20
-
-
- 1,123万円
-
松山市石手白石
-
伊予鉄道城南線「道後公園駅」まで徒歩27分
- 148.56m2
-
-
- 土地 2023.11.19
-
-
- 973万円
-
松山市西垣生町
-
伊予鉄バス木材団地口まで徒歩5分
- 139.99m2
-
-
- 土地 2023.11.19
-
-
- 973万円
-
松山市西垣生町
-
伊予鉄バス木材団地口まで徒歩5分
- 139.99m2
-
-
- 土地 2023.11.19
-
-
- 974万円
-
松山市西垣生町
-
伊予鉄バス木材団地口まで徒歩5分
- 140.00m2
-
-
- 土地 2023.11.19
-
-
- 1,012万円
-
松山市西垣生町
-
伊予鉄バス木材団地口まで徒歩5分
- 152.08m2
-
-
- 土地 2023.11.19
-
-
- 1,007万円
-
松山市西垣生町
-
伊予鉄バス木材団地口まで徒歩5分
- 151.43m2
-
-
- 土地 2023.11.28
-
-
- 990万円
-
松山市高岡町
-
伊予鉄バス高岡公民館前バス停まで徒歩5分
- 132.62m2
-
-
- 土地 2024.02.07
-
-
- 995万円
-
松山市南吉田町
-
南吉田東 バス停まで徒歩8分
- 109.72m2
-
-
- 土地 2024.02.07
-
-
- 1,118万円
-
松山市南吉田町
-
南吉田東 バス停まで徒歩8分
- 130.06m2
-
-
- 土地 2024.02.14
-
-
- 1,049万円
-
松山市南吉田町
-
伊予鉄バス南吉田口バス停まで徒歩5分
- 156.36m2
-
-
- 土地 2024.02.16
-
-
- 1,049万円
-
松山市南吉田町
-
伊予鉄道郡中線「余戸駅」まで徒歩37分
- 156.36m2
-
-
- 土地 2024.02.17
-
-
- 1,094.34万円
-
松山市別府町
-
伊予鉄道高浜線「山西駅」まで徒歩19分
- 139.16m2
-
-
- 土地 2024.02.17
-
-
- 1,114.62万円
-
松山市別府町
-
伊予鉄道高浜線「山西駅」まで徒歩19分
- 141.73m2
-
-
- 土地 2024.03.01
-
-
- 1,100万円
-
松山市和気町1丁目
-
JR予讃線「伊予和気駅」まで徒歩6分
- 244.10m2
-
-
- 土地 2024.03.18
-
-
- 1,100万円
-
松山市山越1丁目
-
伊予鉄道環状線「本町六丁目駅」まで徒歩10分
- 134.53m2
-
-
- 土地 2024.03.18
-
-
- 1,100万円
-
松山市山越1丁目
-
伊予鉄道本町線「本町六丁目駅」まで徒歩9分
- 134.53m2
-
-
- 土地 2024.04.26
-
-
- 990万円
-
松山市南吉田町
-
伊予鉄道郡中線「余戸駅」まで徒歩42分
- 111.60m2
-
-
- 土地 2024.05.17
-
-
- 980万円
-
松山市小栗7丁目
-
伊予鉄道郡中線「土橋駅」まで徒歩10分
- 132.27m2
-
-
- 土地 2024.05.17
-
-
- 1,080万円
-
松山市小栗7丁目
-
伊予鉄道郡中線「土橋駅」まで徒歩10分
- 132.27m2
-
-
- 土地 2024.06.24
-
-
- 1,074万円
-
松山市南斎院町
-
伊予鉄道郡中線「土居田駅」まで徒歩29分
- 197.31m2
-
-
- 土地 2024.07.21
-
-
- 980万円
-
松山市空港通7丁目
-
伊予鉄道郡中線「余戸駅」まで徒歩23分
- 106.50m2
-
-
- 土地 2024.07.22
-
-
- 980万円
-
松山市空港通7丁目
-
伊予鉄道郡中線「土居田駅」まで徒歩25分
- 106.50m2
-
-
- 土地 2024.08.06
-
-
- 1,000万円
-
松山市高岡町
-
伊予鉄道郡中線「余戸駅」まで徒歩40分
- 166.37m2
-
-
- 土地 2024.08.19
-
-
- 1,000万円
-
松山市谷町
-
JR予讃線「伊予和気駅」まで徒歩31分
- 163.88m2
-
-
- 土地 2024.09.25
-
-
- 1,117万円
-
松山市みどりケ丘
-
JR予讃線「三津浜駅」まで徒歩12分
- 189.43m2
-
-
- 土地 2024.10.25
-
-
- 1,132.24万円
-
松山市馬木町
-
JR予讃線「伊予和気駅」まで徒歩9分
- 143.96m2
-
-
- 土地 2024.10.25
-
-
- 1,115.86万円
-
松山市馬木町
-
JR予讃線「伊予和気駅」まで徒歩9分
- 139.20m2
-
-
- 土地 2024.10.25
-
-
- 1,123.37万円
-
松山市北斎院町
-
伊予鉄道高浜線「西衣山駅」まで車8分
- 132.63m2
-
-
- 土地 2024.10.25
-
-
- 1,076.19万円
-
松山市北斎院町
-
伊予鉄道高浜線「西衣山駅」まで車8分
- 127.06m2
-
-
- 土地 2024.11.02
-
-
- 980万円
-
松山市北吉田町
-
伊予鉄道高浜線「山西駅」まで徒歩50分
- 132.88m2
-
-
- 土地 2025.01.30
-
-
- 1,100万円
-
松山市北斎院町
-
伊予鉄道高浜線「西衣山駅」まで車5分
- 127.66m2
-
-
- 土地 2025.02.02
-
-
- 990万円
-
松山市堀江町
-
JR予讃線「堀江駅」まで徒歩8分
- 198.64m2
-
-
- 土地 2025.02.02
-
-
- 990万円
-
松山市堀江町
-
JR予讃線「堀江駅」まで徒歩8分
- 198.64m2
-
-
- 土地 2025.03.07
-
-
- 1,000万円
-
松山市朝美2丁目
-
松山総合公園前 バス停まで徒歩6分
- 141.23m2
-
-
- 土地 2025.05.01
-
-
- 990万円
-
松山市西石井4丁目
-
伊予鉄バス古川北3丁目まで徒歩8分
- 133.40m2
-
-
- 土地 2025.05.09
-
-
- 990万円
-
松山市南吉田町
-
伊予鉄道郡中線「余戸駅」まで車8分
- 124.42m2
-
-
- 土地 2025.05.22
-
-
- 1,040万円
-
松山市勝岡町
-
JR予讃線「伊予和気駅」まで車6分
- 315.06m2
-
-
- 土地 2025.06.03
-
-
- 960万円
-
松山市堀江町
-
JR予讃線「堀江駅」まで車5分
- 199.00m2
-
-
- 土地 2025.06.12
-
-
- 1,080万円
-
松山市古三津3丁目
-
JR予讃線「三津浜駅」まで徒歩10分
- 179.79m2
-
-
- 土地 2025.06.20
-
-
- 950万円
-
松山市福角町
-
JR予讃線「堀江駅」まで車6分
- 240.12m2
-
-
- 土地 2025.07.03
-
-
- 958万円
-
松山市石風呂町
-
伊予鉄道高浜線「港山駅」まで徒歩14分
- 171.00m2
-
-
- 土地 2025.07.16
-
-
- 980万円
-
松山市松末2丁目
-
伊予鉄道横河原線「福音寺駅」まで徒歩4分
- 121.57m2
-
-
- 土地 2025.08.20
-
-
- 950万円
-
松山市北立花町
-
伊予鉄道横河原線「石手川公園駅」まで徒歩10分
- 87.33m2
-
-
- 土地 2025.09.16
-
-
- 955万円
-
松山市南吉田町
-
伊予鉄道郡中線「鎌田駅」まで車8分
- 157.97m2
-
-
- 土地 2025.09.16
-
-
- 1,057万円
-
松山市南吉田町
-
伊予鉄道郡中線「鎌田駅」まで車8分
- 166.55m2
-
-
- 土地 2025.09.19
-
-
- 1,095万円
-
松山市春美町
-
伊予鉄道高浜線「三津駅」まで徒歩11分
- 195.75m2
-
-
- 土地 2025.09.28
-
-
- 955万円
-
松山市南吉田町
-
伊予鉄道郡中線「鎌田駅」まで徒歩37分
- 157.97m2
-
-
- 土地 2025.10.04
-
-
- 1,065万円
-
松山市東垣生町
-
伊予鉄道郡中線「鎌田駅」まで車5分
- 122.32m2
-
-
- 土地 2025.10.04
-
-
- 1,028万円
-
松山市東垣生町
-
伊予鉄道郡中線「鎌田駅」まで車5分
- 122.32m2
-
-
- 土地 2025.10.17
-
-
- 980万円
-
松山市北吉田町
-
社宅前まで徒歩2分
- 132.88m2
-
-
- 土地 2025.10.18
-
-
- 1,019.70万円
-
松山市山越2丁目
-
伊予鉄道本町線「本町六丁目駅」まで車4分
- 99.17m2
-
-
- 土地 2025.10.23
-
-
- 990万円
-
松山市古三津3丁目
-
JR予讃線「三津浜駅」まで徒歩6分
- 139.08m2
-
-
- 土地 2025.11.09
-
-
- 950万円
-
松山市ひばりケ丘
-
JR予讃線「三津浜駅」まで徒歩3分
- 135.72m2
-
-
- 土地 2025.11.09
-
-
- 950万円
-
松山市ひばりケ丘
-
JR予讃線「三津浜駅」まで徒歩3分
- 135.73m2
-
-
- 土地 2025.11.09
-
-
- 990万円
-
松山市古三津3丁目
-
JR予讃線「三津浜駅」まで徒歩6分
- 139.08m2
-
-
- 土地 2025.11.09
-
-
- 990万円
-
松山市衣山3丁目
-
伊予鉄道高浜線「衣山駅」まで徒歩6分
- 198.34m2
-
-
- 土地 2025.11.09
-
-
- 980万円
-
松山市空港通7丁目
-
伊予鉄道郡中線「余戸駅」まで徒歩22分
- 106.50m2
-
-
- 土地 2025.11.10
-
-
- 950万円
-
松山市ひばりケ丘
-
JR予讃線「三津浜駅」まで徒歩3分
- 135.72m2
-
-
- 土地 2025.11.10
-
-
- 950万円
-
松山市ひばりケ丘
-
JR予讃線「三津浜駅」まで徒歩3分
- 135.73m2
-
-
- 土地 2025.11.22
-
-
- 980万円
-
松山市内浜町
-
JR予讃線「三津浜駅」まで徒歩10分
- 117.00m2
-
-
- 土地 2025.11.23
-
-
- 1,074万円
-
松山市南斎院町
-
伊予鉄道郡中線「土居田駅」まで徒歩30分
- 197.31m2
-
-
- 土地 2025.12.10
-
-
- 1,100万円
-
松山市松江町
-
伊予鉄道高浜線「山西駅」まで車4分
- 114.11m2
-
-
- 土地 2025.12.18
-
-
- 1,050万円
-
松山市木屋町4丁目
-
伊予鉄道環状線「木屋町駅」まで徒歩4分
- 82.38m2
-
-
- 土地 2026.01.07
-
-
- 1,030万円
-
松山市堀江町
-
JR予讃線「堀江駅」まで徒歩8分
- 162.60m2
-
-
- 土地 2026.01.08
-
-
- 991万円
-
松山市別府町
-
伊予鉄道高浜線「西衣山駅」まで車4分
- 126.06m2
-
-
- 土地 2026.01.14
-
-
- 991万円
-
松山市別府町
-
伊予鉄道高浜線「山西駅」まで徒歩16分
- 126.06m2
-
-
- 土地 2026.01.17
-
-
- 980万円
-
松山市土居田町
-
伊予鉄道郡中線「土居田駅」まで徒歩7分
- 94.72m2
-
-
- 土地 2026.01.30
-
-
- 1,053万円
-
松山市桜ケ丘
-
JR予讃線「三津浜駅」まで車4分
- 146.39m2
-
-
- 土地 2026.01.30
-
-
- 955万円
-
松山市桜ケ丘
-
JR予讃線「三津浜駅」まで車4分
- 138.61m2
-
-
- 土地 2026.01.30
-
-
- 1,025万円
-
松山市桜ケ丘
-
JR予讃線「三津浜駅」まで車4分
- 148.70m2
-
-
- 土地 2026.01.30
-
-
- 1,014万円
-
松山市桜ケ丘
-
JR予讃線「三津浜駅」まで車4分
- 178.47m2
-
-
- 土地 2026.01.30
-
-
- 1,002万円
-
松山市桜ケ丘
-
JR予讃線「三津浜駅」まで車4分
- 142.23m2
-
-
- 土地 2026.01.30
-
-
- 982万円
-
松山市桜ケ丘
-
JR予讃線「三津浜駅」まで車4分
- 142.51m2
-
-
- 土地 2026.01.31
-
-
- 990万円
-
松山市高岡町
-
高岡橋まで徒歩1分
- 834.42m2
-
-
- 土地 2026.01.31
-
-
- 1,053万円
-
松山市桜ケ丘
-
JR予讃線「三津浜駅」まで徒歩14分
- 146.39m2
-
-
- 土地 2026.01.31
-
-
- 955万円
-
松山市桜ケ丘
-
JR予讃線「三津浜駅」まで徒歩14分
- 138.61m2
-
-
- 土地 2026.01.31
-
-
- 1,025万円
-
松山市桜ケ丘
-
JR予讃線「三津浜駅」まで徒歩14分
- 148.70m2
-
-
- 土地 2026.01.31
-
-
- 1,014万円
-
松山市桜ケ丘
-
JR予讃線「三津浜駅」まで徒歩14分
- 178.47m2
-
-
- 土地 2026.01.31
-
-
- 1,002万円
-
松山市桜ケ丘
-
JR予讃線「三津浜駅」まで徒歩14分
- 142.23m2
-
-
- 土地 2026.01.31
-
-
- 982万円
-
松山市桜ケ丘
-
JR予讃線「三津浜駅」まで徒歩14分
- 142.51m2
-
-
- 土地 2026.02.01
-
-
- 1,090万円
-
松山市石風呂町
-
伊予鉄道高浜線「港山駅」まで徒歩6分
- 152.13m2
-
-
- 土地 2026.02.01
-
-
- 1,090万円
-
松山市石風呂町
-
伊予鉄道高浜線「港山駅」まで徒歩6分
- 152.36m2
-
-
- 土地 2026.02.05
-
-
- 980万円
-
松山市吉藤1丁目
-
伊予鉄道本町線「本町六丁目駅」まで車8分
- 130.90m2
-
-
- 土地 2026.02.15
-
-
- 990万円
-
松山市高岡町
-
伊予鉄道郡中線「余戸駅」まで徒歩43分
- 132.62m2
-
-
- 土地 2026.02.21
-
-
- 1,100万円
-
松山市和泉北3丁目
-
伊予鉄道郡中線「土居田駅」まで車7分
- 219.00m2
-
-
- 土地 2026.02.27
-
-
- 1,100万円
-
松山市東長戸1丁目
-
伊予鉄道本町線「本町六丁目駅」まで車6分
- 126.69m2
-
-
- 土地 2026.02.27
-
-
- 950万円
-
松山市ひばりケ丘
-
JR予讃線「三津浜駅」まで徒歩3分
- 135.73m2
-
-
- 土地 2026.03.07
-
-
- 980万円
-
松山市松江町
-
伊予鉄道高浜線「山西駅」まで車4分
- 105.53m2
-
-
- 土地 2026.03.08
-
-
- 1,005万円
-
松山市上野町
-
宮の北まで徒歩2分
- 310.36m2
-
-
- 土地 2026.03.08
-
-
- 954万円
-
松山市上野町
-
宮の北まで徒歩2分
- 175.20m2
-
-
- 土地 2026.04.06
-
-
- 1,050万円
-
松山市木屋町4丁目
-
伊予鉄道環状線「木屋町駅」まで徒歩4分
- 82.38m2
-
-
- 土地 2026.04.14
-
-
- 950万円
-
松山市古川南2丁目
-
JR予讃線「市坪駅」まで車6分
- 82.72m2
-
-
- 土地 2026.04.20
-
-
- 1,088万円
-
松山市南斎院町
-
伊予鉄道郡中線「土居田駅」まで車6分
- 149.95m2
-
-
-
土地
2026.05.12
-
-
- 1,132万円
-
松山市山西町
-
伊予鉄道高浜線「西衣山駅」まで徒歩5分
- 146.85m2
-
-
土地
2026.05.12
-
-
土地
2026.05.12
-
-
- 1,050万円
-
松山市山西町
-
伊予鉄道高浜線「西衣山駅」まで徒歩5分
- 144.77m2
-
-
土地
2026.05.12
-
-
土地
2026.05.12
-
-
- 1,050万円
-
松山市山西町
-
伊予鉄道高浜線「西衣山駅」まで徒歩5分
- 144.74m2
-
-
土地
2026.05.12
-
-
土地
2026.05.12
-
-
- 1,051万円
-
松山市山西町
-
伊予鉄道高浜線「西衣山駅」まで徒歩5分
- 144.81m2
-
-
土地
2026.05.12
-
-
土地
2026.05.12
-
-
- 1,052万円
-
松山市山西町
-
伊予鉄道高浜線「西衣山駅」まで徒歩5分
- 145.00m2
-
-
土地
2026.05.12
-
-
土地
2026.05.12
-
-
- 1,053万円
-
松山市山西町
-
伊予鉄道高浜線「西衣山駅」まで徒歩5分
- 145.15m2
-
-
土地
2026.05.12
-
-
土地
2026.05.12
-
-
- 1,054万円
-
松山市山西町
-
伊予鉄道高浜線「西衣山駅」まで徒歩5分
- 145.22m2
-
-
土地
2026.05.12
-
-
土地
2026.05.12
-
-
- 1,054万円
-
松山市山西町
-
伊予鉄道高浜線「西衣山駅」まで徒歩5分
- 145.21m2
-
-
土地
2026.05.12
-
-
土地
2026.05.12
-
-
- 1,088万円
-
松山市山西町
-
伊予鉄道高浜線「西衣山駅」まで徒歩5分
- 150.01m2
-
-
土地
2026.05.12
-
-
土地
2026.05.12
-
-
- 1,051万円
-
松山市山西町
-
伊予鉄道高浜線「西衣山駅」まで徒歩5分
- 133.77m2
-
-
土地
2026.05.12
-
-
土地
2026.05.12
-
-
- 1,050万円
-
松山市山西町
-
伊予鉄道高浜線「西衣山駅」まで徒歩5分
- 133.64m2
-
-
土地
2026.05.12
-
-
土地
2026.05.12
-
-
- 1,071万円
-
松山市保免西1丁目
-
伊予鉄道郡中線「土居田駅」まで徒歩11分
- 114.28m2
-
-
土地
2026.05.12
-
-
土地
2026.05.12
-
-
- 1,071万円
-
松山市保免西1丁目
-
伊予鉄道郡中線「土居田駅」まで車4分
- 114.28m2
-
-
土地
2026.05.12
-
-
土地
2026.05.16
-
-
- 1,058.85万円
-
松山市堀江町
-
JR予讃線「堀江駅」まで徒歩9分
- 179.72m2
-
-
土地
2026.05.16
-
-
土地
2026.05.16
-
-
- 1,051.05万円
-
松山市堀江町
-
JR予讃線「堀江駅」まで徒歩9分
- 178.47m2
-
-
土地
2026.05.16
-
-
土地
2026.05.19
-
-
- 1,010万円
-
松山市石手白石
-
伊予鉄道城南線「道後公園駅」まで車6分
- 117.71m2
-
-
土地
2026.05.19
-
-
土地
2026.05.26
-
-
- 990万円
-
松山市南吉田町
-
伊予鉄バス南吉田口バス停まで徒歩5分
- 124.42m2
-
-
土地
2026.05.26
-
-
土地
2026.05.27
-
-
- 1,132万円
-
松山市山西町
-
伊予鉄道高浜線「西衣山駅」まで徒歩4分
- 146.85m2
-
-
土地
2026.05.27
-
-
土地
2026.05.27
-
-
- 1,050万円
-
松山市山西町
-
伊予鉄道高浜線「西衣山駅」まで徒歩4分
- 144.77m2
-
-
土地
2026.05.27
-
-
土地
2026.05.27
-
-
- 1,050万円
-
松山市山西町
-
伊予鉄道高浜線「西衣山駅」まで徒歩4分
- 144.74m2
-
-
土地
2026.05.27
-
-
土地
2026.05.27
-
-
- 1,051万円
-
松山市山西町
-
伊予鉄道高浜線「西衣山駅」まで徒歩4分
- 144.81m2
-
-
土地
2026.05.27
-
-
土地
2026.05.27
-
-
- 1,052万円
-
松山市山西町
-
伊予鉄道高浜線「西衣山駅」まで徒歩4分
- 145.00m2
-
-
土地
2026.05.27
-
-
土地
2026.05.27
-
-
- 1,053万円
-
松山市山西町
-
伊予鉄道高浜線「西衣山駅」まで徒歩4分
- 145.15m2
-
-
土地
2026.05.27
-
-
土地
2026.05.27
-
-
- 1,054万円
-
松山市山西町
-
伊予鉄道高浜線「西衣山駅」まで徒歩4分
- 145.22m2
-
-
土地
2026.05.27
-
-
土地
2026.05.27
-
-
- 1,054万円
-
松山市山西町
-
伊予鉄道高浜線「西衣山駅」まで徒歩4分
- 145.21m2
-
-
土地
2026.05.27
-
-
土地
2026.05.27
-
-
- 1,088万円
-
松山市山西町
-
伊予鉄道高浜線「西衣山駅」まで徒歩4分
- 150.01m2
-
-
土地
2026.05.27
-
-
土地
2026.05.27
-
-
- 1,088万円
-
松山市山西町
-
伊予鉄道高浜線「西衣山駅」まで徒歩4分
- 150.01m2
-
-
土地
2026.05.27
-
-
土地
2026.05.27
-
-
- 1,051万円
-
松山市山西町
-
伊予鉄道高浜線「西衣山駅」まで徒歩4分
- 133.77m2
-
-
土地
2026.05.27
-
-
土地
2026.05.27
-
-
- 1,050万円
-
松山市山西町
-
伊予鉄道高浜線「西衣山駅」まで徒歩4分
- 133.64m2
-
-
土地
2026.05.27
-
-
土地
2026.05.31
-
-
- 980万円
-
松山市桜ケ丘
-
JR予讃線「三津浜駅」まで車4分
- 224.11m2
-
-
土地
2026.05.31
- 愛媛県
マイページ物件数 - 3,701件
最近見た物件
-
-

-
- 土地
- 1,130万円
-
北葛飾郡松伏町大字築比地
-
東武野田線清水公園
-
-
-

-
- 土地
- 250万円
-
山口市大内矢田北4丁目
-
JR山口線山口
-
-
-

-
- 中古一戸建て
- 1,200万円
-
日置市東市来町美山
-
美山バス停
-
愛媛県土地新着物件
- お近くの店舗を探す
-
おすすめ物件
-
-

-
- 土地
- 2,026万円
-
松山市中村4丁目
-
伊予鉄道横河原線いよ立花
-
-
-

-
- 土地
- 2,400万円
-
松山市持田町4丁目
-
伊予鉄道環状線警察署前
-
-
-

-
- 土地
- 1,980万円
-
松山市土居田町
-
伊予鉄道郡中線土居田
-
-
-

-
- 土地
- 2,500万円
-
松山市余戸東5丁目
-
伊予鉄道郡中線余戸
-
-
-

-
- 土地
- 1,070万円
-
伊予郡松前町大字北黒田
-
伊予鉄道郡中線地蔵町
-
-
-

-
- 土地
- 1,950万円
-
伊予郡松前町大字北黒田
-
伊予鉄道郡中線地蔵町
-
-
-

-
- 土地
- 790万円
-
伊予市上吾川
-
JR予讃線鳥ノ木
-
-
-

-
- 土地
- 300万円
-
伊予市尾崎
-
JR予讃線伊予市
-
-
-

-
- 土地
- 4,442.76万円
-
松山市井門町
-
伊予鉄バス南井門バス停
-
-
-

-
- 土地
- 1,200万円
-
伊予市下吾川
-
伊予鉄道郡中線新川
-













ハウスドゥ 松前・伊予は、地域密着の情報量が強みとなっておりますので、
このほかにも多数の物件情報を公開しております!
松前・伊予・松山市城南城西周辺をお探しの方はぜひ当店へお気軽にお問い合わせください♪
住宅を購入される方のほとんどが利用される住宅ローン!!!!!
どの銀行が自分に合っているのか、自分は審査に通るのか、
そもそも住宅ローンの仕組みがよくわからない方など、
不安なことや心配なことがある方はお気軽にご相談ください!
お客様一人ひとりに合った住宅ローンのご提案をさせていただきます◎
住宅を購入するためにも、勉強のためにもぜひお問い合わせください♪
この他にも、リフォームなど様々なご相談を受け付けております!
少しでも分からないこと・教えてほしいことがございましたら、お声掛けください(^^)