調布市若葉町3丁目 売地
NEW 12.23掲載情報更新日:2025年12月23日 次回更新予定日:2026年01月06日
- 6,990万円
-
- 借入ご希望金額
万円 - 借入期間
年 - 借入金利
% - 月々のお支払い金額
円
- 借入ご希望金額
※ 月々のお支払例は目安の試算となりますので、実際の金額とは異なる場合がございます。詳しくは店舗までお問合わせください。
- 調布市若葉町3丁目
-
京王線『つつじヶ丘』 徒歩13分 (約1040m)
京王線『仙川』 徒歩14分 (約1120m)
調布市若葉町3丁目 売地土地 | 物件情報
■便利な2駅アクセス ■建築条件付売地♪ ■フリープラン対応
《Access》
・京王線「つつじヶ丘駅」歩13分
・同線「仙川駅」歩14分
《Point》
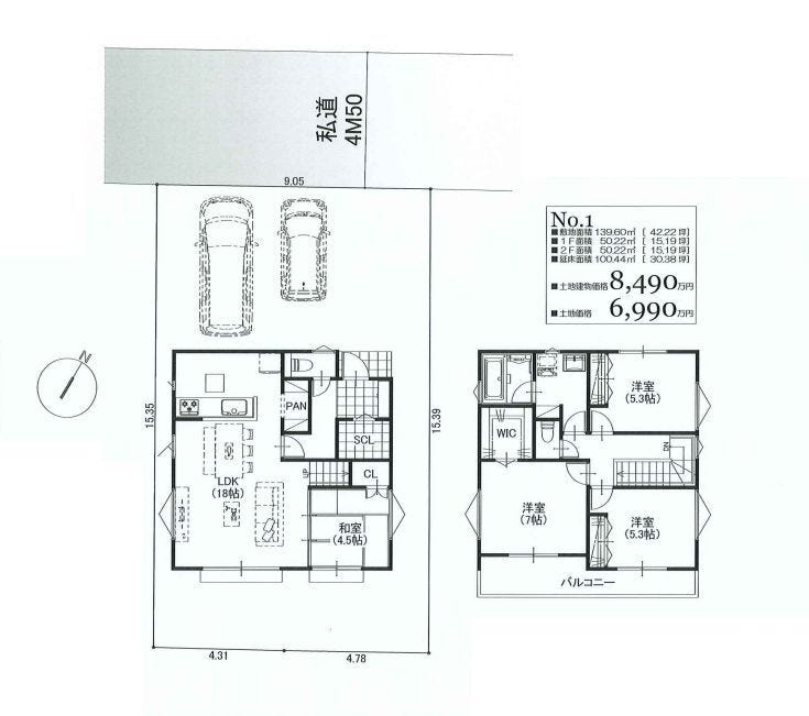
◆土地面積 139.60㎡(約42坪超え)
◆建ぺい率40%×容積率80%
◆キレイな敷地形状が魅力
・私道4.5mに約9.05m接道条件
◆フリープラン対応!お客様のご希望の間取りをご相談ください♪
◆参考プランあり
■お気軽にお問い合わせください♪
物件の設備
- 電気
- 公営水道
- 公共下水
- 都市ガス
- 家庭菜園
物件の特徴
- 地盤調査済
- 駅まで平坦
- 小学校徒歩10分以内
- 緑豊かな住宅地
- 閑静な住宅街
- 周辺交通量少なめ
- 市街地が近い
- 都市近郊
- 眺望良好
- 陽当り良好
- 平坦地
- 整形地
物件詳細情報
| 価格 | 6,990万円 | 坪単価 | 坪165.6万円 |
|---|---|---|---|
| 物件種別 | 土地 | ||
| 所在地 | 東京都調布市若葉町3丁目 | ||
| アクセス |
|
||
| 土地面積 | 実139.6㎡(42.22坪) | 接道 | 北西側(公道)幅 約4.5m 間口 約9.05m(位置指定) |
| 私道 | 別:実20.27㎡(持分 1/1) | セットバック | |
| 最適用途 | 住宅用地 | 造成完了時期 | |
| 地目 | 宅地 | 地勢 | |
| 権利 | 所有権 |
||
| 都市計画 | 市街化区域 |
用途地域 | 1種低層 |
| 建ぺい/容積率 | 40% / 80% | 土地国土法 | |
| 許可番号 | 建築基準法 | ||
| 法令制限 | |||
| 小学区 | 若葉小学校 徒歩1分 (約17m) | 中学区 | 第四中学校 徒歩1分 (約60m) |
| 現況 | 更地 | 引渡 | 相談 |
| 建築条件 | 建築条件付 | ||
| その他費用 | |||
| 周辺環境 | 調布市立若葉小学校 徒歩1分 (約17m) 調布市立第四中学校 徒歩1分 (約60m) 島忠ホームズ仙川店 徒歩9分 (約720m) ファッションセンターしまむらホームズ仙川店 徒歩9分 (約720m) 食品館あおば仙川店 徒歩9分 (約720m) セブンイレブン調布仙川1丁目店 徒歩12分 (約960m) トモズクイーンズ伊勢丹仙川店 徒歩12分 (約960m) 無印良品クイーンズ伊勢丹仙川店 徒歩12分 (約960m) ユニクロ仙川店 徒歩13分 (約1010m) 社団法人至誠会第二病院 徒歩13分 (約1020m) |
||
| 備考 | |||
| 物件番号 | 4537724 | 取引態様 | 媒介 |
取扱店舗情報
ハウスドゥ 千歳船橋 R2-CONNECT株式会社 店舗詳細ページへ
| 電話番号 | 03-5799-7621 |
|---|---|
| 所在地 | 〒156-0054 東京都世田谷区桜丘5丁目47-19 |
| 営業時間 | 9:00~19:00 |
| 定休日 | 火曜日、水曜日 |
| 宅建免許番号 | 東京都知事(1)第107079号 |
| アクセス | 店舗への地図はこちら |

来店ご予約
東京都調布市で価格が似ている物件はこちら
- 東京都
マイページ物件数 - 4,851件
最近見た物件
-
-

-
- 土地
- 2,350万円
-
小牧市大字岩崎
-
名鉄小牧線味岡
-
東京都土地新着物件
- お近くの店舗を探す
-
おすすめ物件
-
-

-
- 土地
- 5,780万円
-
板橋区東新町2丁目
-
東武東上線ときわ台
-
-
-

-
- 土地
- 2億1,800万円
-
川崎市多摩区登戸
-
小田急小田原線登戸
-
-
-

-
- 土地
- 2,800万円
-
葛飾区水元2丁目
-
JR千代田・常磐緩行線金町
-
-
-

-
- 土地
- 890万円
-
青梅市畑中2丁目
-
JR青梅線青梅
-
-
-

-
- 土地
- 7,000万円
-
浦安市今川3丁目
-
JR京葉線新浦安
-
-
-

-
- 土地
- 1,050万円
-
葛飾区西水元2丁目
-
JR千代田・常磐緩行線亀有
-
-
-

-
- 土地
- 4,780万円
-
世田谷区桜上水2丁目
-
京王線桜上水
-
-
-

-
- 土地
- 1億3,280万円
-
世田谷区船橋4丁目
-
小田急小田原線千歳船橋
-
-
-

-
- 土地
- 7,000万円
-
浦安市今川3丁目
-
JR京葉線新浦安
-
-
-

-
- 土地
- 6,500万円
-
練馬区東大泉6丁目
-
西武池袋・豊島線大泉学園
-










即対応いたします!
物件、資金計画、周辺環境もご案内させて頂きます♪
資料請求、ご見学お気軽にお問合せください。