売土地
掲載情報更新日:2026年04月16日 次回更新予定日:2026年04月30日
- 500万円
-
- 借入ご希望金額
万円 - 借入期間
年 - 借入金利
% - 月々のお支払い金額
円
- 借入ご希望金額
※ 月々のお支払例は目安の試算となりますので、実際の金額とは異なる場合がございます。詳しくは店舗までお問合わせください。
- 大津市和邇高城
-
JR湖西線『和邇』 徒歩9分 (約650m)
売土地土地 | 物件情報
☆建築条件なし ☆約73坪の整形地・駐車場2台 ☆駅・スーパーまで徒歩約9分 ☆閑静な住宅地
■建築条件なし
■広々約70坪の整形地
■車2台分の堀込駐車場あり
■JR和邇駅やスーパー和邇平和堂・コンビニ・ドラッグストア、保育園・小学校などが徒歩圏内の便利な立地です
■閑静な住宅地「虹ヶ丘」内
物件の設備
- 電気
- 公営水道
- 公共下水
- プロパンガス
物件の特徴
- 整形地
- 建築条件無
物件詳細情報
| 価格 | 500万円 | 坪単価 | 坪6.8万円 |
|---|---|---|---|
| 物件種別 | 土地 | ||
| 所在地 | 滋賀県大津市和邇高城192-65 | ||
| アクセス |
|
||
| 土地面積 |
公242㎡(73.20坪) 持分:1/1 |
接道 | 北東側(公道)幅 約5.0m 間口 約15.00m |
| 私道 | セットバック | 無 | |
| 最適用途 | 住宅用地 | 造成完了時期 | |
| 地目 | 雑種地 | 地勢 | 高台 |
| 権利 | 所有権 |
||
| 都市計画 | 市街化区域 |
用途地域 | 1種住居 |
| 建ぺい/容積率 | 60% / 200% | 土地国土法 | |
| 許可番号 | 建築基準法 | ||
| 法令制限 | 第3種高度地区・市街地景観エリア | ||
| 小学区 | 和邇小学校 徒歩10分 (約800m) | 中学区 | 志賀中学校 徒歩37分 (約2900m) |
| 現況 | 古家付 | 引渡 | 相談(現況渡し) |
| 建築条件 | 建築条件なし | ||
| その他費用 | |||
| 周辺環境 | 和邇保育園 徒歩11分 (約850m) 大津赤十字志賀病院 徒歩16分 (約1220m) 大津市立和邇小学校 徒歩11分 (約820m) 滋賀銀行志賀町支店 徒歩9分 (約700m) 和邇図書館 徒歩11分 (約860m) JR和邇駅 徒歩9分 (約670m) 和邇郵便局 徒歩11分 (約880m) 平和堂和邇店 徒歩9分 (約680m) ファミリーマート 和邇南浜店 徒歩12分 (約930m) ドラッグユタカ和邇店 徒歩13分 (約1000m) |
||
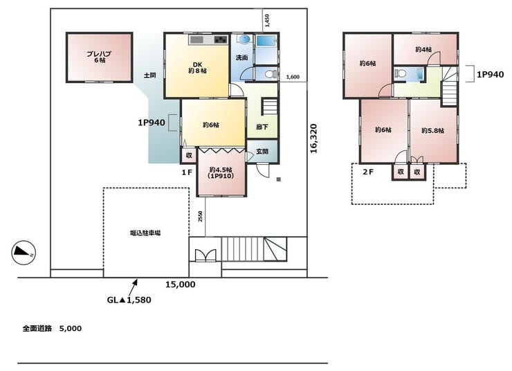
| 備考 | ■古家付き:居宅・軽量鉄骨造2階建(1F:48.59㎡・2F:48.59㎡、延床面積:97.18㎡)昭和53年3月22日築 ■1F増築部分あり(未登記) ■別途プレハブ小屋あり(約6帖・未登記) ■駐車場は車種による ・JR和邇駅まで徒歩9分(約670m) ・平和堂和邇店まで徒歩9分(約680m) ・滋賀銀行志賀町支店まで徒歩9分(約700m) ・和邇保育園まで徒歩11分(約850m) ・大津市立和邇小学校まで徒歩11分(約820m) ・和邇図書館まで徒歩11分(約860m) ・和邇郵便局まで徒歩11分(約880m) ・ファミリーマート 和邇南浜店まで徒歩12分(約930m) ・ドラッグユタカ和邇店まで徒歩13分(約1000m) ・大津赤十字志賀病院まで徒歩16分(約1220m) |
||
| 物件番号 | 4562275 | 取引態様 | 一般媒介 |
取扱店舗情報
ハウスドゥ 滋賀湖西 有限会社ケア・サポート愛 店舗詳細ページへ
| 電話番号 | 077-532-3173 |
|---|---|
| 所在地 | 〒520-0232 滋賀県大津市真野5丁目9-13 |
| 営業時間 | 9:00~18:00 |
| 定休日 | 毎週火曜日・水曜日 夏季、年末年始 |
| 宅建免許番号 | 滋賀県知事(1)第3950号 |
| アクセス | 店舗への地図はこちら |

来店ご予約
滋賀県大津市で価格が似ている物件はこちら
- 滋賀県
マイページ物件数 - 2,868件
最近見た物件
-
-

-
- 土地
- 660万円
-
鹿児島市下伊敷3丁目
-
さつま団地入口
-
-
-

-
- 土地
- 730万円
-
西条市高田
-
JR予讃線伊予三芳
-
-
-

-
- 収益
- 1,600万円
-
岩国市門前町2丁目
-
JR山陽本線南岩国
-
滋賀県土地新着物件
- お近くの店舗を探す
-

























担当エージェント:木村 大祐
ハウスドゥ滋賀湖西をご覧いただき誠にありがとうございます。
弊社では主に湖西エリアの中古・新築の戸建て・マンション、売土地を取り扱っております。
リフォーム・リノベ―ションや建物建築、外構工事、住宅ローン相談、火災保険の取り扱いなど住宅購入に関わる全ての事にワンストップでご対応し、お客様が知りたい情報を全てご提供できる環境を整えております。
ベテランスタッフがトータルでサポートいたしますので住宅購入の事でしたら何なりと弊社にお任せください。