岡山市北区三手の中古戸建
掲載情報更新日:2026年04月26日 次回更新予定日:2026年05月10日
- 480万円
-
- 借入ご希望金額
万円 - 借入期間
年 - 借入金利
% - 月々のお支払い金額
円
- 借入ご希望金額
※ 月々のお支払例は目安の試算となりますので、実際の金額とは異なる場合がございます。詳しくは店舗までお問合わせください。
- 岡山市北区三手
-
JR吉備線『備中高松』 徒歩12分 (約960m)
岡山市北区三手一戸建て | 物件情報
◆備中高松駅まで徒歩12分!駐車場敷地内1台可!北区三手◆
■ご家族が多い方でも安心の7DK!
◆◆ 【無料】案内受付中! ◆◆
物件の設備
- 電気
- 上水道
- 公営水道
- 側溝
- プロパンガス
- 個別プロパン
- 浴室に窓
- トイレ2箇所
物件の特徴
- セットバック要
- 2階建
物件詳細情報
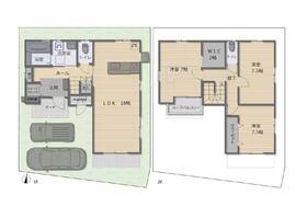
| 価格 | 480万円 | 間取り | 7DK |
|---|---|---|---|
| 物件種別 | 中古一戸建て | ||
| 所在地 | 岡山県岡山市北区三手 | ||
| アクセス |
|
||
| 建物面積 | 127.46㎡ | 駐車場 | あり 普通:1台 |
| 築年月 | 1969年(昭和44年)03月築 | ||
| 建物構造 | 木造 セメント瓦葺 2階建 | 工法 | |
| 主要採光 | バルコニー | ||
| 保証・評価 | |||
| リフォーム | |||
| 土地面積 | 公137.68㎡(41.64坪) | 接道 | 西側(公道)幅 約3.0m 間口 約11.50m |
| 私道 | セットバック | 要 | |
| 地目 | 宅地 | 地勢 | |
| 権利 | 所有権 |
||
| 都市計画 | 市街化区域 |
用途地域 | 1種住居 |
| 建ぺい/容積率 | 60% / 200% | 土地国土法 | |
| 許可番号 | 建築基準法 | ||
| 法令制限 | |||
| 小学区 | 庄内小学校 徒歩2分 (約130m) | 中学区 | 高松中学校 徒歩6分 (約450m) |
| 現況 | 空 | 引渡 | 相談 |
| その他費用 | |||
| 備考 | ・セットバック要 | ||
| 物件番号 | 3069417 | 取引態様 | 専任媒介 |
取扱店舗情報
ハウスドゥ 岡山大安寺 株式会社インテックスホームズ 店舗詳細ページへ
| 電話番号 | 086-250-0808 |
|---|---|
| 所在地 | 〒700-0064 岡山県岡山市北区大安寺南町1丁目2-103 |
| 営業時間 | 9:00~18:00 |
| 定休日 | 水曜日、第2火曜日 |
| 宅建免許番号 | 岡山県知事(2)第5693号 |
| アクセス | 店舗への地図はこちら |

来店ご予約
岡山県岡山市北区で価格が似ている物件はこちら
- 岡山県
マイページ物件数 - 4,687件
最近見た物件
-
-

-
- 新築一戸建て
- 6,198万円
-
さいたま市桜区田島1丁目
-
JR武蔵野線武蔵浦和
-
-
-

-
- 中古一戸建て
- 2,649万円
-
高槻市前島1丁目
-
阪急電鉄京都線高槻市
-
-
-

-
- 土地
- 423.70万円
-
土岐市下石陶史台5丁目
-
JR中央本線土岐市
-
岡山県中古一戸建て新着物件
-
-

-
- 中古一戸建て
- 3,800万円
-
倉敷市浜町2丁目
-
JR山陽本線倉敷駅
-
-
-

-
- 中古一戸建て
- 1,779万円
-
総社市久代
-
JR伯備線総社駅
-
-
-

-
- 中古一戸建て
- 2,340万円
-
倉敷市上富井
-
水島臨海鉄道西富井駅
-
-
-

-
- 中古一戸建て
- 2,380万円
-
岡山市東区西大寺中野
-
JR赤穂線西大寺駅
-
-
-

-
- 中古一戸建て
- 2,280万円
-
赤磐市桜が丘東3丁目
-
宇野バス ネオポリス線桜が丘中央バス停
-
-
-

-
- 中古一戸建て
- 2,880万円
-
倉敷市藤戸町天城
-
JR宇野線茶屋町駅
-
-
-

-
- 中古一戸建て
- 2,980万円
-
岡山市南区妹尾
-
JR宇野線妹尾駅
-
- お近くの店舗を探す
-
おすすめ物件
-
-

-
- 中古一戸建て
- 300万円
-
倉敷市児島味野5丁目
-
JR本四備讃線児島
-
-
-

-
- 中古一戸建て
- 3,236万円
-
岡山市北区神田町2丁目
-
岡電・両備バス岡南小学校前 停
-
-
-

-
- 中古一戸建て
- 1,980万円
-
倉敷市児島通生
-
JR本四備讃線児島
-
-
-

-
- 中古一戸建て
- 2,390万円
-
高梁市川上町臘数
-
JR伯備線備中高梁
-
-
-

-
- 中古一戸建て
- 350万円
-
久米郡美咲町宮山
-
JR姫新線美作大崎
-
-
-

-
- 中古一戸建て
- 2,650万円
-
倉敷市白楽町
-
JR山陽本線倉敷
-
-
-

-
- 中古一戸建て
- 1,899万円
-
赤磐市桜が丘東4丁目
-
JR山陽本線万富
-
-
-

-
- 中古一戸建て
- 1,348万円
-
岡山市中区四御神
-
JR山陽本線東岡山
-
-
-

-
- 中古一戸建て
- 2,500万円
-
倉敷市東塚1丁目
-
水島臨海鉄道水島
-
-
-

-
- 中古一戸建て
- 2,000万円
-
岡山市中区湊
-
岡山電軌東山本線東山岡電ミュージアム
-







担当エージェント:藤田 智大
■庄内小学校 徒歩約2分!
■高松中学校 徒歩約6分!
お子様を安心して送り出せます!
■トイレ・洗面台2ヶ所あり!
■解体の相談もお受けしております!
■ザグザグ小山店 徒歩3分!
■マルナカ小山店 徒歩4分!
■お気軽にお問い合わせください!
不動産の売買、リフォーム、リノベーションのことなら
ハウスドゥ岡山大安寺店にお任せ下さい!
◆◆◆━━━━━━━━━━
物件見学のご希望は
お気軽にお申し付けください!
フリーダイヤル
TEL:0800-999-2103
━━━━━━━━━◆◆◆