明石市材木町の中古戸建
掲載情報更新日:2026年05月14日 次回更新予定日:2026年05月28日
- 2,450万円
-
- 借入ご希望金額
万円 - 借入期間
年 - 借入金利
% - 月々のお支払い金額
円
- 借入ご希望金額
※ 月々のお支払例は目安の試算となりますので、実際の金額とは異なる場合がございます。詳しくは店舗までお問合わせください。
- 明石市材木町
-
山陽電鉄本線『山陽明石』 徒歩14分 (約1120m)
JR山陽本線『明石』 徒歩14分 (約1120m)
明石市材木町一戸建て | 物件情報
不動産会社のイメージを変えたい。全国700店舗展開中!不動産はハウスドゥ明石藤江におまかせください!
【ハウスドゥ明石藤江】のおすすめ
□敷地面積約30.25坪
■駐車場1台(カーポートつき)
現地へ行って陽当りや周辺環境・街並みを確かめよう!
お気軽にお問合せください!
大観小学校 約350m(徒歩約5分)
衣川中学校 約600m(徒歩約8分)
【ハウスドゥ明石藤江】ご来店サービス♪
♪お客様を駅まで送迎いたします!JR「西明石」「大久保」駅 山陽電鉄線もご相談ください♪
♪ご来店のお客様へドリンクのご提供♪ゆっくりとご相談ください♪
【ハウスドゥ明石藤江】はお客様のより近くにある安心・便利・信頼されるお店づくりを展開中!
どんな小さな事でもご相談ください!エージェントが全力でお手伝い・サポートさせていただきます!
【ハウスドゥ明石藤江】はすべての物件情報を公開中!
お問合せはこちらまで →0120-077-712
物件の設備
- バス
- 浴室に窓
- トイレ
- 室内洗濯機置場
- 洗面所独立
- 和室
- 和室8畳以上
- 2面採光
- 庭
物件の特徴
- 2沿線利用可
- 前道6m以上
- 閑静な住宅街
- 周辺交通量少なめ
- 通風良好
- 陽当り良好
- 2階建
- 平坦地
物件詳細情報
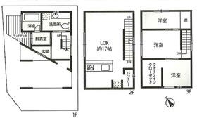
| 価格 | 2,450万円 | 間取り | 5DK+S |
|---|---|---|---|
| 物件種別 | 中古一戸建て | ||
| 所在地 | 兵庫県明石市材木町 | ||
| アクセス |
|
||
| 建物面積 | 106.37㎡ | 駐車場 | あり 普通:1台 |
| 築年月 | 1982年(昭和57年)12月築 | ||
| 建物構造 | 木造 2階建 | 工法 | |
| 主要採光 | 南西向 | バルコニー | |
| 保証・評価 | |||
| リフォーム | |||
| 土地面積 | 100㎡(30.25坪) | 接道 | 西側(公道)幅 約14.4m 間口 約5.50m |
| 私道 | セットバック | ||
| 地目 | 宅地 | 地勢 | 平坦 |
| 権利 | 所有権 |
||
| 都市計画 | 市街化区域 |
用途地域 | 1種中高 |
| 建ぺい/容積率 | 60% / 150% | 土地国土法 | |
| 許可番号 | 建築基準法 | ||
| 法令制限 | |||
| 小学区 | 大観小学校 徒歩5分 (約350m) | 中学区 | 衣川中学校 徒歩8分 (約600m) |
| 現況 | 空 | 引渡 | 相談 |
| その他費用 | |||
| 備考 | □JR・山陽電鉄2WAYアクセス可 □敷地面積約30.25坪 ■駐車場1台(カーポートつき) ■室内大変綺麗にお使いです |
||
| 物件番号 | 4143231 | 取引態様 | 媒介 |
取扱店舗情報
| 電話番号 | 078-962-7712 |
|---|---|
| 所在地 | 〒673-0044 兵庫県明石市藤江927-5 |
| 営業時間 | 10:00~18:00 |
| 定休日 | 水曜日 |
| 宅建免許番号 | 兵庫県知事(1)第401744号 |
| アクセス | 店舗への地図はこちら |

来店ご予約
兵庫県明石市で価格が似ている物件はこちら
- 兵庫県
マイページ物件数 - 3,061件
最近見た物件
-
-

-
- 土地
- 1,380万円
-
東近江市沖野2丁目
-
近江鉄道八日市線新八日市
-
-
-

-
- 中古一戸建て
- 1,580万円
-
鳥取市若葉台南6丁目
-
JR因美線津ノ井
-
-
-

-
- 新築一戸建て
- 4,699万円
-
名古屋市瑞穂区雁道町1丁目
-
名古屋市桜通線瑞穂区役所
-
兵庫県中古一戸建て新着物件
- お近くの店舗を探す
-
おすすめ物件
-
-

-
- 中古一戸建て
- 1,480万円
-
尼崎市西御園町
-
阪神電鉄本線尼崎
-
-
-

-
- 中古一戸建て
- 780万円
-
尼崎市大庄北5丁目
-
JR東海道線立花
-
-
-

-
- 中古一戸建て
- 4,720万円
-
姫路市龍野町5丁目
-
JR山陽本線姫路
-
-
-

-
- 中古一戸建て
- 1,280万円
-
たつの市御津町朝臣
-
JR山陽本線竜野
-
-
-

-
- 中古一戸建て
- 5,800万円
-
神戸市東灘区岡本4丁目
-
JR東海道線摂津本山
-
-
-

-
- 中古一戸建て
- 300万円
-
姫路市北平野南の町
-
JR山陽本線姫路
-
-
-

-
- 中古一戸建て
- 1,080万円
-
加古川市西神吉町岸
-
JR山陽本線宝殿
-
-
-

-
- 中古一戸建て
- 2,800万円
-
加古川市平岡町一色西1丁目
-
山陽電鉄本線別府
-
-
-

-
- 中古一戸建て
- 1,350万円
-
加古川市野口町坂元
-
JR山陽本線加古川
-
-
-

-
- 中古一戸建て
- 3,080万円
-
大阪市北区長柄西1丁目
-
大阪市谷町線天神橋筋六丁目
-










担当エージェント:春木 宏友
納得のお住まい購入をお手伝い。より多くの住まい情報をお客様に迅速にお届けし、お住まいをご自由にお選びいただける環境を作り出すよう最善を尽くします。お客様の10年後、20年後の将来を考えたお住まいのご提案を目指します。お住まいのご購入が終わった後も、末永いお付き合いをお約束し誠意を持って対応させていただくことを誓います。全国のネットワークを通じ、情報収集し、お客様に最良のお住まいをご提案いたします。