中古戸建 根塚町3丁目
掲載情報更新日:2025年10月28日 次回更新予定日:2025年11月11日
- 3,900万円
 - 
                    
- 借入ご希望金額
万円 -  借入期間
年 -  借入金利
% -  月々のお支払い金額
円 
 - 借入ご希望金額
 
※ 月々のお支払例は目安の試算となりますので、実際の金額とは異なる場合がございます。詳しくは店舗までお問合わせください。
- 富山市根塚町3丁目
 - 
                    『富山市民病院前』 徒歩6分 (約480m)
 
中古戸建 根塚町3丁目一戸建て | 物件情報
【光陽小学校区☆敷地・約175坪】41号線へのアクセス抜群!雰囲気のある和風住宅です(^^)/
            
        
            光陽小学校区のまちなかで、約175坪の広々とした敷地です!!
約70坪の和風住宅で、広い縁側からは四季折々の和風庭園を楽しむことができます。
周辺には商業施設も多く、8DKありますのでお住まいやその他様々な利用方法での活用が可能です☆        
物件の設備
- 上水道
 - 下水道
 - 都市ガス
 - コンロ二口
 - 独立キッチン
 - 浴室に窓
 - トイレ2箇所
 - 洗髪洗面化粧台
 - エアコン2基
 - 出窓
 - クローゼット
 - 床下収納
 - 縁側
 
物件の特徴
- 前道6m以上
 - 南側道路面す
 - 2階建
 
物件詳細情報
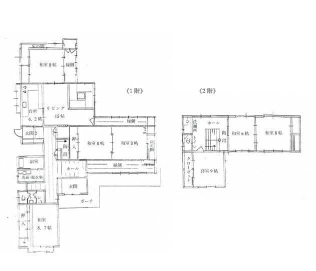
| 価格 | 3,900万円 | 間取り | 8DK | 
|---|---|---|---|
| 物件種別 | 中古一戸建て | ||
| 所在地 | 富山県富山市根塚町3丁目 | ||
| アクセス | 
            
  | 
    ||
| 建物面積 | 232.12㎡ | 駐車場 | あり | 
| 築年月 | 1988年(昭和63年)10月築 | ||
| 建物構造 | 木造 2階建 | 工法 | |
| 主要採光 | バルコニー | ||
| 保証・評価 | |||
| リフォーム | |||
| 土地面積 | 公578.67㎡(175.04坪) | 接道 | 南側(公道)幅 約6.0m 間口 約16.60m | 
    
| 私道 | セットバック | ||
| 地目 | 宅地 | 地勢 | |
| 権利 | 所有権 | 
    ||
| 都市計画 | 市街化区域 | 
        用途地域 | 1種住居(一部2種中高 含む) | 
| 建ぺい/容積率 | 60% / 200% | 土地国土法 | |
| 許可番号 | 建築基準法 | ||
| 法令制限 | |||
| 小学区 | 光陽小学校 徒歩8分 (約619m) | 中学区 | 南部中学校 徒歩15分 (約1200m) | 
| 現況 | 空 | 引渡 | 相談 | 
| その他費用 | |||
| 備考 | 囲炉裏を囲める素敵な和風住宅です♪ 和の雰囲気で心落ち着く空間です。 是非一度見学にお越しくださいませ(´-`*) 光陽小学校区域内であり利便性の高い住宅地の一画。 約175坪の広大な敷地に和風庭園があり、四季の変化を感じることが出来ます。 主要採光面:南向き 設備保証なし、雨漏り跡あり。現状有姿売買 ☆周辺環境☆ ・大阪屋ショップ太郎丸店まで徒歩5分(約443m) ・セブンイレブン富山太郎丸店まで徒歩2分(約183m) ・富山市立市民病院まで徒歩6分(約517m) 当社はお客様のお住まい探しを全力でお手伝いいたします!! 元銀行員のスタッフが、ローンのご相談も承ります(^^)/ その他リフォームやお住まいのことならなんでもお気軽にお問い合わせください☆  | 
    ||
| 物件番号 | 4180989 | 取引態様 | 媒介 | 
取扱店舗情報
ハウスドゥ 富山駅北 セブン不動産株式会社 店舗詳細ページへ
| 電話番号 | 076-464-6351 | 
|---|---|
| 所在地 | 〒930-0853 富山県富山市永楽町27-16  | 
            
| 営業時間 | 9:30~17:30 | 
| 定休日 | 水曜日、祝日、年末年始 | 
| 宅建免許番号 | 富山県知事(1)第3250号 | 
| アクセス | 店舗への地図はこちら | 

来店ご予約
富山県富山市で価格が似ている物件はこちら
- 富山県
マイページ物件数 - 872件
 
富山県中古一戸建て新着物件
- お近くの店舗を探す
 - 
            
            
            
 
おすすめ物件
- 
				
- 
														

 - 
						
- 中古一戸建て
 - 2,990万円
 - 
								
									
富山市山室
 - 
								
富山地鉄不二越上滝線大泉
 
 
 - 
														
 - 
				
- 
														

 - 
						
- 中古一戸建て
 - 435万円
 - 
								
									
射水市庄西町1丁目
 - 
								
万葉線六渡寺
 
 
 - 
														
 - 
				
- 
														

 - 
						
- 中古一戸建て
 - 2,100万円
 - 
								
									
富山市奥井町
 - 
								
富山地鉄富山港線奥田中学校前
 
 
 - 
														
 - 
				
- 
														

 - 
						
- 中古一戸建て
 - 50万円
 - 
								
									
射水市本町3丁目
 - 
								
万葉線第一イン新湊クロスベ
 
 
 - 
														
 - 
				
- 
														

 - 
						
- 中古一戸建て
 - 855万円
 - 
								
									
富山市岩瀬文化町
 - 
								
富山地鉄富山港線競輪場前
 
 
 - 
														
 - 
				
- 
														

 - 
						
- 中古一戸建て
 - 1,398万円
 - 
								
									
高岡市野村
 - 
								
JR氷見線越中中川
 
 
 - 
														
 - 
				
- 
														

 - 
						
- 中古一戸建て
 - 2,805万円
 - 
								
									
富山市中島3丁目
 - 
								
富山地鉄富山港線粟島(大阪屋前)
 
 
 - 
														
 - 
				
- 
														

 - 
						
- 中古一戸建て
 - 1,980万円
 - 
								
									
富山市粟島町3丁目
 - 
								
富山地鉄富山港線粟島(大阪屋前)
 
 
 - 
														
 - 
				
- 
														

 - 
						
- 中古一戸建て
 - 350万円
 - 
								
									
射水市八幡町3丁目
 - 
								
万葉線中新湊
 
 
 - 
														
 - 
				
- 
														

 - 
						
- 中古一戸建て
 - 2,680万円
 - 
								
									
富山市新根塚町1丁目
 - 
								
あいの風とやま鉄道富山
 
 
 - 
														
 
    
                        
                        
                        
                    

                



















                
            
                    
                                            
                                            






						
						