宮崎市花ケ島町立野の中古戸建
掲載情報更新日:2026年03月05日 次回更新予定日:2026年03月19日
- 3,210万円
-
- 借入ご希望金額
万円 - 借入期間
年 - 借入金利
% - 月々のお支払い金額
円
- 借入ご希望金額
※ 月々のお支払例は目安の試算となりますので、実際の金額とは異なる場合がございます。詳しくは店舗までお問合わせください。
- 宮崎市花ケ島町立野
-
JR日豊本線『宮崎神宮』 徒歩12分 (約930m)
JR日豊本線『蓮ケ池』 徒歩29分 (約2250m)
『南花ヶ島』 徒歩5分 (約400m)
宮崎市花ケ島町立野一戸建て | 物件情報
\和風2階建住宅と平屋住宅の2物件/《事業利用にも適した物件です♪》お気軽にお問い合わせください♪
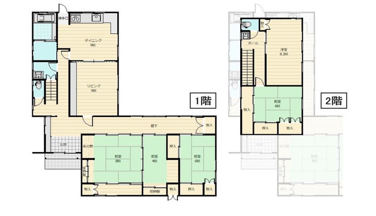
【木造瓦葺2階建】
土地面積:263.12㎡(79.59坪)
建物面積:169.21㎡(51.18坪)
築年月日:昭和63年4月30日(築37年)
【木造瓦葺平家建】
土地面積:202.38㎡(61.21坪)
建物面積: 86.53㎡(26.17坪)
築年月日:推定築32年(建物未登記:売主にて表示登記を行います)
▼立地
◎東大宮小学校…徒歩6分(480m)
◎東大宮中学校…徒歩16分(1220m)
◆◇当店について◇◆
〇不動産売買仲介専門FCで
店舗数第1位のハウスドゥ加盟店です
安心してご相談ください
■弊社サービスご案内
〇資金計画の無料相談
〇ハウスメーカー・工務店のご紹介
〇オプション、リフォーム、太陽光発電
のお見積もりから施工まで
〇保険の加入や引越しの段取り
物件の設備
- 公営水道
- 下水道
- 都市ガス
- 給湯
- IHクッキングヒータ
- システムキッチン
- バス
- 浴室に窓
- トイレ
- 室内洗濯機置場
- 洗髪洗面化粧台
- 洗面所独立
- エアコン
- 照明器具
- 和室
- フローリング
- クローゼット
- シューズボックス
- 庭
物件の特徴
- 2階建
- 即入居可
物件詳細情報
| 価格 | 3,210万円 | 間取り | 5LDK |
|---|---|---|---|
| 物件種別 | 中古一戸建て | ||
| 所在地 | 宮崎県宮崎市花ケ島町立野 | ||
| アクセス |
|
||
| 建物面積 | 169.21㎡ | 駐車場 | あり 普通:2台 |
| 築年月 | 1988年(昭和63年)04月築 | ||
| 建物構造 | 木造 2階建 | 工法 | |
| 主要採光 | バルコニー | ||
| 保証・評価 | |||
| リフォーム | |||
| 土地面積 | 465.5㎡(140.81坪) | 接道 | |
| 私道 | セットバック | ||
| 地目 | 宅地 | 地勢 | |
| 権利 | 所有権 |
||
| 都市計画 | 用途地域 | 指定無 | |
| 建ぺい/容積率 | 60% / 200% | 土地国土法 | |
| 許可番号 | 建築基準法 | ||
| 法令制限 | |||
| 小学区 | 東大宮小学校 徒歩6分 (約480m) | 中学区 | 東大宮中学校 徒歩16分 (約1220m) |
| 現況 | 空 | 引渡 | 即 |
| その他費用 | |||
| 周辺環境 | 東大宮小学校 徒歩6分 (約480m) ファミリーマート東大宮店 徒歩10分 (約760m) マツモトキヨシ 花ヶ島店 徒歩9分 (約720m) コープみやざき 花ヶ島店 徒歩11分 (約880m) タイヨー桜町店 徒歩13分 (約1000m) セリア桜町店 徒歩13分 (約1000m) セブンイレブン宮崎大島町店 徒歩14分 (約1120m) 宮崎神宮駅 徒歩12分 (約930m) 東大宮中学校 徒歩16分 (約1220m) |
||
| 備考 | ◎和風造りの2階建住宅(5LDK・51.18坪)とインナーガレージ付き平屋住宅(26.17坪)の2棟セット販売 ◎広い庭や駐車スペースの拡張も可能 |
||
| 物件番号 | 4205493 | 取引態様 | 媒介 |
取扱店舗情報
| 電話番号 | 0985-66-0753 |
|---|---|
| 所在地 | 〒880-0872 宮崎県宮崎市永楽町17 |
| 営業時間 | 9:00~18:00 |
| 定休日 | 水曜日、年末年始 |
| 宅建免許番号 | 宮崎県知事(1)第5078号 |
| アクセス | 店舗への地図はこちら |

来店ご予約
宮崎県宮崎市で価格が似ている物件はこちら
- 宮崎県
マイページ物件数 - 1,590件
最近見た物件
-
-

-
- 土地
- 1,350万円
-
姫路市広畑区小坂
-
JR山陽本線はりま勝原
-
-
-

-
- 土地
- 1,580万円
-
宇都宮市下川俣町
-
JR東北本線岡本
-
-
-

-
- 中古一戸建て
- 4,300万円
-
岡崎市上佐々木町字中切
-
JR東海道本線西岡崎
-
宮崎県中古一戸建て新着物件
-
-

-
- 中古一戸建て
- 2,700万円
-
宮崎市出来島町
-
JR日豊本線宮崎駅
-
-
-

-
- 中古一戸建て
- 1,580万円
-
宮崎市佐土原町下田島
-
JR日豊本線佐土原駅
-
-
-

-
- 中古一戸建て
- 1,680万円
-
宮崎市高岡町五町
-
JR日豊本線宮崎神宮駅
-
-
-

-
- 中古一戸建て
- 2,300万円
-
宮崎市学園木花台南3丁目
-
JR日南線木花駅
-
-
-

-
- 中古一戸建て
- 2,749万円
-
児湯郡高鍋町大字北高鍋
-
JR日豊本線高鍋駅
-
-
-

-
- 中古一戸建て
- 2,800万円
-
宮崎市大塚町樋ノ口
-
大塚神社前
-
-
-

-
- 中古一戸建て
- 750万円
-
宮崎市佐土原町下田島
-
JR日豊本線佐土原駅
-
- お近くの店舗を探す
-
おすすめ物件
-
-

-
- 中古一戸建て
- 1,250万円
-
宮崎市清武町今泉丙
-
JR日豊本線清武
-
-
-

-
- 中古一戸建て
- 2,300万円
-
宮崎市学園木花台南3丁目
-
JR日南線木花
-
-
-

-
- 中古一戸建て
- 1,150万円
-
宮崎市大字本郷北方
-
JR日南線田吉
-
-
-

-
- 中古一戸建て
- 900万円
-
宮崎市清武町加納甲
-
JR日豊本線清武
-
-
-

-
- 中古一戸建て
- 1,350万円
-
宮崎市大塚町小原田
-
JR日豊本線宮崎
-
-
-

-
- 中古一戸建て
- 280万円
-
宮崎市佐土原町東上那珂
-
野久尾バス停
-
-
-

-
- 中古一戸建て
- 3,600万円
-
宮崎市高岡町飯田3丁目
-
JR日豊本線宮崎
-
-
-

-
- 中古一戸建て
- 1,990万円
-
宮崎市吉村町曽師前
-
JR日豊本線宮崎
-
-
-

-
- 中古一戸建て
- 2,000万円
-
宮崎市江南2丁目
-
JR日豊本線南宮崎
-
-
-

-
- 中古一戸建て
- 700万円
-
日南市南郷町中村乙
-
JR日南線南郷
-






























長年リフォームに携わってきたスタッフ在籍。ご予算・ご希望に応じてリフォームのご提案ができます。物件のご案内、購入の流れ、資金やローンについて1から丁寧にご説明いたします!