宮崎市佐土原町上田島の中古戸建
掲載情報更新日:2026年02月27日 次回更新予定日:2026年03月13日
- 3,200万円
-
- 借入ご希望金額
万円 - 借入期間
年 - 借入金利
% - 月々のお支払い金額
円
- 借入ご希望金額
※ 月々のお支払例は目安の試算となりますので、実際の金額とは異なる場合がございます。詳しくは店舗までお問合わせください。
- 宮崎市佐土原町上田島
-
JR日豊本線『佐土原』 徒歩72分 (約5710m)
JR日豊本線『日向住吉』 徒歩99分 (約7850m)
JR日豊本線『蓮ケ池』 車27分(約11.0km)
宮崎交通『まんだら』 徒歩1分 (約80m)
宮崎市佐土原町上田島一戸建て | 物件情報
築100年以上の味わい深い古民家☆リフォーム・店舗利用も可能!広い敷地で駐車10台以上可◎
◆築100年以上の趣ある古民家!
歴史を感じる佇まいで、古民家カフェや雑貨店などの店舗利用にもおすすめ。
◆室内リフォーム可能!
お好みに合わせてリノベーションができるので、理想の空間を自由に設計できます。
◆広々とした敷地&駐車10台以上可!
裏手にはゆとりのある駐車スペースを確保。来客の多い店舗運営にも便利です。
◆生活便利な立地!
佐土原小学校まで徒歩7分、佐土原中学校まで徒歩16分。バス停「まんだら」徒歩3分で交通アクセスも良好。
物件の設備
- 電気
- 和室
- 庭
物件の特徴
- 角地
物件詳細情報
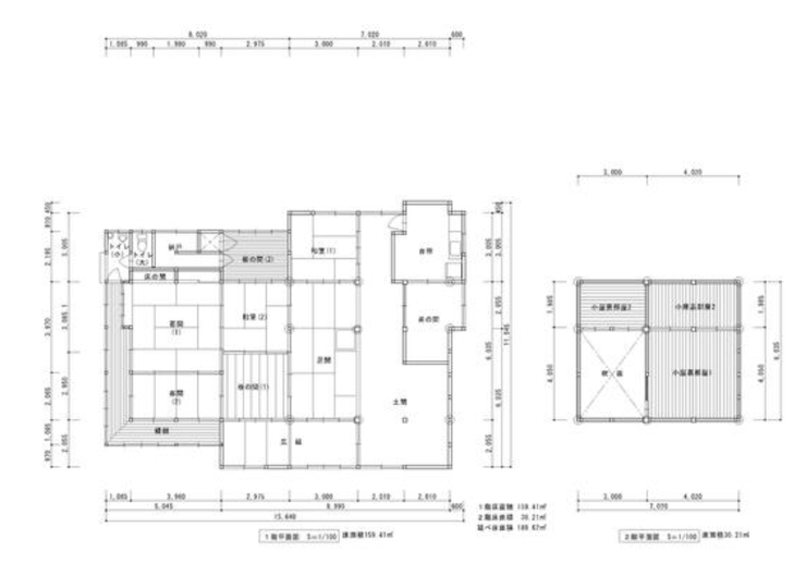
| 価格 | 3,200万円 | 間取り | 6LDK+S |
|---|---|---|---|
| 物件種別 | 中古一戸建て | ||
| 所在地 | 宮崎県宮崎市佐土原町上田島 | ||
| アクセス |
|
||
| 建物面積 | 公125.61㎡ | 駐車場 | あり 普通:10台 |
| 築年月 | 1868年(慶応4年)01月築 | ||
| 建物構造 | 木造 1階建 | 工法 | |
| 主要採光 | バルコニー | ||
| 保証・評価 | |||
| リフォーム | |||
| 土地面積 | 公1504.13㎡(454.99坪) | 接道 | |
| 私道 | セットバック | ||
| 地目 | 宅地 | 地勢 | 平坦 |
| 権利 | 所有権 |
||
| 都市計画 | 市街化区域 |
用途地域 | 2種住居 |
| 建ぺい/容積率 | 60% / 200% | 土地国土法 | |
| 許可番号 | 建築基準法 | ||
| 法令制限 | |||
| 小学区 | 佐土原小学校 徒歩7分 (約560m) | 中学区 | 佐土原中学校 徒歩16分 (約1280m) |
| 現況 | 空 | 引渡 | 相談 |
| その他費用 | |||
| 周辺環境 | 佐土原小学校 徒歩7分 (約560m) Foodaly 佐土原店 徒歩9分 (約720m) セブンイレブン 佐土原上田島店 徒歩9分 (約690m) 佐土原中学校 徒歩16分 (約1280m) ファミリーマート佐土原東上那珂店 徒歩32分 (約2490m) 那珂小学校 徒歩33分 (約2590m) セブンイレブン 佐土原東上那珂店 徒歩37分 (約2930m) |
||
| 備考 | 築年数は大正以前で100年以上経っています。 売主様のご要望により、建物を壊さずそのまま購入してください。 室内のリフォーム工事は可能です。古民家風のお店としての使用もできます。裏の敷地は10台以上の駐車スペースがあります。 ※価格はご相談下さい。 |
||
| 物件番号 | 4470567 | 取引態様 | 媒介 |
取扱店舗情報
| 電話番号 | 0985-86-7336 |
|---|---|
| 所在地 | 〒889-1607 宮崎県宮崎市清武町加納3丁目16 メモワールII101号室 |
| 営業時間 | 9:00~20:00 |
| 定休日 | 不定休 |
| 宅建免許番号 | 宮崎県知事(1)第4995号 |
| アクセス | 店舗への地図はこちら |

来店ご予約
宮崎県宮崎市で価格が似ている物件はこちら
- 宮崎県
マイページ物件数 - 1,634件
最近見た物件
宮崎県中古一戸建て新着物件
-
-

-
- 中古一戸建て
- 750万円
-
宮崎市佐土原町下田島
-
JR日豊本線佐土原駅
-
-
-

-
- 中古一戸建て
- 2,050万円
-
宮崎市大字赤江
-
JR日南線田吉駅
-
-
-

-
- 中古一戸建て
- 1,580万円
-
宮崎市佐土原町下田島
-
JR日豊本線佐土原駅
-
-
-

-
- 中古一戸建て
- 980万円
-
宮崎市大字赤江
-
JR宮崎空港線田吉駅
-
-
-

-
- 中古一戸建て
- 1,880万円
-
宮崎市恒久6丁目
-
JR日豊本線南宮崎駅
-
-
-

-
- 中古一戸建て
- 500万円
-
宮崎市佐土原町下田島
-
JR日豊本線佐土原駅
-
-
-

-
- 中古一戸建て
- 3,400万円
-
宮崎市曽師町
-
JR日豊本線宮崎駅
-
- お近くの店舗を探す
-
おすすめ物件
-
-

-
- 中古一戸建て
- 2,900万円
-
宮崎市田野町乙
-
JR日豊本線田野
-
-
-

-
- 中古一戸建て
- 700万円
-
日南市南郷町中村乙
-
JR日南線南郷
-
-
-

-
- 中古一戸建て
- 690万円
-
宮崎市東宮1丁目
-
JR日南線南方
-
-
-

-
- 中古一戸建て
- 1,990万円
-
宮崎市吉村町曽師前
-
JR日豊本線宮崎
-
-
-

-
- 中古一戸建て
- 900万円
-
宮崎市清武町加納甲
-
JR日豊本線清武
-
-
-

-
- 中古一戸建て
- 3,600万円
-
宮崎市高岡町飯田3丁目
-
JR日豊本線宮崎
-
-
-

-
- 中古一戸建て
- 2,000万円
-
宮崎市江南2丁目
-
JR日豊本線南宮崎
-
-
-

-
- 中古一戸建て
- 1,250万円
-
宮崎市清武町今泉丙
-
JR日豊本線清武
-
-
-

-
- 中古一戸建て
- 1,400万円
-
宮崎市堀川町
-
JR日豊本線宮崎
-
-
-

-
- 中古一戸建て
- 2,300万円
-
宮崎市学園木花台南3丁目
-
JR日南線木花
-













担当エージェント:小玉 賢太
築100年以上の趣ある古民家です。リフォームやリノベーションを行えば、住居としてはもちろん、カフェや雑貨店など店舗としての活用も可能。敷地が広く、駐車10台以上が可能です。歴史を感じる建物を活かしたい方、古民家好きの方におすすめの物件です。