白岡市西3丁目の中古戸建
掲載情報更新日:2026年04月03日 次回更新予定日:2026年04月17日
- 2,180万円
-
- 借入ご希望金額
万円 - 借入期間
年 - 借入金利
% - 月々のお支払い金額
円
- 借入ご希望金額
※ 月々のお支払例は目安の試算となりますので、実際の金額とは異なる場合がございます。詳しくは店舗までお問合わせください。
- 白岡市西3丁目
-
JR東北本線『白岡』 徒歩25分 (約1980m)
白岡市西3丁目一戸建て | 物件情報
【大人気前居室南向き物件!】状態良好 駐車場有 オール電化住宅 クロス張替済
□ほかに私道面積:ゴミ集積所3.41㎡の内持分18分の1
□内装クロス張替済
□ハウスクリーニング済
□前面道路に集中プロパンガスのガス管(50mm)が埋設されておりますが、オール電化のため引き込みはされておりません。
□本物件のソーラー発電では売電不可。
□オール電化住宅
□(現在ガスの供給はありません)2階の洗面台は給湯設備なし
【周辺環境】
・セブン-イレブン 白岡西5丁目店まで徒歩2分(約110m)
・petit madoca 白岡店まで徒歩4分(約320m)
・ツツジヶ丘公園まで徒歩6分(約420m)
・高梨内科医院まで徒歩6分(約460m)
・カスミ フードスクエア 白岡店まで徒歩6分(約420m)
・ジェーソン 白岡店まで徒歩6分(約460m)
・ローソン 白岡西七丁目店まで徒歩10分(約800m)
・生鮮市場TOP 白岡西店まで徒歩13分(約1010m)
物件の設備
- 電気
- オール電化
- 公営水道
- 公共下水
- IHクッキングヒータ
- カウンターキッチン
- トイレ2箇所
- 室内洗濯機置場
- 洗面所独立
- 太陽光発電システム
- LDK15畳以上
- 電動シャッター
物件の特徴
- 全室南向
- 前道6m以上
- 閑静な住宅街
- 陽当り良好
- 2階建
物件詳細情報
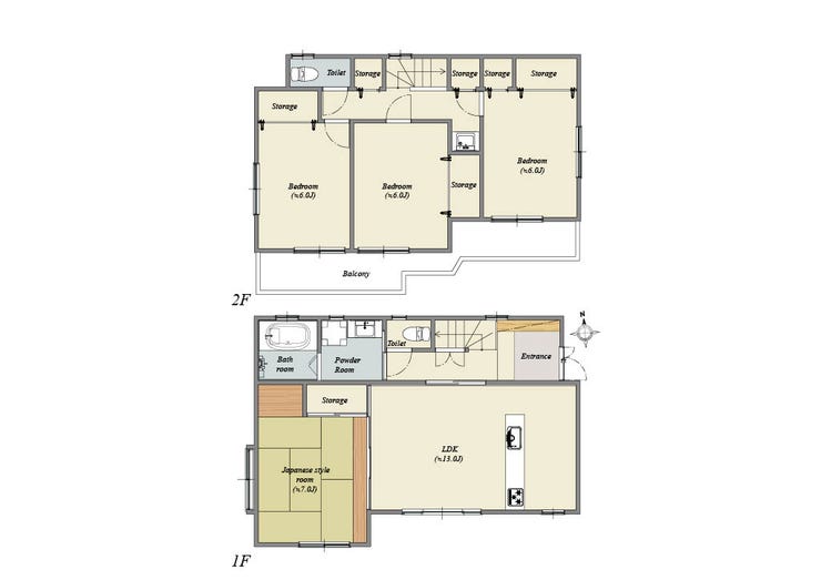
| 価格 | 2,180万円 | 間取り | 4LDK |
|---|---|---|---|
| 物件種別 | 中古一戸建て | ||
| 所在地 | 埼玉県白岡市西3丁目 | ||
| アクセス |
|
||
| 建物面積 | 公97.29㎡ | 駐車場 | あり 普通:1台 軽:1台 |
| 築年月 | 2010年(平成22年)07月築 | ||
| 建物構造 | 木造 2階建 | 工法 | |
| 主要採光 | 南向 | バルコニー | |
| 保証・評価 | |||
| リフォーム | |||
| 土地面積 | 公115.36㎡(34.89坪) | 接道 | 東側(公道)幅 約6.0m 間口 約9.00m |
| 私道 | セットバック | ||
| 地目 | 宅地 | 地勢 | |
| 権利 | 所有権 |
||
| 都市計画 | 市街化区域 |
用途地域 | 1種住居(一部1種中高 含む) |
| 建ぺい/容積率 | 60% / 200% | 土地国土法 | |
| 許可番号 | 建築基準法 | ||
| 法令制限 | |||
| 小学区 | 西小学校 徒歩11分 (約840m) | 中学区 | 白岡中学校 徒歩24分 (約1860m) |
| 現況 | 空 | 引渡 | 相談 |
| その他費用 | |||
| 周辺環境 | セブン-イレブン 白岡西5丁目店 徒歩2分 (約110m) petit madoca 白岡店 徒歩4分 (約320m) ツツジヶ丘公園 徒歩6分 (約420m) 高梨内科医院 徒歩6分 (約460m) カスミ フードスクエア 白岡店 徒歩6分 (約420m) ジェーソン 白岡店 徒歩6分 (約460m) ローソン 白岡西七丁目店 徒歩10分 (約800m) 生鮮市場TOP 白岡西店 徒歩13分 (約1010m) |
||
| 備考 | □ほかに私道面積:ゴミ集積所3.41㎡の内持分18分の1 □内装クロス張替済 □ハウスクリーニング済 □前面道路に集中プロパンガスのガス管(50mm)が埋設されておりますが、オール電化のため引き込みはされておりません。 □本物件のソーラー発電では売電不可。 □オール電化住宅 □(現在ガスの供給はありません)2階の洗面台は給湯設備なし 【周辺環境】 ・セブン-イレブン 白岡西5丁目店まで徒歩2分(約110m) ・petit madoca 白岡店まで徒歩4分(約320m) ・ツツジヶ丘公園まで徒歩6分(約420m) ・高梨内科医院まで徒歩6分(約460m) ・カスミ フードスクエア 白岡店まで徒歩6分(約420m) ・ジェーソン 白岡店まで徒歩6分(約460m) ・ローソン 白岡西七丁目店まで徒歩10分(約800m) ・生鮮市場TOP 白岡西店まで徒歩13分(約1010m) |
||
| 物件番号 | 4211819 | 取引態様 | 媒介 |
取扱店舗情報
| 電話番号 | 0480-48-7320 |
|---|---|
| 所在地 | 〒349-0218 埼玉県白岡市白岡1009-5 |
| 営業時間 | 9:00~18:00 |
| 定休日 | 火曜日、水曜日 |
| 宅建免許番号 | 埼玉県知事(1)第25611号 |
| アクセス | 店舗への地図はこちら |

来店ご予約
- 埼玉県
マイページ物件数 - 3,125件
埼玉県中古一戸建て新着物件
-
-

-
- 中古一戸建て
- 1,300万円
-
川口市元郷4丁目
-
埼玉高速鉄道川口元郷駅
-
-
-

-
- 中古一戸建て
- 6,690万円
-
さいたま市見沼区深作3丁目
-
湘南新宿ライン宇須東大宮駅
-
-
-

-
- 中古一戸建て
- 2,999万円
-
さいたま市桜区大字塚本
-
JR埼京線与野本町駅
-
-
-

-
- 中古一戸建て
- 1,980万円
-
さいたま市南区大字大谷口
-
JR京浜東北・根岸線浦和駅
-
-
-

-
- 中古一戸建て
- 2,399万円
-
さいたま市見沼区深作2丁目
-
東武野田線七里駅
-
-
-

-
- 中古一戸建て
- 6,980万円
-
さいたま市浦和区東岸町
-
JR京浜東北・根岸線南浦和駅
-
-
-

-
- 中古一戸建て
- 3,590万円
-
さいたま市大宮区三橋4丁目
-
JR京浜東北・根岸線大宮駅
-
- お近くの店舗を探す
-
おすすめ物件
-
-

-
- 中古一戸建て
- 2,350万円
-
さいたま市緑区大字三室
-
JR京浜東北・根岸線北浦和
-
-
-

-
- 中古一戸建て
- 2,699万円
-
三郷市早稲田8丁目
-
JR武蔵野線三郷
-
-
-

-
- 中古一戸建て
- 2,080万円
-
上尾市大字原市
-
埼玉新都市交通沼南
-
-
-

-
- 中古一戸建て
- 2,650万円
-
さいたま市大宮区三橋1丁目
-
JR東北本線大宮
-
-
-

-
- 中古一戸建て
- 3,799万円
-
さいたま市緑区大間木2丁目
-
JR武蔵野線東浦和
-
-
-

-
- 中古一戸建て
- 2,380万円
-
北葛飾郡松伏町大字松伏
-
東武伊勢崎・大師線北越谷
-
-
-

-
- 中古一戸建て
- 1,450万円
-
北足立郡伊奈町大字小室
-
埼玉新都市交通志久
-
-
-

-
- 中古一戸建て
- 2,120万円
-
入間市久保稲荷4丁目
-
西武池袋・豊島線武蔵藤沢
-
-
-

-
- 中古一戸建て
- 1,680万円
-
上尾市泉台3丁目
-
JR高崎線桶川
-
-
-

-
- 中古一戸建て
- 1,999万円
-
さいたま市見沼区大字中川
-
JR東北本線大宮
-






































担当エージェント:新井 亮太
白岡市西3丁目にございます中古戸建です。大人気の南向き物件です。
県道3号付近で都心部・郊外へのアクセス良好、生活施設も徒歩圏内です。
近くに元荒川が流れ、川沿いには桜並木がございますので、風情のあるエリアとなっております。
ぜひ現地にてご覧くださいませ。詳細は、お気軽にハウスドゥ白岡までお問い合せください。