中古戸建 秋田市仁井田本町四丁目
掲載情報更新日:2025年10月26日 次回更新予定日:2025年11月09日
- 2,480万円
-
- 借入ご希望金額
万円 - 借入期間
年 - 借入金利
% - 月々のお支払い金額
円
- 借入ご希望金額
※ 月々のお支払例は目安の試算となりますので、実際の金額とは異なる場合がございます。詳しくは店舗までお問合わせください。
- 秋田市仁井田本町4丁目
-
JR羽越本線『羽後牛島』 車6分(約2.8km)
JR奥羽本線『四ッ小屋』 車6分(約2.7km)
JR奥羽本線『秋田』 車15分(約5.5km)
中古戸建 秋田市仁井田本町四丁目一戸建て | 物件情報
築浅物件!2021年8月新築。大変きれいな状態のオール電化住宅。
水まわりの動線に配慮した、暮らしやすい間取りが魅力の住まいです。広めの洗面脱衣室は、洗濯物を干したり、着替えの収納スペースとしても活用でき、日々の家事や身支度がより快適になります。
物件の設備
- オール電化
- 公営水道
- 下水道
- 食器洗浄乾燥機
- 食品庫
- IHクッキングヒータ
- システムキッチン
- バス
- 浴室に窓
- トイレ2箇所
- 室内洗濯機置場
- 洗面所独立
- エアコン
- ダウンライト
- モニタ付インターホン
- LDK15畳以上
- 全室2面採光
- 全室フローリング
- 網戸
- クローゼット2箇所
- ウォークインクローゼット
- 全居室収納
物件の特徴
- 地盤調査済
- 小学校徒歩10分以内
- 前道6m以上
- 2階建
- 角地
- 整形地
- 建築確認完了検査済証
- 新築
- 増改築設計図書
物件詳細情報
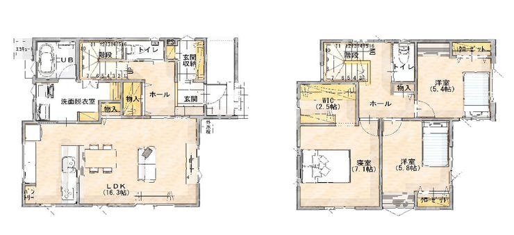
| 価格 | 2,480万円 | 間取り | 3LDK |
|---|---|---|---|
| 物件種別 | 中古一戸建て | ||
| 所在地 | 秋田県秋田市仁井田本町4丁目 | ||
| アクセス |
|
||
| 建物面積 | 公99.21㎡ | 駐車場 | あり 普通:2台 |
| 築年月 | 2021年(令和3年)08月築 | ||
| 建物構造 | 木造 2階建 2階建 | 工法 | 軸組工法 |
| 主要採光 | バルコニー | ||
| 保証・評価 | |||
| リフォーム | |||
| 土地面積 | 公142.82㎡(43.20坪) | 接道 | 北側(公道)幅 約8.0m 東側(公道)幅 約6.4m |
| 私道 | セットバック | ||
| 地目 | 宅地 | 地勢 | |
| 権利 | 所有権 |
||
| 都市計画 | 市街化区域 |
用途地域 | 1種低層 |
| 建ぺい/容積率 | 50% / 80% | 土地国土法 | |
| 許可番号 | 建築基準法 | ||
| 法令制限 | 景観法による規制有・都市再生特別地区 | ||
| 小学区 | 仁井田小学校 徒歩8分 (約600m) | 中学区 | 御野場中学校 徒歩18分 (約1400m) |
| 現況 | 居住中 | 引渡 | 相談 |
| その他費用 | |||
| 周辺環境 | 秋田市立仁井田小学校 徒歩1分 (約80m) 秋田市立御野場中学校 徒歩14分 (約1080m) 業務スーパー 秋田仁井田店 徒歩3分 (約240m) ナイス 仁井田南店 徒歩11分 (約810m) ツルハドラッグ 秋田仁井田店 徒歩4分 (約300m) サンデー 秋田御野場店 徒歩12分 (約930m) ローソン 秋田仁井田栄町店 徒歩13分 (約1000m) TSUTAYA 仁井田店 徒歩9分 (約650m) 株式会社 北都銀行 秋田南支店 徒歩11分 (約860m) 株式会社 秋田銀行 御野場支店 徒歩15分 (約1130m) |
||
| 備考 | |||
| 物件番号 | 4226271 | 取引態様 | 媒介 |
取扱店舗情報
| 電話番号 | 018-838-7939 |
|---|---|
| 所在地 | 〒010-0917 秋田県秋田市泉中央6丁目4-17 |
| 営業時間 | 10:00~18:00 |
| 定休日 | 火曜日、水曜日、年末年始 |
| 宅建免許番号 | 秋田県知事(1)第2369号 |
| アクセス | 店舗への地図はこちら |

来店ご予約
秋田県秋田市で価格が似ている物件はこちら
- 秋田県
マイページ物件数 - 201件
最近見た物件
-
-

-
- 中古一戸建て
- 390万円
-
下関市大平町
-
JR山陽本線下関
-
-
-

-
- 中古マンション
- 1,499万円
-
熊本市中央区新大江2丁目
-
JR豊肥本線水前寺
-
-
-

-
- 中古一戸建て
- 1,599万円
-
下野市石橋
-
JR東北本線石橋
-
秋田県中古一戸建て新着物件
-
-

-
- 中古一戸建て
- 566万円
-
横手市大森町上溝字松原
-
JR奥羽本線横手駅
-
-
-

-
- 中古一戸建て
- 980万円
-
秋田市楢山城南町
-
JR羽越本線羽後牛島駅
-
-
-

-
- 中古一戸建て
- 2,980万円
-
秋田市新屋寿町
-
JR羽越本線羽後牛島駅
-
-
-

-
- 中古一戸建て
- 2,980万円
-
横手市十文字町腕越字西原
-
JR奥羽本線十文字駅
-
-
-

-
- 中古一戸建て
- 190万円
-
横手市中央町
-
JR奥羽本線横手駅
-
-
-

-
- 中古一戸建て
- 88万円
-
横手市増田町増田字七日町
-
JR奥羽本線十文字駅
-
-
-

-
- 中古一戸建て
- 1,300万円
-
横手市十文字町字大道東
-
JR奥羽本線十文字駅
-
- お近くの店舗を探す
-
おすすめ物件
-
-

-
- 中古一戸建て
- 2,840万円
-
秋田市土崎港北2丁目
-
JR奥羽本線土崎
-
-
-

-
- 中古一戸建て
- 850万円
-
秋田市土崎港相染町字浜ナシ山
-
JR奥羽本線土崎
-
-
-

-
- 中古一戸建て
- 3,090万円
-
秋田市新屋前野町
-
JR羽越本線新屋
-
-
-

-
- 中古一戸建て
- 550万円
-
秋田市保戸野すわ町
-
JR奥羽本線秋田
-
-
-

-
- 中古一戸建て
- 2,580万円
-
秋田市新屋表町
-
JR羽越本線新屋
-
-
-

-
- 中古一戸建て
- 630万円
-
秋田市飯島道東2丁目
-
JR奥羽本線上飯島
-
-
-

-
- 中古一戸建て
- 2,200万円
-
男鹿市船川港船川字鳥屋場
-
JR男鹿線男鹿
-
-
-

-
- 中古一戸建て
- 2,480万円
-
秋田市仁井田本町4丁目
-
JR羽越本線羽後牛島
-
-
-

-
- 中古一戸建て
- 1,150万円
-
秋田市土崎港北4丁目
-
JR奥羽本線土崎
-
-
-

-
- 中古一戸建て
- 1,980万円
-
秋田市桜台3丁目
-
JR奥羽本線秋田
-

















ローン審査からお引き渡し、購入後のサポートまで、しっかり丁寧に対応します。初めての不動産購入も安心しておまかせください♪