中古戸建 秋田市新屋前野町
掲載情報更新日:2025年11月02日 次回更新予定日:2025年11月16日
- 3,090万円
-
- 借入ご希望金額
万円 - 借入期間
年 - 借入金利
% - 月々のお支払い金額
円
- 借入ご希望金額
※ 月々のお支払例は目安の試算となりますので、実際の金額とは異なる場合がございます。詳しくは店舗までお問合わせください。
- 秋田市新屋前野町
-
JR羽越本線『新屋』 車4分(約1.3km)
JR羽越本線『新屋』 徒歩15分 (約1200m)
JR羽越本線『羽後牛島』 車16分(約7.4km)
中古戸建 秋田市新屋前野町一戸建て | 物件情報
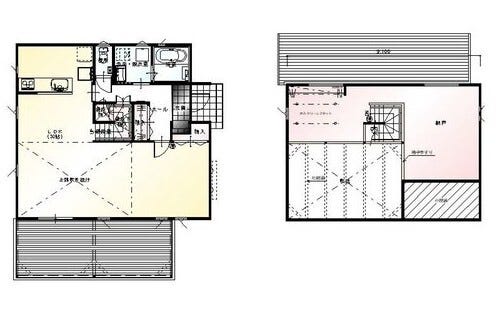
解放感のある吹き抜けと、広いウッドデッキが魅力の平屋です☆
リビングの天井は吹き抜けとなっており、開放感のある空間が広がっています。お庭と広いウッドデッキは、ガーデニングやバーベキューなどが楽しめ、住む人それぞれの用途で使えて便利です。
物件の設備
- 公営水道
- 下水道
- 都市ガス
- 給湯
- 食器洗浄乾燥機
- IHクッキングヒータ
- システムキッチン
- オートバス
- 浴室に窓
- トイレ
- 温水洗浄便座
- 室内洗濯機置場
- 洗髪洗面化粧台
- 洗面所独立
- リビング階段
- 省エネ給湯器
- モニタ付インターホン
- LDK15畳以上
- 天井高2.5m以上
- 吹抜
- 複層ガラス
- 全居室複層ガラス
- 全室フローリング
- 南庭
- ウッドデッキ
物件の特徴
- 高気密高断熱住宅
- 駅まで平坦
- 閑静な住宅街
- 市街地が近い
- 陽当り良好
物件詳細情報
| 価格 | 3,090万円 | 間取り | 1LDK+S |
|---|---|---|---|
| 物件種別 | 中古一戸建て | ||
| 所在地 | 秋田県秋田市新屋前野町 | ||
| アクセス |
|
||
| 建物面積 | 公92.74㎡ | 駐車場 | あり 普通:2台 |
| 築年月 | 2022年(令和4年)06月築 | ||
| 建物構造 | 木造 1階建 | 工法 | 軸組工法 |
| 主要採光 | バルコニー | ||
| 保証・評価 | |||
| リフォーム | |||
| 土地面積 | 公327.71㎡(99.13坪) | 接道 | 東側(公道)幅 約4.0m |
| 私道 | セットバック | ||
| 地目 | 宅地 | 地勢 | |
| 権利 | 所有権 |
||
| 都市計画 | 用途地域 | 1種低層 | |
| 建ぺい/容積率 | 40% / 60% | 土地国土法 | |
| 許可番号 | 建築基準法 | ||
| 法令制限 | 景観法による規制有 | ||
| 小学区 | 日新小学校 徒歩30分 (約2400m) | 中学区 | 秋田西中学校 徒歩24分 (約1900m) |
| 現況 | 空 | 引渡 | 相談 |
| その他費用 | |||
| 周辺環境 | ローソン 秋田新屋鳥木町店 徒歩10分 (約760m) セブン-イレブン 秋田新屋田尻沢店 徒歩10分 (約760m) ナイス 新屋店 徒歩19分 (約1520m) 新屋駅前郵便局 徒歩15分 (約1130m) 秋田銀行 新屋支店 徒歩17分 (約1310m) 秋田市西部市民サービスセンター 徒歩16分 (約1260m) 秋田中央警察署 新屋交番 徒歩17分 (約1360m) 新屋駅 徒歩17分 (約1300m) 木村内科クリニック 徒歩12分 (約950m) おきた町診療所 徒歩6分 (約430m) |
||
| 備考 | |||
| 物件番号 | 4245917 | 取引態様 | 媒介 |
取扱店舗情報
| 電話番号 | 018-838-7939 |
|---|---|
| 所在地 | 〒010-0917 秋田県秋田市泉中央6丁目4-17 |
| 営業時間 | 10:00~18:00 |
| 定休日 | 火曜日、水曜日、年末年始 |
| 宅建免許番号 | 秋田県知事(1)第2369号 |
| アクセス | 店舗への地図はこちら |

来店ご予約
- 秋田県
マイページ物件数 - 201件
最近見た物件
-
-

-
- 中古一戸建て
- 761万円
-
多治見市笠原町
-
JR中央本線多治見
-
-
-

-
- 中古マンション
- 1,499万円
-
熊本市中央区新大江2丁目
-
JR豊肥本線水前寺
-
-
-

-
- 中古一戸建て
- 1,599万円
-
下野市石橋
-
JR東北本線石橋
-
秋田県中古一戸建て新着物件
-
-

-
- 中古一戸建て
- 566万円
-
横手市大森町上溝字松原
-
JR奥羽本線横手駅
-
-
-

-
- 中古一戸建て
- 980万円
-
秋田市楢山城南町
-
JR羽越本線羽後牛島駅
-
-
-

-
- 中古一戸建て
- 2,980万円
-
秋田市新屋寿町
-
JR羽越本線羽後牛島駅
-
-
-

-
- 中古一戸建て
- 2,980万円
-
横手市十文字町腕越字西原
-
JR奥羽本線十文字駅
-
-
-

-
- 中古一戸建て
- 190万円
-
横手市中央町
-
JR奥羽本線横手駅
-
-
-

-
- 中古一戸建て
- 88万円
-
横手市増田町増田字七日町
-
JR奥羽本線十文字駅
-
-
-

-
- 中古一戸建て
- 1,300万円
-
横手市十文字町字大道東
-
JR奥羽本線十文字駅
-
- お近くの店舗を探す
-
おすすめ物件
-
-

-
- 中古一戸建て
- 2,840万円
-
秋田市土崎港北2丁目
-
JR奥羽本線土崎
-
-
-

-
- 中古一戸建て
- 850万円
-
秋田市土崎港相染町字浜ナシ山
-
JR奥羽本線土崎
-
-
-

-
- 中古一戸建て
- 3,090万円
-
秋田市新屋前野町
-
JR羽越本線新屋
-
-
-

-
- 中古一戸建て
- 550万円
-
秋田市保戸野すわ町
-
JR奥羽本線秋田
-
-
-

-
- 中古一戸建て
- 2,580万円
-
秋田市新屋表町
-
JR羽越本線新屋
-
-
-

-
- 中古一戸建て
- 630万円
-
秋田市飯島道東2丁目
-
JR奥羽本線上飯島
-
-
-

-
- 中古一戸建て
- 2,200万円
-
男鹿市船川港船川字鳥屋場
-
JR男鹿線男鹿
-
-
-

-
- 中古一戸建て
- 2,480万円
-
秋田市仁井田本町4丁目
-
JR羽越本線羽後牛島
-
-
-

-
- 中古一戸建て
- 1,150万円
-
秋田市土崎港北4丁目
-
JR奥羽本線土崎
-
-
-

-
- 中古一戸建て
- 1,980万円
-
秋田市桜台3丁目
-
JR奥羽本線秋田
-





完成物件ですので、新生活をすぐに始めていただけます。住宅ローンのご相談も承りますので、初めての不動産購入も安心してお任せください。