Loading
  1. TOP>
  2. 中古一戸建て>
  3. 関東>
  4. 埼玉県>
  5. 秩父市>
  6. 山田>
  7. 秩父市山田の中古戸建

秩父市山田の中古戸建

掲載情報更新日:2025年09月29日 次回更新予定日:2025年10月13日

  • 2,980万円
    • 借入ご希望金額
      万円
    • 借入期間
    • 借入金利
    • 月々のお支払い金額

※ 月々のお支払例は目安の試算となりますので、実際の金額とは異なる場合がございます。詳しくは店舗までお問合わせください。

  • 秩父市山田
  • 秩父鉄道本線『大野原』 徒歩42分 (約3360m)
    秩父鉄道本線『秩父』 徒歩45分 (約3600m)
取扱会社:ハウスドゥ 上福岡  GLOBAL HOLDINGS株式会社
  • この物件に資料請求・問い合わせをする
  • ■お電話はこちら 通話料無料 0120-141-441

秩父市山田一戸建て | 物件情報

・秩父鉄道「大野原」駅より徒歩42分の立地・収納スペース充実~吹抜があり開放的な間取りの4LDK

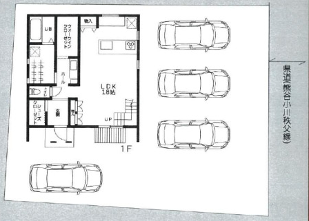
【間取り】
土地面積237.14平米、建物面積98.53平米~開放的な間取りの4LDK

【間取り】
土地面積237.14平米、建物面積98.53平米~開放的な間取りの4LDK

【外観】
秩父市山田にある中古戸建、秩父鉄道「大野原」駅より徒歩42分の立地

【外観】
秩父市山田にある中古戸建、秩父鉄道「大野原」駅より徒歩42分の立地

取扱会社
ハウスドゥ 上福岡  
  • この物件に資料請求・問い合わせをする
  • ■お電話はこちら 通話料無料 0120-141-441

アピールポイント

~只今キャンペーン中~ご成約頂いたお客様にもれなく1万円分のクオカードを進呈中~
・土地面積237.14平米、建物面積98.53平米の4LDK
・開放的な空間の吹抜リビング
・会話が弾む対面式キッチン
・駐車スペース4台完備
・2023年築の築浅物件
・太陽光パネル設置
・生活動線が良い間取り
・スーパーやドラッグストアが近くお買い物に便利です
~お気軽にお問い合わせ下さい~

物件の設備

  • 上水道
  • 浄化槽
  • カウンターキッチン
  • バス
  • トイレ
  • トイレ2箇所
  • リビング階段
  • 太陽光発電システム
  • 2面採光
  • 吹抜
  • クローゼット
  • ウォークインクローゼット
  • シューズインクローク

物件の特徴

  • 前道6m以上
  • スーパーが近い
  • 閑静な住宅街
  • 通風良好
  • 陽当り良好
  • 2階建

物件詳細情報

担当エージェント:島野 大

弊社はより多くの方が購入し易いリーズナブルな価格の中古物件を取り揃えております。お客様一人一人のニーズに合った物件探しをモットーに全力でサポート致します。是非お気軽にご相談下さい。

価格 2,980万円 間取り 4LDK
物件種別 中古一戸建て
所在地 埼玉県秩父市山田
アクセス
  • 秩父鉄道本線『大野原』 徒歩42分 (約3360m)
  • 秩父鉄道本線『秩父』 徒歩45分 (約3600m)
建物面積 公98.53㎡ 駐車場 あり 普通:4台
築年月 2023年(令和5年)06月築
建物構造 木造 2階建 工法
主要採光 南向 バルコニー
保証・評価
リフォーム
土地面積 公237.14㎡(71.73坪) 接道 南東側(公道)幅 約10.5m
私道 セットバック
地目 宅地 地勢
権利 所有権
都市計画 調整区域
調整区域につき建築許可要
用途地域 指定無
建ぺい/容積率 60% / 200% 土地国土法
許可番号 建築基準法
法令制限
小学区 高篠小学校 徒歩20分 (約1566m) 中学区 高篠中学校 徒歩16分 (約1225m)
現況 居住中 引渡 相談
その他費用
周辺環境 山田保育園 徒歩10分 (約780m)
秩父ほうしょう幼稚園 徒歩19分 (約1470m)
秩父市立高篠小学校 徒歩20分 (約1566m)
秩父市立高篠中学校 徒歩16分 (約1225m)
セブンイレブン 秩父山田店 徒歩13分 (約986m)
ラコマート 横瀬店 徒歩6分 (約415m)
ベルク 宮地店 徒歩48分 (約3780m)
ドラッグセイムス 秩父横瀬店 徒歩5分 (約380m)
秩父高篠郵便局 徒歩1分 (約38m)
水野医院 徒歩7分 (約540m)
備考
物件番号 4241069 取引態様 媒介

取扱店舗情報

ハウスドゥ 上福岡  GLOBAL HOLDINGS株式会社 店舗詳細ページへ

電話番号 049-264-1010
所在地 〒356-0006
埼玉県ふじみ野市霞ケ丘1丁目2番27 ココネ上福岡1F
営業時間 9:00~19:00
定休日 水曜日、年末年始
宅建免許番号 埼玉県知事(3)第22701号
アクセス 店舗への地図はこちら

ハウスドゥ  上福岡の外観

この物件に関する資料請求・お問合せ

通話料無料 0120-141-441

お問い合わせの際に「ホームページを見た」といっていただくとお話がスムーズになります。

来店ご予約

ウィンドウを閉じる

ハウスドゥ 上福岡  GLOBAL HOLDINGS株式会社への地図

  • ハウスドゥ  上福岡の地図
  • ハウスドゥ  上福岡の外観

GoogleMapで地図を見る

ウィンドウを閉じる

埼玉県秩父市の 中古一戸建て 一覧から探す

埼玉県秩父市で種別を変更して探す

埼玉県
マイページ物件数
3,702

マイページサービス

新規登録(無料)
  • 物件探しがもっと便利に
  • 希望情報をいち早くお届け
  • マイページ物件が閲覧可能

最近見た物件

埼玉県中古一戸建て新着物件

お近くの店舗を探す

おすすめ物件

無料アプリ