大津市日吉台3丁目の中古戸建
掲載情報更新日:2026年03月14日 次回更新予定日:2026年03月28日
- 1,280万円
-
- 借入ご希望金額
万円 - 借入期間
年 - 借入金利
% - 月々のお支払い金額
円
- 借入ご希望金額
※ 月々のお支払例は目安の試算となりますので、実際の金額とは異なる場合がございます。詳しくは店舗までお問合わせください。
- 大津市日吉台3丁目
-
JR湖西線『比叡山坂本』 徒歩21分 (約1680m)
京阪電鉄石山坂本線『坂本比叡山口』 徒歩24分 (約1920m)
JR湖西線『おごと温泉』 徒歩32分 (約2560m)
大津市日吉台3丁目一戸建て | 物件情報
物件の設備
- 電気
- 上水道
- 下水道
- 都市ガス
- コンロ三口
- 浴室に窓
- トイレ2箇所
- 室内洗濯機置場
- LDK18畳以上
- 和室
- 全居室6畳以上
- クローゼット
物件の特徴
- 2沿線利用可
- 小学校徒歩10分以内
- 前道6m以上
- 南側道路面す
- スーパーが近い
- 2階建
物件詳細情報
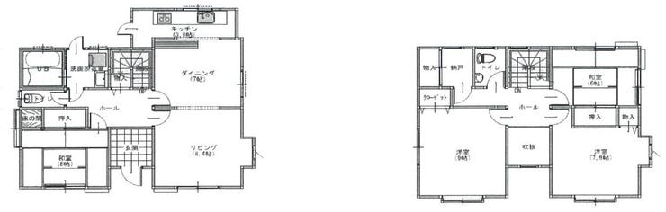
| 価格 | 1,280万円 | 間取り | 4LDK+S |
|---|---|---|---|
| 物件種別 | 中古一戸建て | ||
| 所在地 | 滋賀県大津市日吉台3丁目 | ||
| アクセス |
|
||
| 建物面積 | 115.38㎡ | 駐車場 | あり |
| 築年月 | 1979年(昭和54年)12月築 | ||
| 建物構造 | 木造 木造セメント瓦葺 2階建 | 工法 | |
| 主要採光 | バルコニー | ||
| 保証・評価 | |||
| リフォーム | |||
| 土地面積 | 198.02㎡(59.90坪) | 接道 | 南側(公道)幅 約6.2m |
| 私道 | セットバック | ||
| 地目 | 宅地 | 地勢 | 高台 |
| 権利 | 所有権 |
||
| 都市計画 | 市街化区域 |
用途地域 | 1種低層 |
| 建ぺい/容積率 | 50% / 80% | 土地国土法 | 届出不要 |
| 許可番号 | 建築基準法 | ||
| 法令制限 | ・壁面後退距離1m・高さ限度10m・第1種高度地区 | ||
| 小学区 | 日吉台小学校 徒歩4分 (約250m) | 中学区 | 日吉中学校 徒歩25分 (約2000m) |
| 現況 | 居住中 | 引渡 | 相談 |
| その他費用 | |||
| 備考 | ・キッチン部分増築未登記 | ||
| 物件番号 | 4248870 | 取引態様 | 媒介 |
取扱店舗情報
ハウスドゥ 家・不動産買取専門店 大津 株式会社マキ不動産販売 店舗詳細ページへ
| 電話番号 | 077-531-0120 |
|---|---|
| 所在地 | 〒520-0821 滋賀県大津市湖城が丘1番13号 マキトラストビル膳所 |
| 営業時間 | 9:00~18:30 |
| 定休日 | 第3火曜日、水曜日 |
| 宅建免許番号 | 滋賀県知事(5)第3019号 |
| アクセス | 店舗への地図はこちら |

来店ご予約
滋賀県大津市で価格が似ている物件はこちら
- 滋賀県
マイページ物件数 - 3,060件
最近見た物件
-
-

-
- 新築一戸建て
- 3,330万円
-
遠賀郡水巻町吉田西2丁目
-
JR鹿児島本線水巻
-
-
-

-
- 中古マンション
- 550万円
-
北九州市小倉北区清水2丁目
-
JR日豊本線南小倉
-
-
-

-
- 中古一戸建て
- 500万円
-
甲府市岩窪町
-
JR中央本線甲府
-
滋賀県中古一戸建て新着物件
- お近くの店舗を探す
-
おすすめ物件
-
-

-
- 中古一戸建て
- 2,080万円
-
大津市朝日2丁目
-
JR湖西線小野
-
-
-

-
- 中古一戸建て
- 5,498万円
-
守山市赤野井町
-
JR東海道線守山
-
-
-

-
- 中古一戸建て
- 1,990万円
-
東近江市今堀町
-
近江鉄道本線長谷野
-
-
-

-
- 中古一戸建て
- 3,800万円
-
米原市顔戸
-
JR北陸本線坂田
-
-
-

-
- 中古一戸建て
- 3,880万円
-
大津市大将軍3丁目
-
JR東海道線瀬田
-
-
-

-
- 中古一戸建て
- 1,990万円
-
近江八幡市安土町常楽寺
-
JR東海道線安土
-
-
-

-
- 中古一戸建て
- 200万円
-
甲賀市信楽町中野
-
信楽高原鉄道信楽
-
-
-

-
- 中古一戸建て
- 3,799万円
-
栗東市蜂屋
-
JR草津線手原
-
-
-

-
- 中古一戸建て
- 1,450万円
-
大津市本宮2丁目
-
JR東海道線膳所
-
-
-

-
- 中古一戸建て
- 2,525万円
-
大津市下阪本3丁目
-
JR湖西線比叡山坂本
-







