湖南市北山台2丁目の中古戸建
掲載情報更新日:2026年04月13日 次回更新予定日:2026年04月27日
- 3,280万円
-
- 借入ご希望金額
万円 - 借入期間
年 - 借入金利
% - 月々のお支払い金額
円
- 借入ご希望金額
※ 月々のお支払例は目安の試算となりますので、実際の金額とは異なる場合がございます。詳しくは店舗までお問合わせください。
- 湖南市北山台2丁目
-
JR草津線『石部』 徒歩36分 (約2880m)
湖南市北山台2丁目一戸建て | 物件情報
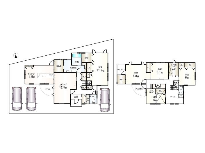
緑豊かな住宅街の、広々55坪の南向き、5LDK+Sのお家です。キッチン横には、うれしいパントリー付き!
家事導線もスムーズです。2階のホールも広々としていて、雨の日のお洗濯ものスペースにもできます。
駐車スペースは、3台可能です。
物件の設備
- 電気
- オール電化
- 上水道
- 公営水道
- 下水道
- 公共下水
- 食器洗浄乾燥機
- IHクッキングヒータ
- システムキッチン
- バス
- バス1坪以上
- 追焚機能
- 浴室乾燥機
- 浴室に窓
- トイレ
- トイレ2箇所
- 室内洗濯機置場
- LDK20畳以上
- 全居室6畳以上
- 吹抜
- フローリング
- 全室フローリング
- クッションフロア
- クローゼット
- クローゼット3箇所
- ウォークインクローゼット
- ウォークインクローゼット2箇所
- 納戸
- シューズWIC
物件の特徴
- 前道6m以上
- 南側道路面す
- ゴルフ場が近い
- スーパーが近い
- 閑静な住宅街
- 2階建
物件詳細情報
| 価格 | 3,280万円 | 間取り | 5LDK+S |
|---|---|---|---|
| 物件種別 | 中古一戸建て | ||
| 所在地 | 滋賀県湖南市北山台2丁目 | ||
| アクセス |
|
||
| 建物面積 | 公182.17㎡ | 駐車場 | あり 普通:3台 |
| 築年月 | 2015年(平成27年)07月築 | ||
| 建物構造 | 木造 2階建 | 工法 | |
| 主要採光 | バルコニー | ||
| 保証・評価 | |||
| リフォーム | |||
| 土地面積 | 公227.15㎡(68.71坪) | 接道 | 南側(公道)幅 約6.0m 間口 約18.80m |
| 私道 | セットバック | ||
| 地目 | 宅地 | 地勢 | |
| 権利 | 所有権 |
||
| 都市計画 | 市街化区域 |
用途地域 | 1種低層 |
| 建ぺい/容積率 | 60% / 100% | 土地国土法 | |
| 許可番号 | 建築基準法 | ||
| 法令制限 | |||
| 小学区 | 菩提寺小学校 徒歩22分 (約1717m) | 中学区 | 甲西北中学校 徒歩35分 (約2751m) |
| 現況 | 居住中 | 引渡 | 相談 |
| その他費用 | |||
| 備考 | 緑豊かな住宅街の、広々55坪の南向き、5LDK+Sのお家です。キッチン横には、うれしいパントリー付き! 家事導線もスムーズです。2階のホールも広々としていて、雨の日のお洗濯ものスペースにもできます。 駐車スペースは、3台可能です。 |
||
| 物件番号 | 4253120 | 取引態様 | 媒介 |
取扱店舗情報
| 電話番号 | 0748-76-3906 |
|---|---|
| 所在地 | 〒520-3107 滋賀県湖南市石部東3丁目1-47 |
| 営業時間 | 9:00~18:00 |
| 定休日 | 火曜日、水曜日、年末年始 |
| 宅建免許番号 | 滋賀県知事(1)第3887号 |
| アクセス | 店舗への地図はこちら |

来店ご予約
滋賀県湖南市で価格が似ている物件はこちら
- 滋賀県
マイページ物件数 - 2,891件
最近見た物件
-
-

-
- 中古一戸建て
- 1,350万円
-
玉野市八浜町八浜
-
『八浜市民センター』バス停
-
-
-

-
- 中古一戸建て
- 2,380万円
-
大阪市城東区中浜2丁目
-
大阪市今里筋線緑橋
-
-
-

-
- 中古一戸建て
- 790万円
-
和歌山市西庄
-
南海電気鉄道加太線八幡前
-
滋賀県中古一戸建て新着物件
-
-

-
- 中古一戸建て
- 2,300万円
-
犬上郡多賀町大字多賀
-
近江鉄道多賀線多賀大社前駅
-
-
-

-
- 中古一戸建て
- 1,890万円
-
大津市里6丁目
-
JR東海道線石山駅
-
-
-

-
- 中古一戸建て
- 490万円
-
犬上郡多賀町大字富之尾
-
近江鉄道多賀線多賀大社前駅
-
-
-

-
- 中古一戸建て
- 2,480万円
-
大津市神領2丁目
-
京阪電鉄石山坂本線唐橋前駅
-
-
-

-
- 中古一戸建て
- 1,400万円
-
彦根市栄町2丁目
-
JR東海道線彦根駅
-
-
-

-
- 中古一戸建て
- 1億5,500万円
-
栗東市川辺
-
JR草津線手原駅
-
-
-

-
- 中古一戸建て
- 2,049万円
-
近江八幡市安土町東老蘇
-
近江鉄道八日市線平田駅
-
- お近くの店舗を探す
-
おすすめ物件
-
-

-
- 中古一戸建て
- 3,480万円
-
草津市上笠4丁目
-
JR東海道線草津
-
-
-

-
- 中古一戸建て
- 1,300万円
-
彦根市西今町
-
JR東海道線南彦根
-
-
-

-
- 中古一戸建て
- 2,640万円
-
野洲市三上
-
JR東海道線野洲
-
-
-

-
- 中古一戸建て
- 2,498万円
-
宇治市羽戸山3丁目
-
JR奈良線黄檗
-
-
-

-
- 中古一戸建て
- 2,590万円
-
近江八幡市若葉町2丁目
-
JR東海道線近江八幡
-
-
-

-
- 中古一戸建て
- 1,998万円
-
大津市大江6丁目
-
JR東海道線瀬田
-
-
-

-
- 中古一戸建て
- 1,480万円
-
大津市瀬田6丁目
-
JR東海道線石山
-
-
-

-
- 中古一戸建て
- 1,698万円
-
大津市唐崎1丁目
-
JR湖西線唐崎
-
-
-

-
- 中古一戸建て
- 3,280万円
-
守山市立入町
-
JR東海道線守山
-
-
-

-
- 中古一戸建て
- 450万円
-
長浜市徳山町
-
JR北陸本線虎姫
-
















緑豊かな住宅街の、広々55坪の南向き、5LDK+Sのお家です。キッチン横には、うれしいパントリー付き!
家事導線もスムーズです。2階のホールも広々としていて、雨の日のお洗濯ものスペースにもできます。
駐車スペースは、3台可能です。