合志市豊岡の中古戸建
掲載情報更新日:2026年01月08日 次回更新予定日:2026年01月22日
- 2,398万円
-
- 借入ご希望金額
万円 - 借入期間
年 - 借入金利
% - 月々のお支払い金額
円
- 借入ご希望金額
※ 月々のお支払例は目安の試算となりますので、実際の金額とは異なる場合がございます。詳しくは店舗までお問合わせください。
- 合志市豊岡
-
熊本電気鉄道『熊本高専前』 徒歩28分 (約2240m)
『すずかけ台北』 徒歩4分 (約320m)
合志市豊岡一戸建て | 物件情報
《一気見ツアー今すぐOK》☆仲介手数料無料物件(77万円相当がお得!)お気軽にお問合せください♪
【内覧ツアー×最安値保証】ネットの物件、すべて当社で紹介可能!交渉力で「理想の価格」を叶えます
当社は通常かかる仲介手数料(物件価格の3%+6万円)が無料(例:3000万円の場合、90万円相当)
売主様への価格交渉も得意なので、どこよりもお安くご購入いただけるよう徹底サポートします!
他社様でお見積もりを取った後でも大丈夫!もっと安く買えるのでは?そんな悩みは当社が解決します
【内覧ツアー】
熊本県内全域の気になる物件をすべて当社でご内覧いただける『内覧ツアー』を実施中☆
新築・中古・中古マンションも!見学されたい物件を1日で内覧可能♪
窓口を一つに絞れるから、手間も時間もかかりません。
【最安値保証】
\最 安 値 徹 底 宣 言/
他社様よりも必ずお得にご購入いただけることをお約束します
当社ではオプション費用(エアコン、網戸、太陽光等)もお客様に代わり相見積もりします
トータルの費用が100万円以上変わることも!
全国700店舗以上展開!
ハウスドゥだからこその豊富な物件数・情報量でお客様のお家選びをトータルサポートいたします!
物件の設備
- 電気
- 上水道
- 公営水道
- 下水道
- 公共下水
- 都市ガス
- 給湯
- コンロ三口
- グリル
- システムキッチン
- バス
- バス1坪以上
- 追焚機能
- 浴室に窓
- トイレ
- トイレ2箇所
- 温水洗浄便座
- 室内洗濯機置場
- 洗髪洗面化粧台
- 洗面所独立
- モニタ付インターホン
- 和室
- 和室8畳以上
- 全居室6畳以上
- 2面採光
- フローリング
- 一部フローリング
- フローリング張替
- シャッター雨戸
- 網戸
- バルコニー
- ワイドバルコニー
- 庭
物件の特徴
- 内装リフォーム済
- 外装リフォーム済
- 内外装リフォーム済
- 閑静な住宅街
- 通風良好
- 陽当り良好
- 2階建
- 即入居可
物件詳細情報
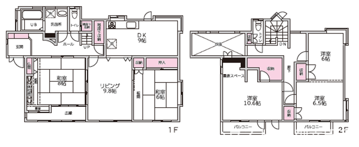
| 価格 | 2,398万円 | 間取り | 5LDK |
|---|---|---|---|
| 物件種別 | 中古一戸建て | ||
| 所在地 | 熊本県合志市豊岡2000-809 | ||
| アクセス |
|
||
| 建物面積 | 165.4㎡ | 駐車場 | あり 普通:1台 |
| 築年月 | 1988年(昭和63年)10月築 | ||
| 建物構造 | 木造 2階建 | 工法 | |
| 主要採光 | バルコニー | ||
| 保証・評価 | |||
| リフォーム | 【水回り】2025年03月 キッチン・浴室・トイレ・洗面・給湯器 【外装】2025年03月 外壁 ・屋根 【内装】2025年03月 壁、天井 ・床 ・全室クロス |
||
| 土地面積 | 232.58㎡(70.35坪) | 接道 | |
| 私道 | セットバック | ||
| 地目 | 宅地 | 地勢 | |
| 権利 | 所有権 |
||
| 都市計画 | 市街化区域 |
用途地域 | 1種低層 |
| 建ぺい/容積率 | 40% / 80% | 土地国土法 | |
| 許可番号 | 建築基準法 | ||
| 法令制限 | |||
| 小学区 | 西合志南小学校 徒歩17分 (約1338m) | 中学区 | 合志中学校 徒歩51分 (約4060m) |
| 現況 | 空 | 引渡 | 即 |
| その他費用 | |||
| 周辺環境 | 合志南小学校 徒歩17分 (約1350m) 西合志南中学校 徒歩28分 (約2210m) ひかりの丘保育園 徒歩11分 (約810m) セブンイレブン合志黒石原店 徒歩11分 (約810m) マックスバリュ みずき台店 徒歩15分 (約1170m) 合志南郵便局 徒歩8分 (約640m) 平瀬内科医院 徒歩15分 (約1130m) 肥後銀行 合志支店 徒歩7分 (約530m) 合志市泉ヶ丘支所 徒歩14分 (約1090m) 元気の森公園 徒歩15分 (約1130m) |
||
| 備考 | ・合志南小学校まで徒歩17分(約1350m) ・合志市立西合志南中学校まで徒歩28分(約2210m) ・ひかりの丘保育園まで徒歩11分(約810m) ・セブンイレブン合志黒石原店まで徒歩11分(約810m) ・マックスバリュ みずき台店まで徒歩15分(約1170m) ・合志南郵便局まで徒歩8分(約640m) ・平瀬内科医院まで徒歩15分(約1130m) ・肥後銀行 合志支店まで徒歩7分(約530m) ・合志市泉ヶ丘支所まで徒歩14分(約1090m) ・元気の森公園まで徒歩15分(約1130m) |
||
| 物件番号 | 4263174 | 取引態様 | 媒介 |
取扱店舗情報
ハウスドゥ 御幸田迎 株式会社Remado 店舗詳細ページへ
| 電話番号 | 096-243-3000 |
|---|---|
| 所在地 | 〒861-4108 熊本県熊本市南区幸田1丁目7-20 |
| 営業時間 | 9:30~18:00 |
| 定休日 | お盆、年末年始 |
| 宅建免許番号 | 熊本県知事(1)第5556号 |
| アクセス | 店舗への地図はこちら |

来店ご予約
熊本県合志市で価格が似ている物件はこちら
- 熊本県
マイページ物件数 - 2,558件
最近見た物件
-
-

-
- 土地
- 628.90万円
-
宇部市大字西岐波
-
JR宇部線丸尾
-
-
-

-
- 新築一戸建て
- 3,780万円
-
岐阜市加納奥平町1丁目
-
JR東海道本線岐阜
-
-
-

-
- 新築一戸建て
- 2,388万円
-
大分市大字猪野
-
JR日豊本線高城
-
熊本県中古一戸建て新着物件
-
-

-
- 中古一戸建て
- 2,398万円
-
熊本市北区飛田1丁目
-
JR鹿児島本線西里駅
-
-
-

-
- 中古一戸建て
- 1,988万円
-
熊本市南区御幸笛田4丁目
-
熊本バス友添バス
-
-
-

-
- 中古一戸建て
- 1,988万円
-
熊本市南区御幸笛田4丁目
-
JR豊肥本線平成駅
-
-
-

-
- 中古一戸建て
- 1,998万円
-
熊本市東区京塚本町
-
熊本市健軍線神水交差点駅
-
-
-

-
- 中古一戸建て
- 1,788万円
-
熊本市南区孫代町
-
九州産交バス砂原
-
-
-

-
- 中古一戸建て
- 2,058万円
-
熊本市東区長嶺南5丁目
-
熊本都市バス小峯バス停
-
-
-

-
- 中古一戸建て
- 1,988万円
-
熊本市南区御幸笛田4丁目
-
熊本バス友添バス停
-
- お近くの店舗を探す
-
おすすめ物件
-
-

-
- 中古一戸建て
- 2,648万円
-
菊池郡菊陽町大字津久礼
-
JR豊肥本線三里木
-
-
-

-
- 中古一戸建て
- 2,598万円
-
合志市須屋
-
熊本電気鉄道新須屋
-
-
-

-
- 中古一戸建て
- 2,350万円
-
熊本市北区楠4丁目
-
JR豊肥本線武蔵塚
-
-
-

-
- 中古一戸建て
- 2,698万円
-
熊本市東区花立5丁目
-
熊本市健軍線健軍町
-
-
-

-
- 中古一戸建て
- 2,630万円
-
合志市御代志
-
熊本電気鉄道御代志
-
-
-

-
- 中古一戸建て
- 1,798万円
-
熊本市東区小山5丁目
-
JR豊肥本線東海学園前
-
-
-

-
- 中古一戸建て
- 4,900万円
-
合志市御代志
-
熊本電気鉄道御代志
-
-
-

-
- 中古一戸建て
- 2,398万円
-
熊本市東区沼山津1丁目
-
熊本市健軍線健軍町
-
-
-

-
- 中古一戸建て
- 2,648万円
-
合志市幾久富
-
永江団地
-
-
-

-
- 中古一戸建て
- 1,680万円
-
熊本市南区城南町藤山
-
JR三角線富合
-























担当エージェント:片山 久瑠実
【月々の支払い例】
2400万円借り入れの場合
月々48,318円(頭金・ボーナス払いなし)
金利0.780%の場合(SBI新生銀行、金利優遇有)
変動金利 返済期間50年
※あくまで一例。条件有。
【周辺環境】
・合志南小学校まで徒歩17分(約1350m)
・合志市立西合志南中学校まで徒歩28分(約2210m)
・ひかりの丘保育園まで徒歩11分(約810m)
・セブンイレブン合志黒石原店まで徒歩11分(約810m)
・マックスバリュ みずき台店まで徒歩15分(約1170m)
・合志南郵便局まで徒歩8分(約640m)
・平瀬内科医院まで徒歩15分(約1130m)
・肥後銀行 合志支店まで徒歩7分(約530m)
・合志市泉ヶ丘支所まで徒歩14分(約1090m)
・元気の森公園まで徒歩15分(約1130m)
いつでもお気軽にご連絡ください☆彡
お問い合わせは『株式会社Remado』まで♪