本日ご案内可能 中古戸建 合志市豊岡6期
掲載情報更新日:2026年04月23日 次回更新予定日:2026年05月07日
- 2,398万円
-
- 借入ご希望金額
万円 - 借入期間
年 - 借入金利
% - 月々のお支払い金額
円
- 借入ご希望金額
※ 月々のお支払例は目安の試算となりますので、実際の金額とは異なる場合がございます。詳しくは店舗までお問合わせください。
- 合志市豊岡
-
熊本電気鉄道『熊本高専前』 徒歩28分 (約2240m)
『すずかけ台北』 徒歩4分 (約320m)
本日ご案内可能 中古戸建 合志市豊岡6期一戸建て | 物件情報
《本日ご案内できます!》☆仲介手数料無料物件(77万円相当がお得!)お気軽にお問合せください♪
■【最安値保証】諸費用で損したくない方必見!熊本県全域の物件、どこよりも安く買えます◎
〈新耐震基準〉震度6~7の大地震でも倒壊しない安心の基準です。地震保険料の割引も。
〈防蟻工事5年保証〉シロアリへの備え付き。「見えない場所の安心」も、セットでお届け。
〈契約不適合責任2年〉入居後の雨漏りなどにも対応◎2年間は売主の保証が付きます。
■熊本で「一番安く、賢く」家を買うなら『ハウスドゥ熊本桜町』へ!
私たちは「物件価格+諸費用」の総額で地域一番の安さに挑戦しています。
1.【最安値保証】 諸費用を最小限に。お見積りのセカンドオピニオンも受付中。
2.【全物件ご紹介】 熊本県内の全物件が対象。窓口ひとつで家探しを完結。
3.【即日内覧ツアー】 1日で効率よく比較!スケジュール調整はすべてお任せください
4.【交渉力に自信】 「もう少し安ければ…」を現実に。売主様への価格交渉も得意です。
「自分たちの条件でいくら安くなる?」「住宅ローンが不安」といったご相談だけでもお気軽にどうぞ!
物件の設備
- 電気
- 上水道
- 公営水道
- 下水道
- 公共下水
- 都市ガス
- 給湯
- コンロ三口
- グリル
- システムキッチン
- バス
- バス1坪以上
- 追焚機能
- 浴室に窓
- トイレ
- トイレ2箇所
- 温水洗浄便座
- 室内洗濯機置場
- 洗髪洗面化粧台
- 洗面所独立
- モニタ付インターホン
- 和室
- 和室8畳以上
- 全居室6畳以上
- 2面採光
- フローリング
- 一部フローリング
- フローリング張替
- シャッター雨戸
- 網戸
- バルコニー
- ワイドバルコニー
- 庭
物件の特徴
- 内装リフォーム済
- 外装リフォーム済
- 内外装リフォーム済
- 閑静な住宅街
- 通風良好
- 陽当り良好
- 2階建
- 即入居可
オープンハウス・イベント情報
開催日時:毎週土日祝 09:00~19:00
開催場所:熊本県合志市
\\現地見学会ご予約受付中// ○平日・土日祝いつでも承ります!! 〇お仕事帰りもOK!早朝・19時以降も対応致します! ◆◇お問い合わせ◇◆ 電話:096-274-4666 または 見学予約フォームにて事前にご予約をお願いします♪ ◆◇見学のご予約◇◆ 事前にご希望日時をお申し…
物件詳細情報
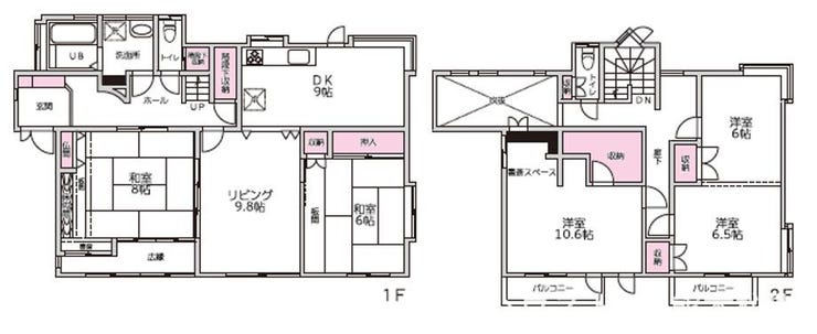
| 価格 | 2,398万円 | 間取り | 5LDK |
|---|---|---|---|
| 物件種別 | 中古一戸建て | ||
| 所在地 | 熊本県合志市豊岡2000-809 | ||
| アクセス |
|
||
| 建物面積 | 165.4㎡ | 駐車場 | あり 普通:1台 |
| 築年月 | 1988年(昭和63年)10月築 | ||
| 建物構造 | 木造 2階建 | 工法 | |
| 主要採光 | バルコニー | ||
| 保証・評価 | |||
| リフォーム | 【水回り】2025年03月 キッチン・浴室・トイレ・洗面・給湯器 【外装】2025年03月 外壁 ・屋根 【内装】2025年03月 壁、天井 ・床 ・全室クロス |
||
| 土地面積 | 232.58㎡(70.35坪) | 接道 | |
| 私道 | セットバック | ||
| 地目 | 宅地 | 地勢 | |
| 権利 | 所有権 |
||
| 都市計画 | 市街化区域 |
用途地域 | 1種低層 |
| 建ぺい/容積率 | 40% / 80% | 土地国土法 | |
| 許可番号 | 建築基準法 | ||
| 法令制限 | |||
| 小学区 | 西合志南小学校 徒歩17分 (約1338m) | 中学区 | 合志中学校 徒歩51分 (約4060m) |
| 現況 | 空 | 引渡 | 即 |
| その他費用 | |||
| 周辺環境 | 合志南小学校 徒歩17分 (約1350m) 西合志南中学校 徒歩28分 (約2210m) ひかりの丘保育園 徒歩11分 (約810m) セブンイレブン合志黒石原店 徒歩11分 (約810m) マックスバリュ みずき台店 徒歩15分 (約1170m) 合志南郵便局 徒歩8分 (約640m) 平瀬内科医院 徒歩15分 (約1130m) 肥後銀行 合志支店 徒歩7分 (約530m) 合志市泉ヶ丘支所 徒歩14分 (約1090m) 元気の森公園 徒歩15分 (約1130m) |
||
| 備考 | ・合志南小学校まで徒歩17分(約1350m) ・合志市立西合志南中学校まで徒歩28分(約2210m) ・ひかりの丘保育園まで徒歩11分(約810m) ・セブンイレブン合志黒石原店まで徒歩11分(約810m) ・マックスバリュ みずき台店まで徒歩15分(約1170m) ・合志南郵便局まで徒歩8分(約640m) ・平瀬内科医院まで徒歩15分(約1130m) ・肥後銀行 合志支店まで徒歩7分(約530m) ・合志市泉ヶ丘支所まで徒歩14分(約1090m) ・元気の森公園まで徒歩15分(約1130m) |
||
| 物件番号 | 4625689 | 取引態様 | 媒介 |
取扱店舗情報
ハウスドゥ 熊本桜町 株式会社Remado 店舗詳細ページへ
| 電話番号 | 096-274-4665 |
|---|---|
| 所在地 | 〒860-0805 熊本県熊本市中央区桜町1-25 |
| 営業時間 | 10:00~18:00 |
| 定休日 | 年末年始, 夏季休暇(お盆) |
| 宅建免許番号 | 熊本県知事(1)第5556号 |
| アクセス | 店舗への地図はこちら |

来店ご予約
熊本県合志市で価格が似ている物件はこちら
- 熊本県
マイページ物件数 - 3,117件
最近見た物件
-
-

-
- 中古一戸建て
- 2,200万円
-
南条郡南越前町南今庄
-
JR北陸本線今庄
-
-
-

-
- 中古一戸建て
- 1,529万円
-
鹿沼市楡木町
-
東武日光線楡木
-
-
-

-
- 土地
- 1,037万円
-
西条市神拝乙
-
JR予讃線伊予西条
-
熊本県中古一戸建て新着物件
-
-

-
- 中古一戸建て
- 380万円
-
八代市敷川内町
-
肥薩おれんじ鉄道日奈久温泉駅
-
-
-

-
- 中古一戸建て
- 2,198万円
-
菊池郡大津町美咲野3丁目
-
JR豊肥本線肥後大津駅
-
-
-

-
- 中古一戸建て
- 1,490万円
-
熊本市北区龍田弓削2丁目
-
JR豊肥本線武蔵塚駅
-
-
-

-
- 中古一戸建て
- 3,490万円
-
菊池郡菊陽町光の森4丁目
-
JR豊肥本線光の森駅
-
-
-

-
- 中古一戸建て
- 1,790万円
-
熊本市東区小山5丁目
-
JR豊肥本線武蔵塚駅
-
-
-

-
- 中古一戸建て
- 2,398万円
-
熊本市北区飛田1丁目
-
JR鹿児島本線西里駅
-
-
-

-
- 中古一戸建て
- 2,198万円
-
合志市須屋
-
熊本電気鉄道三ツ石駅
-
- お近くの店舗を探す
-
おすすめ物件
-
-

-
- 中古一戸建て
- 4,900万円
-
合志市御代志
-
熊本電気鉄道御代志
-
-
-

-
- 中古一戸建て
- 2,498万円
-
熊本市南区薄場1丁目
-
JR鹿児島本線西熊本
-
-
-

-
- 中古一戸建て
- 2,058万円
-
熊本市北区清水岩倉2丁目
-
熊本電気鉄道新須屋
-
-
-

-
- 中古一戸建て
- 1,758万円
-
熊本市南区日吉2丁目
-
JR鹿児島本線西熊本
-
-
-

-
- 中古一戸建て
- 4,480万円
-
宇城市不知火町御領
-
JR鹿児島本線松橋
-
-
-

-
- 中古一戸建て
- 5,500万円
-
熊本市北区楡木2丁目
-
JR豊肥本線武蔵塚
-
-
-

-
- 中古一戸建て
- 1,880万円
-
熊本市西区新土河原1丁目
-
JR鹿児島本線西熊本
-
-
-

-
- 中古一戸建て
- 2,350万円
-
熊本市北区楠4丁目
-
JR豊肥本線武蔵塚
-
-
-

-
- 中古一戸建て
- 1,130万円
-
合志市須屋
-
熊本電気鉄道須屋
-
-
-

-
- 中古一戸建て
- 1,250万円
-
合志市須屋
-
熊本電気鉄道三ツ石
-























担当エージェント:林原 綾乃
【月々の支払い例】
2400万円借り入れの場合
月々48,318円(頭金・ボーナス払いなし)
金利0.780%の場合(SBI新生銀行、金利優遇有)
変動金利 返済期間50年
※あくまで一例。条件有。
【周辺環境】
・合志南小学校まで徒歩17分(約1350m)
・合志市立西合志南中学校まで徒歩28分(約2210m)
・ひかりの丘保育園まで徒歩11分(約810m)
・セブンイレブン合志黒石原店まで徒歩11分(約810m)
・マックスバリュ みずき台店まで徒歩15分(約1170m)
・合志南郵便局まで徒歩8分(約640m)
・平瀬内科医院まで徒歩15分(約1130m)
・肥後銀行 合志支店まで徒歩7分(約530m)
・合志市泉ヶ丘支所まで徒歩14分(約1090m)
・元気の森公園まで徒歩15分(約1130m)
お気軽にご相談ください!
お問い合わせは『ハウスドゥ熊本桜町』まで♪