川崎市多摩区宿河原1丁目の中古戸建
掲載情報更新日:2025年10月23日 次回更新予定日:2025年11月06日
- 6,390万円
- 
                    - 借入ご希望金額
 万円
-  借入期間
 年
-  借入金利
 %
-  月々のお支払い金額
 円
 
- 借入ご希望金額
※ 月々のお支払例は目安の試算となりますので、実際の金額とは異なる場合がございます。詳しくは店舗までお問合わせください。
- 川崎市多摩区宿河原1丁目
- 
                    JR南武線『登戸』 徒歩10分 (約800m)
 小田急小田原線『登戸』 徒歩10分 (約800m)
 JR南武線『宿河原』 徒歩10分 (約800m)
 
川崎市多摩区宿河原1丁目一戸建て | 物件情報
             
        
            ◆2駅2路線利用可
◆オール電化住宅
◆ハイルーフ可能な駐車場有
◆オープンタイプのカウンターキッチン
◆水回りに窓有り        
物件の設備
- オール電化
- 公営水道
- 公共下水
- IHクッキングヒータ
- コンロ三口
- システムキッチン
- オープンキッチン
- 浴室乾燥機
- 浴室に窓
- トイレ2箇所
- 室内洗濯機置場
- カードキー
- モニタ付インターホン
- LDK18畳以上
- ハイルーフ駐車可能
物件の特徴
- 南向
- 2沿線利用可
- 総合病院徒歩10分以内
- 緑豊かな住宅地
- 閑静な住宅街
- 都市近郊
- 通風良好
- 3階建以上
物件詳細情報
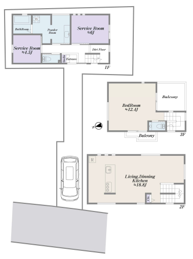
| 価格 | 6,390万円 | 間取り | 1LDK+S | 
|---|---|---|---|
| 物件種別 | 中古一戸建て | ||
| 所在地 | 神奈川県川崎市多摩区宿河原1丁目 | ||
| アクセス | 
 | ||
| 建物面積 | 108.47㎡ | 駐車場 | あり 普通:1台 | 
| 築年月 | 2020年(令和2年)05月築 | ||
| 建物構造 | 木造 3階建 | 工法 | |
| 主要採光 | 南向 | バルコニー | |
| 保証・評価 | |||
| リフォーム | |||
| 土地面積 | 112.9㎡(34.15坪) | 接道 | |
| 私道 | セットバック | ||
| 地目 | 宅地 | 地勢 | |
| 権利 | 所有権 | ||
| 都市計画 | 市街化区域 | 用途地域 | 1種中高 | 
| 建ぺい/容積率 | 60% / 200% | 土地国土法 | |
| 許可番号 | 建築基準法 | ||
| 法令制限 | 高度地区・準防火地域 | ||
| 小学区 | 宿河原小学校 徒歩9分 (約700m) | 中学区 | 稲田中学校 徒歩5分 (約350m) | 
| 現況 | 居住中 | 引渡 | 期日指定:2026年03月01日以降 | 
| その他費用 | |||
| 周辺環境 | 川崎市立宿川原小学校 徒歩9分 (約720m) 川崎市立稲田中学校 徒歩7分 (約530m) 川崎市立多摩病院 徒歩5分 (約340m) ライフ宿河原店 徒歩6分 (約420m) ファミリーマート多摩病院前店 徒歩4分 (約310m) そらまめ保育園(分園) 徒歩4分 (約310m) 登戸駅 徒歩8分 (約630m) | ||
| 備考 | |||
| 物件番号 | 4271999 | 取引態様 | 媒介 | 
取扱店舗情報
ハウスドゥ 向ヶ丘遊園 株式会社パワーラッシュ 店舗詳細ページへ
| 電話番号 | 044-299-8081 | 
|---|---|
| 所在地 | 〒214-0014 神奈川県川崎市多摩区登戸2777-2 N100ビル201号室 | 
| 営業時間 | 9:00~18:00 | 
| 定休日 | 水曜日、年末年始 | 
| 宅建免許番号 | 神奈川県知事(1)第32601号 | 
| アクセス | 店舗への地図はこちら | 

来店ご予約
- 神奈川県
 マイページ物件数
- 3,191件
神奈川県中古一戸建て新着物件
- 
				- 
							                             
- 
						- 中古一戸建て
- 3,799万円
- 
								
									川崎市多摩区中野島5丁目 
- 
                                JR南武線中野島駅 
 
 
- 
							                            
- 
				- 
							                             
- 
						- 収益
- 3,600万円
- 
								
									相模原市中央区上溝1丁目 
- 
                                JR相模線上溝駅 
 
 
- 
							                            
- 
				- 
							                             
- 
						- 収益
- 3,780万円
- 
								
									相模原市中央区上溝1丁目 
- 
                                JR相模線上溝駅 
 
 
- 
							                            
- 
				- 
							                             
- 
						- 中古一戸建て
- 4,280万円
- 
								
									川崎市麻生区細山7丁目 
- 
                                小田急小田原線読売ランド前駅 
 
 
- 
							                            
- 
				- 
							                             
- 
						- 中古一戸建て
- 3,499万円
- 
								
									川崎市多摩区長尾7丁目 
- 
                                JR南武線久地駅 
 
 
- 
							                            
- 
				- 
							                             
- 
						- 中古一戸建て
- 2,299万円
- 
								
									平塚市徳延 
- 
                                JR東海道本線平塚駅 
 
 
- 
							                            
- 
				- 
							                             
- 
						- 中古一戸建て
- 2,280万円
- 
								
									平塚市横内 
- 
                                JR東海道本線平塚駅 
 
 
- 
							                            
- お近くの店舗を探す
- 
            
            
            
 
     
                         
                         
                         
                    







 
                
 
                 
             
                    






 
						 
						