熊本市北区植木町滴水の中古戸建
掲載情報更新日:2025年10月31日 次回更新予定日:2025年11月14日
- 1,698万円
-
- 借入ご希望金額
万円 - 借入期間
年 - 借入金利
% - 月々のお支払い金額
円
- 借入ご希望金額
※ 月々のお支払例は目安の試算となりますので、実際の金額とは異なる場合がございます。詳しくは店舗までお問合わせください。
- 熊本市北区植木町滴水
-
JR鹿児島本線『植木』 車10分(約3.7km)
JR鹿児島本線『田原坂』 車8分(約5.3km)
JR鹿児島本線『西里』 車14分(約7.3km)
『滴水』 徒歩3分 (約240m)
熊本市北区植木町滴水一戸建て | 物件情報
物件の設備
- 電気
- 公営水道
- 公共下水
- プロパンガス
- 給湯
- コンロ三口
- グリル
- カウンターキッチン
- システムキッチン
- ユニットバス
- バス1坪以上
- 追焚機能
- 温水洗浄便座
- 室内洗濯機置場
- 洗髪洗面化粧台
- ダウンライト
- LDK15畳以上
- 複層ガラス
- フローリング
- フローリング張替
- クローゼット
- クローゼット2箇所
物件の特徴
- 内装リフォーム済
- 外装リフォーム済
- 内外装リフォーム済
- 2階建
物件詳細情報
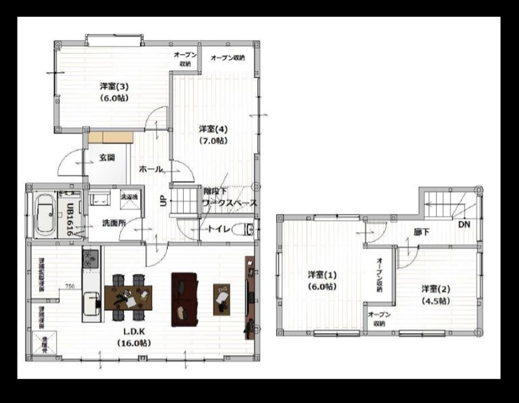
| 価格 | 1,698万円 | 間取り | 4LDK |
|---|---|---|---|
| 物件種別 | 中古一戸建て | ||
| 所在地 | 熊本県熊本市北区植木町滴水 | ||
| アクセス |
|
||
| 建物面積 | 100.17㎡ | 駐車場 | あり 普通:2台 |
| 築年月 | 1985年(昭和60年)01月築 | ||
| 建物構造 | 木造 2階建 | 工法 | |
| 主要採光 | バルコニー | ||
| 保証・評価 | |||
| リフォーム | 【水回り】2025年02月 キッチン・浴室・トイレ 水回り全て新品交換 【外装】2025年02月 外壁 ・屋根 外壁塗装工事、間取り変更 【内装】2025年02月 壁、天井 ・床 ・全室クロス |
||
| 土地面積 | 197.67㎡(59.79坪) | 接道 | |
| 私道 | セットバック | ||
| 地目 | 宅地 | 地勢 | |
| 権利 | 所有権 |
||
| 都市計画 | 用途地域 | 指定無 | |
| 建ぺい/容積率 | 40% / 80% | 土地国土法 | |
| 許可番号 | 建築基準法 | ||
| 法令制限 | |||
| 小学区 | 桜井小学校 徒歩16分 (約1241m) | 中学区 | 鹿南中学校 徒歩10分 (約771m) |
| 現況 | 空 | 引渡 | 相談 |
| その他費用 | |||
| 周辺環境 | 熊本市立鹿南中学校 徒歩10分 (約760m) 熊本市立桜井小学校 徒歩17分 (約1330m) 三河屋スーパー 食品部 徒歩16分 (約1240m) 業務スーパー 植木店 徒歩15分 (約1180m) セブンイレブン 植木松原店 徒歩18分 (約1440m) |
||
| 備考 | |||
| 物件番号 | 4280494 | 取引態様 | 媒介 |
取扱店舗情報
| 電話番号 | 096-237-6412 |
|---|---|
| 所在地 | 〒862-0918 熊本県熊本市東区花立5丁目1-6 幸ビル1階西1号室 |
| 営業時間 | 10:00~18:00 |
| 定休日 | 水曜日 |
| 宅建免許番号 | 熊本県知事(1)第5757号 |
| アクセス | 店舗への地図はこちら |

来店ご予約
熊本県熊本市北区で価格が似ている物件はこちら
- 熊本県
マイページ物件数 - 3,042件
最近見た物件
熊本県中古一戸建て新着物件
-
-

-
- 中古一戸建て
- 2,500万円
-
熊本市中央区出水3丁目
-
熊本市健軍線市立体育館前駅
-
-
-

-
- 中古一戸建て
- 2,058万円
-
熊本市東区長嶺南5丁目
-
熊本市健軍線健軍町駅
-
-
-

-
- 中古一戸建て
- 1,788万円
-
熊本市南区孫代町
-
JR鹿児島本線西熊本駅
-
-
-

-
- 中古一戸建て
- 2,598万円
-
熊本市北区楠8丁目
-
JR豊肥本線武蔵塚駅
-
-
-

-
- 中古一戸建て
- 1,998万円
-
宇城市松橋町西下郷
-
JR鹿児島本線松橋駅
-
-
-

-
- 中古一戸建て
- 1,998万円
-
熊本市北区山室2丁目
-
熊本電気鉄道八景水谷駅
-
-
-

-
- 中古一戸建て
- 1,398万円
-
上益城郡御船町大字高木
-
熊本市健軍線健軍町駅
-
- お近くの店舗を探す
-
おすすめ物件
-
-

-
- 中古一戸建て
- 2,398万円
-
合志市須屋
-
熊本電気鉄道三ツ石
-
-
-

-
- 中古一戸建て
- 2,898万円
-
熊本市北区鶴羽田2丁目
-
熊本電気鉄道新須屋
-
-
-

-
- 中古一戸建て
- 2,698万円
-
菊池郡菊陽町大字津久礼
-
JR豊肥本線三里木
-
-
-

-
- 中古一戸建て
- 2,380万円
-
合志市豊岡
-
熊本電気鉄道御代志
-
-
-

-
- 中古一戸建て
- 1,780万円
-
熊本市南区城南町藤山
-
JR三角線富合
-
-
-

-
- 中古一戸建て
- 1,090万円
-
山鹿市小群
-
平小城バス停
-
-
-

-
- 中古一戸建て
- 3,400万円
-
熊本市北区武蔵ケ丘7丁目
-
JR豊肥本線武蔵塚
-
-
-

-
- 中古一戸建て
- 2,850万円
-
合志市幾久富
-
永江団地
-
-
-

-
- 中古一戸建て
- 2,480万円
-
熊本市北区龍田8丁目
-
JR豊肥本線竜田口
-
-
-

-
- 中古一戸建て
- 1,988万円
-
合志市須屋
-
熊本電気鉄道三ツ石
-

























