合志市豊岡の中古戸建
掲載情報更新日:2025年10月17日 次回更新予定日:2025年10月31日
- 2,398万円
-
- 借入ご希望金額
万円 - 借入期間
年 - 借入金利
% - 月々のお支払い金額
円
- 借入ご希望金額
※ 月々のお支払例は目安の試算となりますので、実際の金額とは異なる場合がございます。詳しくは店舗までお問合わせください。
- 合志市豊岡
-
熊本電気鉄道『黒石』 徒歩26分 (約2080m)
熊本電気鉄道『熊本高専前』 徒歩29分 (約2320m)
熊本電気鉄道『再春医療センター前』 徒歩28分 (約2240m)
合志市豊岡一戸建て | 物件情報
物件の設備
- 電気
- 上水道
- 公営水道
- 下水道
- 公共下水
- 側溝
- 都市ガス
- コンロ三口
- グリル
- システムキッチン
- オートバス
- 追焚機能
- 浴室暖房
- 浴室乾燥機
- トイレ2箇所
- 温水洗浄便座
- 室内洗濯機置場
- ダブルロックキー
- モニタ付インターホン
- 火災警報器/報知機
- クローゼット
- ウォークインクローゼット
- 床下収納
物件の特徴
- 緑豊かな住宅地
- スーパーが近い
- 閑静な住宅街
- 通風良好
- 陽当り良好
- 2階建
- 即入居可
オープンハウス・イベント情報
物件詳細情報
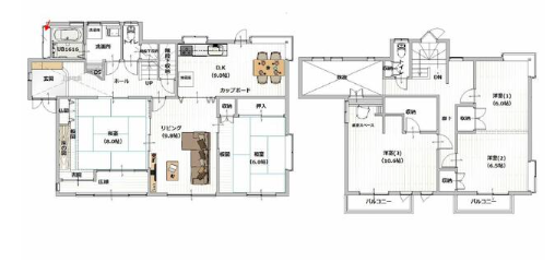
| 価格 | 2,398万円 | 間取り | 5LDK |
|---|---|---|---|
| 物件種別 | 中古一戸建て | ||
| 所在地 | 熊本県合志市豊岡 | ||
| アクセス |
|
||
| 建物面積 | 165.4㎡ | 駐車場 | あり 普通:2台 |
| 築年月 | 1988年(昭和63年)10月築 | ||
| 建物構造 | 木造 2階建 | 工法 | |
| 主要採光 | バルコニー | ||
| 保証・評価 | |||
| リフォーム | |||
| 土地面積 | 232.58㎡(70.35坪) | 接道 | |
| 私道 | セットバック | ||
| 地目 | 宅地 | 地勢 | |
| 権利 | 所有権 |
||
| 都市計画 | 市街化区域 |
用途地域 | 1種低層 |
| 建ぺい/容積率 | 40% / 80% | 土地国土法 | |
| 許可番号 | 建築基準法 | ||
| 法令制限 | |||
| 小学区 | 合志南小学校 徒歩18分 (約1377m) | 中学区 | 合志中学校 徒歩51分 (約4036m) |
| 現況 | 空 | 引渡 | 即 |
| その他費用 | |||
| 周辺環境 | 肥後銀行合志支店 徒歩8分 (約640m) マルキョウ合志店 徒歩13分 (約1010m) ドラッグストアコスモス武蔵野台店 徒歩14分 (約1060m) 合志南小学校 徒歩14分 (約1050m) セブンイレブン合志店 徒歩17分 (約1300m) 光の森武蔵ヶ丘保育園 徒歩25分 (約1930m) |
||
| 備考 | |||
| 物件番号 | 4281034 | 取引態様 | 媒介 |
取扱店舗情報
ハウスドゥ くすのき二丁目 株式会社熊本都市JOHO 店舗詳細ページへ
| 電話番号 | 096-245-7674 |
|---|---|
| 所在地 | 〒861-8003 熊本県熊本市北区楠2丁目1-40 |
| 営業時間 | 9:00~18:00 |
| 定休日 | 水曜日、年末年始 |
| 宅建免許番号 | 熊本県知事(1)第5756号 |
| アクセス | 店舗への地図はこちら |

来店ご予約
熊本県合志市で価格が似ている物件はこちら
- 熊本県
マイページ物件数 - 3,019件
熊本県中古一戸建て新着物件
-
-

-
- 中古一戸建て
- 1,780万円
-
荒尾市東屋形1丁目
-
JR鹿児島本線荒尾駅
-
-
-

-
- 中古一戸建て
- 1,598万円
-
熊本市中央区八王寺町
-
JR豊肥本線南熊本駅
-
-
-

-
- 中古一戸建て
- 2,150万円
-
菊池郡大津町大字吹田
-
JR豊肥本線瀬田駅
-
-
-

-
- 中古一戸建て
- 1,999万円
-
熊本市東区下南部2丁目
-
JR豊肥本線竜田口駅
-
-
-

-
- 中古一戸建て
- 1,590万円
-
熊本市北区清水亀井町
-
熊本電気鉄道亀井駅
-
-
-

-
- 中古一戸建て
- 4,980万円
-
宇城市不知火町御領
-
JR鹿児島本線松橋駅
-
-
-

-
- 中古一戸建て
- 2,199万円
-
熊本市東区上南部3丁目
-
JR豊肥本線武蔵塚駅
-
- お近くの店舗を探す
-
おすすめ物件
-
-

-
- 中古一戸建て
- 2,058万円
-
熊本市北区清水岩倉2丁目
-
熊本電気鉄道新須屋
-
-
-

-
- 中古一戸建て
- 2,598万円
-
合志市須屋
-
熊本電気鉄道新須屋
-
-
-

-
- 中古一戸建て
- 2,350万円
-
熊本市北区楠4丁目
-
JR豊肥本線武蔵塚
-
-
-

-
- 中古一戸建て
- 3,850万円
-
合志市竹迫
-
JR豊肥本線三里木
-
-
-

-
- 中古一戸建て
- 3,400万円
-
熊本市北区龍田5丁目
-
JR豊肥本線武蔵塚
-
-
-

-
- 中古一戸建て
- 1,130万円
-
合志市須屋
-
熊本電気鉄道須屋
-
-
-

-
- 中古一戸建て
- 3,490万円
-
熊本市東区長嶺東6丁目
-
JR豊肥本線武蔵塚
-
-
-

-
- 中古一戸建て
- 2,698万円
-
熊本市東区花立5丁目
-
熊本市健軍線健軍町
-
-
-

-
- 中古一戸建て
- 1,480万円
-
八代市古閑上町
-
JR九州新幹線新八代
-
-
-

-
- 中古一戸建て
- 3,400万円
-
熊本市北区武蔵ケ丘7丁目
-
JR豊肥本線武蔵塚
-





















