永吉1丁目 中古戸建 7LDK
掲載情報更新日:2025年12月02日 次回更新予定日:2025年12月16日
- 3,980万円
-
- 借入ご希望金額
万円 - 借入期間
年 - 借入金利
% - 月々のお支払い金額
円
- 借入ご希望金額
※ 月々のお支払例は目安の試算となりますので、実際の金額とは異なる場合がございます。詳しくは店舗までお問合わせください。
- 鹿児島市永吉1丁目
-
市電唐湊線『加治屋町』 徒歩25分 (約1950m)
『西原商会アリーナ』 徒歩4分 (約320m)
永吉1丁目 中古戸建 7LDK一戸建て | 物件情報
■原良小、城西中校区!■庭付
■中古戸建をもっと快適に。IOTでつながる暮らし、当社にて御紹介強化中■
※当社のみのサービスです。詳しくはお問合せ下さい。
物件の設備
- 浴室に窓
- トイレ2箇所
- 温水洗浄便座
- 全居室収納
- 庭
物件の特徴
- 閑静な住宅街
- 2階建
物件詳細情報
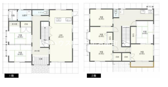
| 価格 | 3,980万円 | 間取り | 7LDK |
|---|---|---|---|
| 物件種別 | 中古一戸建て | ||
| 所在地 | 鹿児島県鹿児島市永吉1丁目27-7 | ||
| アクセス |
|
||
| 建物面積 | 157.25㎡ | 駐車場 | あり |
| 築年月 | 1998年(平成10年)10月築 | ||
| 建物構造 | 木造 2階建 | 工法 | |
| 主要採光 | バルコニー | ||
| 保証・評価 | |||
| リフォーム | |||
| 土地面積 | 公143.4㎡(43.37坪) | 接道 | 西側(公道)幅 約4.0m 間口 約11.00m |
| 私道 | セットバック | ||
| 地目 | 宅地 | 地勢 | 平坦 |
| 権利 | 所有権 |
||
| 都市計画 | 市街化区域 |
用途地域 | 2種中高 |
| 建ぺい/容積率 | 60% / 200% | 土地国土法 | |
| 許可番号 | 建築基準法 | ||
| 法令制限 | |||
| 小学区 | 原良小学校 徒歩6分 (約480m) | 中学区 | 城西中学校 徒歩9分 (約710m) |
| 現況 | 空 | 引渡 | 相談 |
| その他費用 | |||
| 周辺環境 | 鹿児島市立原良小学校 徒歩6分 (約480m) 鹿児島市立城西中学校 徒歩9分 (約710m) |
||
| 備考 | |||
| 物件番号 | 4292088 | 取引態様 | 媒介 |
取扱店舗情報
ハウスドゥ 加治屋町 株式会社ハッピー不動産 店舗詳細ページへ
| 電話番号 | 099-801-3208 |
|---|---|
| 所在地 | 〒892-0846 鹿児島県鹿児島市加治屋町11-1大洋ビル1F |
| 営業時間 | 9:00~18:00 |
| 定休日 | 水曜日、年末年始 |
| 宅建免許番号 | 鹿児島県知事(1)第6595号 |
| アクセス | 店舗への地図はこちら |

来店ご予約
鹿児島県鹿児島市で価格が似ている物件はこちら
- 鹿児島県
マイページ物件数 - 5,730件
最近見た物件
-
-

-
- 中古一戸建て
- 5,200万円
-
豊田市十塚町5丁目
-
名鉄三河線豊田市
-
鹿児島県中古一戸建て新着物件
-
-

-
- 中古一戸建て
- 480万円
-
鹿児島市坂之上1丁目
-
JR指宿枕崎線谷山駅
-
-
-

-
- 中古一戸建て
- 1,890万円
-
霧島市隼人町松永
-
JR肥薩線日当山駅
-
-
-

-
- 中古一戸建て
- 2,850万円
-
鹿児島市池之上町
-
南国玉龍高校前バス停
-
-
-

-
- 中古一戸建て
- 1,480万円
-
鹿児島市常盤1丁目
-
武岡小前
-
-
-

-
- 中古一戸建て
- 1,180万円
-
鹿児島市光山2丁目
-
JR指宿枕崎線坂之上駅
-
-
-

-
- 中古一戸建て
- 750万円
-
鹿児島市田上台1丁目
-
鹿交紫原七丁目
-
-
-

-
- 中古一戸建て
- 1,000万円
-
霧島市隼人町嘉例川
-
JR肥薩線表木山駅
-
- お近くの店舗を探す
-
おすすめ物件
-
-

-
- 中古一戸建て
- 2,680万円
-
鹿児島市坂之上7丁目
-
JR指宿枕崎線坂之上
-
-
-

-
- 中古一戸建て
- 2,499万円
-
鹿児島市玉里団地1丁目
-
市営玉里団地一丁目西バス停
-
-
-

-
- 中古一戸建て
- 2,580万円
-
鹿児島市下伊敷3丁目
-
市営 さつま団地入口バス停
-
-
-

-
- 中古一戸建て
- 2,880万円
-
鹿児島市星ヶ峯3丁目
-
JR鹿児島本線広木
-
-
-

-
- 中古一戸建て
- 1,880万円
-
鹿児島市田上台1丁目
-
JR指宿枕崎線郡元
-
-
-

-
- 中古一戸建て
- 3,880万円
-
霧島市隼人町神宮2丁目
-
JR日豊本線隼人
-
-
-

-
- 中古一戸建て
- 1,960万円
-
鹿児島市石谷町
-
JR鹿児島本線上伊集院
-
-
-

-
- 中古一戸建て
- 3,780万円
-
鹿児島市坂元町
-
南国商業高校入口バス停
-
-
-

-
- 中古一戸建て
- 4,180万円
-
鹿児島市紫原3丁目
-
鹿交日之出町西
-
-
-

-
- 中古一戸建て
- 2,880万円
-
鹿児島市小松原1丁目
-
市電谷山線笹貫
-
















担当エージェント:後迫 隆伸
鹿児島市を拠点に、豊富な情報量を活かした物件提案を得意としています。地域に根差したネットワークで、お客様一人ひとりの理想に合わせた新築戸建てやリノベーション物件をご紹介。購入だけでなく、住まい選び全般を全力でサポートします。
住宅ローンについても、ネット銀行の低金利プランから地元の地銀まで幅広い選択肢を揃え、審査が不安な方には事前準備から審査通過への対策まで、細やかにお手伝い。さらに、団体信用生命保険(団信)の審査にも対応し、健康状態に不安のある方への適切なアドバイスを行います。お客様の「安心」と「満足」を第一に、住まいの購入を全力でサポートします。まずはお気軽にご相談ください!