岡山市東区瀬戸町宗堂の中古戸建
掲載情報更新日:2026年03月08日 次回更新予定日:2026年03月22日
- 780万円
-
- 借入ご希望金額
万円 - 借入期間
年 - 借入金利
% - 月々のお支払い金額
円
- 借入ご希望金額
※ 月々のお支払例は目安の試算となりますので、実際の金額とは異なる場合がございます。詳しくは店舗までお問合わせください。
- 岡山市東区瀬戸町宗堂
-
JR山陽本線『万富』 徒歩20分 (約1600m)
岡山市東区瀬戸町宗堂一戸建て | 物件情報
物件の設備
- 電気
- 上水道
- 汲取
- プロパンガス
- システムキッチン
- バス1坪以上
- 洗髪洗面化粧台
- 照明器具
- 3面採光
- クローゼット
- シューズインクローク
- 庭
- 庭10坪以上
- 縁側
物件の特徴
- 南向
- 山が見える
- 眺望良好
- 通風良好
- 陽当り良好
- 前面棟無
- 角地
物件詳細情報
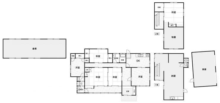
| 価格 | 780万円 | 間取り | 5DK |
|---|---|---|---|
| 物件種別 | 中古一戸建て | ||
| 所在地 | 岡山県岡山市東区瀬戸町宗堂 | ||
| アクセス |
|
||
| 建物面積 | 公227.51㎡ | 駐車場 | あり 普通:3台 |
| 築年月 | 1977年(昭和52年)08月築 | ||
| 建物構造 | 木造 1階建 | 工法 | |
| 主要採光 | 南向 | バルコニー | |
| 保証・評価 | |||
| リフォーム | |||
| 土地面積 | 公1076.67㎡(325.69坪) | 接道 | |
| 私道 | セットバック | ||
| 地目 | 宅地 | 地勢 | |
| 権利 | 所有権 |
||
| 都市計画 | 調整区域 調整区域につき建築許可要 |
用途地域 | |
| 建ぺい/容積率 | 60% / 100% | 土地国土法 | |
| 許可番号 | 建築基準法 | ||
| 法令制限 | |||
| 小学区 | 中学区 | ||
| 現況 | 空 | 引渡 | 相談 |
| その他費用 | |||
| 備考 | |||
| 物件番号 | 4294832 | 取引態様 | 媒介 |
取扱店舗情報
| 電話番号 | 086-956-5010 |
|---|---|
| 所在地 | 〒709-0811 岡山県赤磐市高屋405-7 |
| 営業時間 | 10:00~18:00 |
| 定休日 | 火曜日(予約がある場合のみ営業)、水曜日 |
| 宅建免許番号 | 岡山県知事(1)第6200号 |
| アクセス | 店舗への地図はこちら |

来店ご予約
岡山県岡山市東区で価格が似ている物件はこちら
- 岡山県
マイページ物件数 - 4,441件
最近見た物件
-
-

-
- 土地
- 3,800万円
-
横手市雄物川町沼館字高畑
-
JR奥羽本線横手
-
岡山県中古一戸建て新着物件
- お近くの店舗を探す
-
おすすめ物件
-
-

-
- 中古一戸建て
- 3,500万円
-
倉敷市玉島乙島
-
JR山陽本線新倉敷
-
-
-

-
- 中古一戸建て
- 2,850万円
-
倉敷市広江7丁目
-
JR本四備讃線木見
-
-
-

-
- 中古一戸建て
- 590万円
-
総社市秦
-
JR伯備線総社
-
-
-

-
- 中古一戸建て
- 2,100万円
-
岡山市北区宿
-
JR津山線備前原
-
-
-

-
- 中古一戸建て
- 1,350万円
-
総社市宿
-
JR吉備線備中高松
-
-
-

-
- 中古一戸建て
- 3,050万円
-
倉敷市二日市
-
JR山陽本線倉敷
-
-
-

-
- 中古一戸建て
- 2,500万円
-
倉敷市粒浦
-
水島臨海鉄道浦田
-
-
-

-
- 中古一戸建て
- 1,899万円
-
赤磐市桜が丘東4丁目
-
JR山陽本線万富
-
-
-

-
- 中古一戸建て
- 1,980万円
-
倉敷市児島通生
-
JR本四備讃線児島
-
-
-

-
- 中古一戸建て
- 4,980万円
-
総社市中央1丁目
-
JR伯備線総社
-






















