射水市庄西町1丁目の中古戸建
掲載情報更新日:2025年10月24日 次回更新予定日:2025年11月07日
- 140万円
- 
                    - 借入ご希望金額
 万円
-  借入期間
 年
-  借入金利
 %
-  月々のお支払い金額
 円
 
- 借入ご希望金額
※ 月々のお支払例は目安の試算となりますので、実際の金額とは異なる場合がございます。詳しくは店舗までお問合わせください。
- 射水市庄西町1丁目
- 
                    万葉線『六渡寺』 徒歩7分 (約500m)
 
射水市庄西町1丁目一戸建て | 物件情報
閑静な庄西町に蔵付物件の登場です!!
             
        
キッチン・洗面台・外壁(一部)リフォーム済
物件の設備
- 電気
- 上水道
- 公営水道
- 下水道
- 公共下水
- 給湯
- バス
- トイレ
- 照明器具
- 和室
物件の特徴
- 前道6m以上
- 南側道路面す
- 2階建
- 即入居可
物件詳細情報
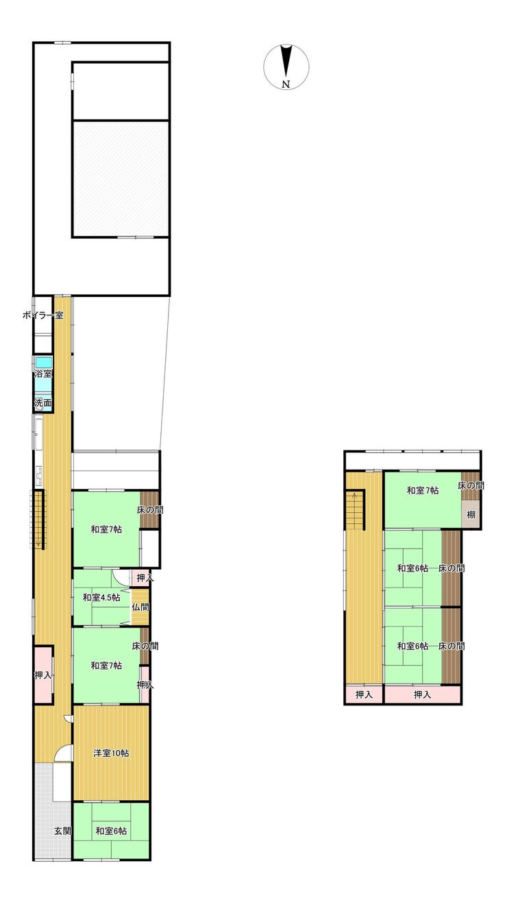
| 価格 | 140万円 | 間取り | 8K | 
|---|---|---|---|
| 物件種別 | 中古一戸建て | ||
| 所在地 | 富山県射水市庄西町1丁目 | ||
| アクセス | 
 | ||
| 建物面積 | 公320.9㎡ | 駐車場 | あり 普通:1台 | 
| 築年月 | 1951年(昭和26年)01月築 | ||
| 建物構造 | 木造 2階建 | 工法 | |
| 主要採光 | バルコニー | ||
| 保証・評価 | |||
| リフォーム | |||
| 土地面積 | 公396.69㎡(119.99坪) | 接道 | 北側(公道)幅 約6.3m 間口 約5.40m 南側(公道)幅 約3.7m 間口 約5.40m 東側(公道)幅 約1.8m 間口 約48.00m | 
| 私道 | セットバック | ||
| 地目 | 宅地 | 地勢 | |
| 権利 | 所有権 | ||
| 都市計画 | 市街化区域 | 用途地域 | 1種住居 | 
| 建ぺい/容積率 | 60% / 200% | 土地国土法 | |
| 許可番号 | 建築基準法 | ||
| 法令制限 | |||
| 小学区 | 新湊放生津小学校 徒歩44分 (約3520m) | 中学区 | 新湊中学校 徒歩23分 (約1840m) | 
| 現況 | 空 | 引渡 | 即 | 
| その他費用 | |||
| 備考 | 令和7年度分固定資産税は約18,000円 | ||
| 物件番号 | 4296526 | 取引態様 | 専属専任 | 
取扱店舗情報
| 電話番号 | 0766-54-0402 | 
|---|---|
| 所在地 | 〒934-0004 富山県射水市西新湊12-8 | 
| 営業時間 | 9:30~18:00 | 
| 定休日 | 水曜日、祝日 | 
| 宅建免許番号 | 富山県知事(1)第3229号 | 
| アクセス | 店舗への地図はこちら | 

来店ご予約
富山県射水市で価格が似ている物件はこちら
- 富山県
 マイページ物件数
- 871件
富山県中古一戸建て新着物件
- お近くの店舗を探す
- 
            
            
            
おすすめ物件
- 
				- 
														 
- 
						- 中古一戸建て
- 435万円
- 
								
									射水市庄西町1丁目 
- 
								万葉線六渡寺 
 
 
- 
														
- 
				- 
														 
- 
						- 中古一戸建て
- 1,980万円
- 
								
									富山市粟島町3丁目 
- 
								富山地鉄富山港線粟島(大阪屋前) 
 
 
- 
														
- 
				- 
														 
- 
						- 中古一戸建て
- 50万円
- 
								
									射水市本町3丁目 
- 
								万葉線第一イン新湊クロスベ 
 
 
- 
														
- 
				- 
														 
- 
						- 中古一戸建て
- 2,100万円
- 
								
									富山市奥井町 
- 
								富山地鉄富山港線奥田中学校前 
 
 
- 
														
- 
				- 
														 
- 
						- 中古一戸建て
- 1,990万円
- 
								
									富山市婦中町広田 
- 
								婦中コミュニティバス田村たまご店前 
 
 
- 
														
- 
				- 
														 
- 
						- 中古一戸建て
- 1,398万円
- 
								
									高岡市野村 
- 
								JR氷見線越中中川 
 
 
- 
														
- 
				- 
														 
- 
						- 中古一戸建て
- 180万円
- 
								
									射水市中央町 
- 
								万葉線新町口 
 
 
- 
														
- 
				- 
														 
- 
						- 中古一戸建て
- 50万円
- 
								
									射水市港町 
- 
								万葉線第一イン新湊クロスベ 
 
 
- 
														
- 
				- 
														 
- 
						- 中古一戸建て
- 1,500万円
- 
								
									射水市倉垣小杉 
- 
								あいの風とやま鉄道呉羽 
 
 
- 
														
- 
				- 
														 
- 
						- 中古一戸建て
- 120万円
- 
								
									射水市港町 
- 
								万葉線第一イン新湊クロスベ 
 
 
- 
														
 
     
                         
                         
                         
                    







 
                









 
                 
             
                 
                    


 
                                             
                                             
                                             
                                     
                                            





 
						 
						
担当エージェント:香坂 さゆり
広い庭と蔵をどう活かすか!?是非一度内覧にいらしてください。