名古屋市守山区大字上志段味字竹の腰の中古戸建
掲載情報更新日:2026年01月19日 次回更新予定日:2026年02月02日
- 3,520万円
-
- 借入ご希望金額
万円 - 借入期間
年 - 借入金利
% - 月々のお支払い金額
円
- 借入ご希望金額
※ 月々のお支払例は目安の試算となりますので、実際の金額とは異なる場合がございます。詳しくは店舗までお問合わせください。
- 名古屋市守山区大字上志段味字竹の腰
-
JR中央本線『高蔵寺』 徒歩22分 (約1710m)
JR中央本線『神領』 徒歩35分 (約2800m)
愛知環状鉄道『中水野』 車15分(約4.8km)
ゆとりーとライン『上志段味』 徒歩7分 (約560m)
名古屋市守山区大字上志段味字竹の腰一戸建て | 物件情報
【守山区の専門店】地元密着なので、不動産以外の情報もお任せください。リフォーム・建築もご依頼可能!
取り扱い店舗:ハウスドゥ守山しだみ
【売却・住み替えの相談会開催中】売却と購入どっちが先なの?
住宅ローンの残債あるけど、住み替えできる?など、些細な質問でもOK!
★購入以外の相談もOK★
地域密着のハウスドゥ守山しだみは毎月多数のお客様より住み替えのご相談、将来のご相談等承っています。
まずはお気軽にご相談ください。
ハウス・リースバックとは?
家を売却してもそのまま住み続けられるサービスです。資金が必要だが今の家から引っ越せない方、相続に備えて事前に現金化したい方に選ばれています。
●お客様に寄り添ったご提案をしております●
これからの暮らしに関わるおうち選びですので、お客様の価値観を大切にし、プロの視点も含めた選択のお手伝いをさせて頂きます!
住宅ローンもお客様にとって一番条件の良い金融機関を選べるお手伝いもしています。ご相談下さい。
★ハウスドゥ守山しだみ★
ホームページには載せられない物件もございます。ご希望の方には資料のお届けも致しますので、守山区でお探しの方は、お気軽にご連絡下さい。まちや学校区のご紹介もしております!
物件の設備
- 電気
- 公営水道
- 公共下水
- 都市ガス
- 給湯
- システムキッチン
- バス
- バス1坪以上
- 浴室に窓
- トイレ
- 室内洗濯機置場
- 洗面所独立
- モニタ付インターホン
- 和室
- 2面採光
- 出窓
- フローリング
- クローゼット
- バルコニー
- L字型バルコニー
- 庭
- ハイルーフ駐車可能
物件の特徴
- 2沿線利用可
- 緑豊かな住宅地
- スーパーが近い
- 閑静な住宅街
- 周辺交通量少なめ
- 通風良好
- 陽当り良好
- 2階建
- 平坦地
- 整形地
- 区画整理地内
- 即入居可
オープンハウス・イベント情報
開催日時:公開中 09:00~20:00
開催場所:愛知県名古屋市守山区
◎●住宅見学会のご案内●◎ 【事前予約制】理想の住まいを実際に見て感じるチャンス! 日程:全日予約受付中 時間:9:00~18:00 ※お席に限りがございます ■常時1000件以上の豊富な物件情報を取り扱い中 -守山区・尾張旭市に特化した地元密着の不動産会社です -守山区・尾張旭市…
物件詳細情報
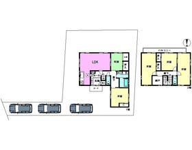
| 価格 | 3,520万円 | 間取り | 4LDK |
|---|---|---|---|
| 物件種別 | 中古一戸建て | ||
| 所在地 | 愛知県名古屋市守山区大字上志段味字竹の腰 | ||
| アクセス |
|
||
| 建物面積 | 公118.41㎡ | 駐車場 | あり 普通:2台 |
| 築年月 | 1999年(平成11年)03月築 | ||
| 建物構造 | 木造 2階建 | 工法 | |
| 主要採光 | 南向 | バルコニー | |
| 保証・評価 | |||
| リフォーム | |||
| 土地面積 | 117.72㎡(35.61坪) | 接道 | |
| 私道 | セットバック | ||
| 地目 | 雑種地(一部 田含む) | 地勢 | |
| 権利 | 所有権 |
||
| 都市計画 | 市街化区域 |
用途地域 | 1種低層 |
| 建ぺい/容積率 | 50% / 100% | 土地国土法 | |
| 許可番号 | 建築基準法 | ||
| 法令制限 | 10m高度地区 | ||
| 小学区 | 志段味東小学校 徒歩7分 (約500m) | 中学区 | 志段味中学校 徒歩27分 (約2130m) |
| 現況 | 空 | 引渡 | 即 |
| その他費用 | |||
| 周辺環境 | 高蔵寺駅 徒歩22分 (約1710m) 志段味東小学校 徒歩7分 (約500m) 志段味中学校 徒歩27分 (約2130m) しだみ保育園 徒歩6分 (約430m) セブンイレブン名古屋上志段味店 徒歩7分 (約500m) スーパーマーケットバロー志段味店 徒歩9分 (約700m) V・drug志段味店 徒歩9分 (約700m) コストコ守山倉庫店 徒歩11分 (約860m) なかむら内科 徒歩4分 (約290m) 海東こども広場 徒歩3分 (約230m) |
||
| 備考 | ●地目:確認要(農転が必要となる可能性有) ●間取りについては現地確認ください |
||
| 物件番号 | 4302645 | 取引態様 | 媒介 |
取扱店舗情報
ハウスドゥ 守山しだみ ライフベイシス株式会社 店舗詳細ページへ
| 電話番号 | 052-737-7091 |
|---|---|
| 所在地 | 〒463-0001 愛知県名古屋市守山区上志段味山の田1005 |
| 営業時間 | 10:00~18:00 |
| 定休日 | 水曜日 |
| 宅建免許番号 | 愛知県知事(3)第22389号 |
| アクセス | 店舗への地図はこちら |

来店ご予約
愛知県名古屋市守山区で価格が似ている物件はこちら
- 愛知県
マイページ物件数 - 32,097件
最近見た物件
-
-

-
- 中古一戸建て
- 2,590万円
-
八戸市大字新井田字立石沢
-
見晴台バス停
-
愛知県中古一戸建て新着物件
-
-

-
- 中古一戸建て
- 2,380万円
-
丹羽郡扶桑町大字高木字白山前
-
名鉄犬山線扶桑駅
-
-
-

-
- 中古一戸建て
- 4,900万円
-
安城市安城町照路
-
名鉄西尾線南安城駅
-
-
-

-
- 中古一戸建て
- 1,999万円
-
豊田市乙部ケ丘4丁目
-
愛知環状鉄道保見駅
-
-
-

-
- 中古一戸建て
- 2,400万円
-
みよし市三好町天王
-
名鉄豊田線黒笹駅
-
-
-

-
- 中古一戸建て
- 1,799万円
-
名古屋市中川区野田3丁目
-
名古屋市東山線高畑駅
-
-
-

-
- 中古一戸建て
- 2,999万円
-
豊田市美和町3丁目
-
名鉄三河線平戸橋駅
-
-
-

-
- 中古一戸建て
- 2,999万円
-
豊田市美和町3丁目
-
名鉄三河線平戸橋駅
-
- お近くの店舗を探す
-
おすすめ物件
-
-

-
- 中古一戸建て
- 3,280万円
-
美濃加茂市下米田町小山
-
JR高山本線古井
-
-
-

-
- 中古一戸建て
- 2,790万円
-
豊田市越戸町上西小笹
-
名鉄三河線平戸橋
-
-
-

-
- 中古一戸建て
- 3,699万円
-
豊川市西桜木町1丁目
-
JR飯田線豊川
-
-
-

-
- 中古一戸建て
- 5,180万円
-
豊明市前後町仙人塚
-
名鉄名古屋本線前後
-
-
-

-
- 中古一戸建て
- 3,300万円
-
大府市長草町中屋敷
-
JR東海道本線共和
-
-
-

-
- 中古一戸建て
- 3,790万円
-
犬山市字観音浦
-
名鉄小牧線楽田
-
-
-

-
- 中古一戸建て
- 1,850万円
-
岡崎市上地5丁目
-
JR東海道本線岡崎
-
-
-

-
- 中古一戸建て
- 3,100万円
-
東海市名和町細田
-
名鉄常滑線聚楽園
-
-
-

-
- 中古一戸建て
- 2,780万円
-
北名古屋市高田寺起返
-
名鉄犬山線西春
-
-
-

-
- 中古一戸建て
- 3,980万円
-
名古屋市中川区高畑3丁目
-
名古屋市東山線高畑
-























担当エージェント:坂本 将惟(しだみ店)
【笑顔な暮らしに役立つお役立ちサービス】
・一から全て教えます!失敗しない不動産選びのポイント
◎すべての物件を整理してお見せする秘書サービス!
◎お金・暮らしに対する、お一人お一人の価値観にあった選択のご提案!
・そのお家大丈夫?ハザードマップ検診!
<あなたの価値観を大切にしております>
一生に一度のお買い物あなたにとってよりよい選択のために、たくさん比較して頂きたい。そのために、ただ物件を見て選んで頂くのではなく、プロの視点も交えながら一緒に考えていきましょう。
■■■名古屋市守山区専門の地元密着の不動産会社【ハウスドゥ守山しだみ】です■■■
◆◆◆守山区内で常時300物件以上を取り扱っております◆◆◆
◆◆◆住宅ローンの承認実績が多数ございます。
頭金が少ない方・リフォーム工事も希望されている方も、是非ご相談くださいませ■■■
●●ご見学・ご相談等は「0120-377-090」 【通話料無料】●●