宮崎市大塚町小原田の中古戸建
掲載情報更新日:2025年10月21日 次回更新予定日:2025年11月04日
- 1,000万円
- 
                    - 借入ご希望金額
 万円
-  借入期間
 年
-  借入金利
 %
-  月々のお支払い金額
 円
 
- 借入ご希望金額
※ 月々のお支払例は目安の試算となりますので、実際の金額とは異なる場合がございます。詳しくは店舗までお問合わせください。
- 宮崎市大塚町小原田
- 
                    JR日豊本線『宮崎』 徒歩50分 (約3970m)
 JR日豊本線『南宮崎』 徒歩52分 (約4120m)
 JR日豊本線『宮崎神宮』 徒歩66分 (約5280m)
 宮崎交通『大塚西の原』 徒歩3分 (約240m)
 
宮崎市大塚町小原田一戸建て | 物件情報
大塚小・中が徒歩10分以内。生活環境と通学のしやすさを両立した子育て世代にぴったりの住まい♪
             
        
            ・小学校約660m・中学校約490m!お子様の通学も安心
・静かな住宅地でファミリーに人気のエリア
・最寄りバス停「大塚西の原」まで徒歩3分!アクセス良好
・空家につき即内覧可・リフォーム素材としても最適!
        
物件の設備
- オール電化
- 公営水道
- 下水道
- バス
- 浴室に窓
- トイレ
- 和室
物件の特徴
- 2階建
物件詳細情報
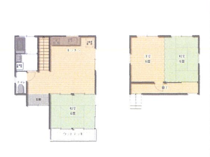
| 価格 | 1,000万円 | 間取り | 3LDK | 
|---|---|---|---|
| 物件種別 | 中古一戸建て | ||
| 所在地 | 宮崎県宮崎市大塚町小原田 | ||
| アクセス | 
 | ||
| 建物面積 | 公66.77㎡ | 駐車場 | あり | 
| 築年月 | 1986年(昭和61年)03月築 | ||
| 建物構造 | 木造 2階建 | 工法 | |
| 主要採光 | バルコニー | ||
| 保証・評価 | |||
| リフォーム | |||
| 土地面積 | 公117.27㎡(35.47坪) | 接道 | |
| 私道 | セットバック | ||
| 地目 | 宅地 | 地勢 | |
| 権利 | 所有権 | ||
| 都市計画 | 市街化区域 | 用途地域 | 1種低層 | 
| 建ぺい/容積率 | 50% / 80% | 土地国土法 | |
| 許可番号 | 建築基準法 | ||
| 法令制限 | |||
| 小学区 | 大塚小学校 徒歩9分 (約660m) | 中学区 | 大塚中学校 徒歩7分 (約490m) | 
| 現況 | 空 | 引渡 | 相談 | 
| その他費用 | |||
| 周辺環境 | ナフコ 大塚店 徒歩7分 (約500m) ローソン 宮崎大塚町店 徒歩8分 (約590m) マルミヤストア 大塚店 徒歩7分 (約490m) 大塚中学校 徒歩7分 (約490m) 大塚小学校 徒歩9分 (約660m) セブンイレブン 宮崎大塚池ノ内 徒歩10分 (約800m) 旬感マーケット 大塚店 徒歩10分 (約790m) 宮崎太陽銀行 大塚支店 大塚北支店 徒歩10分 (約800m) 宮崎銀行 大塚中央支店 徒歩12分 (約940m) | ||
| 備考 | |||
| 物件番号 | 4302961 | 取引態様 | 媒介 | 
取扱店舗情報
| 電話番号 | 0985-86-7336 | 
|---|---|
| 所在地 | 〒889-1607 宮崎県宮崎市清武町加納3丁目16 メモワールII101号室 | 
| 営業時間 | 9:00~20:00 | 
| 定休日 | 不定休 | 
| 宅建免許番号 | 宮崎県知事(1)第4995号 | 
| アクセス | 店舗への地図はこちら | 

来店ご予約
宮崎県宮崎市で価格が似ている物件はこちら
- 宮崎県
 マイページ物件数
- 1,642件
最近見た物件
- 
                        - 
									                                     
- 
                                - 新築一戸建て
- 2,688万円
- 
                                        
                                            宮崎市恒久3丁目 
- 
                                        JR日豊本線南宮崎 
 
 
- 
									                                    
宮崎県中古一戸建て新着物件
- お近くの店舗を探す
- 
            
            
            
おすすめ物件
- 
				- 
														 
- 
						- 中古一戸建て
- 2,000万円
- 
								
									宮崎市江南2丁目 
- 
								JR日豊本線南宮崎 
 
 
- 
														
- 
				- 
														 
- 
						- 中古一戸建て
- 1,350万円
- 
								
									宮崎市清武町今泉丙 
- 
								JR日豊本線清武 
 
 
- 
														
- 
				- 
														 
- 
						- 中古一戸建て
- 1,550万円
- 
								
									宮崎市堀川町 
- 
								JR日豊本線宮崎 
 
 
- 
														
- 
				- 
														 
- 
						- 中古一戸建て
- 700万円
- 
								
									日南市南郷町中村乙 
- 
								JR日南線南郷 
 
 
- 
														
- 
				- 
														 
- 
						- 中古一戸建て
- 1,870万円
- 
								
									宮崎市大字小松 
- 
								JR日豊本線宮崎神宮 
 
 
- 
														
- 
				- 
														 
- 
						- 中古一戸建て
- 1,990万円
- 
								
									宮崎市吉村町曽師前 
- 
								JR日豊本線宮崎 
 
 
- 
														
- 
				- 
														 
- 
						- 中古一戸建て
- 650万円
- 
								
									宮崎市佐土原町東上那珂 
- 
								野久尾バス停 
 
 
- 
														
- 
				- 
														 
- 
						- 中古一戸建て
- 2,900万円
- 
								
									宮崎市田野町乙 
- 
								JR日豊本線田野 
 
 
- 
														
- 
				- 
														 
- 
						- 中古一戸建て
- 3,600万円
- 
								
									宮崎市高岡町飯田3丁目 
- 
								JR日豊本線宮崎 
 
 
- 
														
- 
				- 
														 
- 
						- 中古一戸建て
- 600万円
- 
								
									児湯郡高鍋町大字上江 
- 
								JR日豊本線高鍋 
 
 
- 
														
 
     
                         
                         
                         
                    







 
                









 
                 
             
                 
                    

 
                                            
 
                                             
                                             
                                             
                                             
                                             
                                             
                                             
                                             
                                             
                                             
                                             
                                             
                                             
                                             
                                             
                                             
                                             
                                             
                                             
                                             
                                             
                                             
                                             
                                             
                                             
                                     
                                             
                                            




 
						 
						
担当エージェント:小玉 賢太
人気の大塚エリアでこの条件は見逃せません!徒歩圏内に学校・バス停が揃い、通学・通勤・買物に便利な好立地。空家のためすぐにご案内可能です。まずはお気軽にご相談を!