摂津市千里丘東5丁目の中古戸建
掲載情報更新日:2025年09月22日 次回更新予定日:2025年10月06日
- 3,980万円
-
- 借入ご希望金額
万円 - 借入期間
年 - 借入金利
% - 月々のお支払い金額
円
- 借入ご希望金額
※ 月々のお支払例は目安の試算となりますので、実際の金額とは異なる場合がございます。詳しくは店舗までお問合わせください。
- 摂津市千里丘東5丁目
-
阪急電鉄京都線『摂津市』 徒歩10分 (約800m)
JR東海道線『千里丘』 徒歩14分 (約1120m)
JR東海道線『岸辺』 徒歩14分 (約1120m)
摂津市千里丘東5丁目一戸建て | 物件情報
物件の設備
- 公営水道
- 公共下水
- 都市ガス
- バルコニー
物件の特徴
- 2階建
物件詳細情報
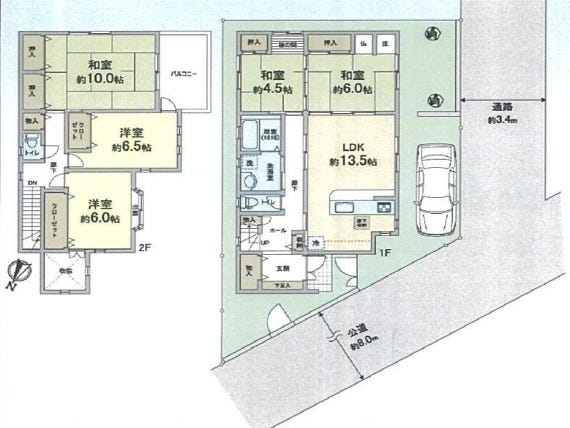
価格 | 3,980万円 | 間取り | 5LDK |
---|---|---|---|
物件種別 | 中古一戸建て | ||
所在地 | 大阪府摂津市千里丘東5丁目 | ||
アクセス |
|
||
建物面積 | 119.07㎡ | 駐車場 | あり |
築年月 | 2003年(平成15年)08月築 | ||
建物構造 | 木造 2階建 | 工法 | |
主要採光 | 南西向 | バルコニー | |
保証・評価 | |||
リフォーム | |||
土地面積 | 公117.4㎡(35.51坪) | 接道 | |
私道 | セットバック | ||
地目 | 宅地 | 地勢 | |
権利 | 所有権 |
||
都市計画 | 市街化区域 |
用途地域 | 2種住居 |
建ぺい/容積率 | 60% / 200% | 土地国土法 | |
許可番号 | 建築基準法 | ||
法令制限 | |||
小学区 | 中学区 | ||
現況 | 空 | 引渡 | 相談 |
その他費用 | |||
備考 | |||
物件番号 | 4307354 | 取引態様 | 媒介 |
取扱店舗情報
ハウスドゥ 新大阪東口 株式会社トップレベル 店舗詳細ページへ
電話番号 | 06-6195-9101 |
---|---|
所在地 | 〒533-0033 大阪府大阪市東淀川区東中島1丁目20-12 2階 |
営業時間 | 9:00~18:00 |
定休日 | 水曜日 |
宅建免許番号 | 大阪府知事(1)第64074号 |
アクセス | 店舗への地図はこちら |
来店ご予約
- 大阪府
マイページ物件数 - 17,930件
大阪府中古一戸建て新着物件
-
-
-
- 中古一戸建て
- 1,180万円
-
大阪市平野区平野東1丁目
-
JR関西本線加美駅
-
-
-
-
- 中古一戸建て
- 3,580万円
-
大阪市東淀川区瑞光2丁目
-
阪急電鉄京都線上新庄駅
-
-
-
-
- 中古一戸建て
- 1,200万円
-
松原市別所5丁目
-
近鉄南大阪線河内松原駅
-
-
-
-
- 中古一戸建て
- 2,780万円
-
松原市北新町6丁目
-
近鉄南大阪線布忍駅
-
-
-
-
- 中古一戸建て
- 980万円
-
松原市河合3丁目
-
近鉄南大阪線高見ノ里駅
-
-
-
-
- 中古一戸建て
- 3,180万円
-
吹田市樫切山
-
JR東海道線千里丘駅
-
-
-
-
- 中古一戸建て
- 6,280万円
-
大阪市都島区都島中通2丁目
-
大阪市谷町線都島駅
-
- お近くの店舗を探す
-
おすすめ物件
-
-
-
- 中古一戸建て
- 980万円
-
八尾市郡川6丁目
-
近鉄信貴線信貴山口
-
-
-
-
- 中古一戸建て
- 1,880万円
-
泉大津市虫取町2丁目
-
南海電鉄本線泉大津
-
-
-
-
- 中古一戸建て
- 3,280万円
-
大阪市西成区鶴見橋2丁目
-
JR大阪環状線今宮
-
-
-
-
- 中古一戸建て
- 1,880万円
-
岸和田市下池田町2丁目
-
JR阪和線久米田
-
-
-
-
- 中古一戸建て
- 4,490万円
-
大阪市住吉区万代東2丁目
-
大阪市御堂筋線西田辺
-
-
-
-
- 中古一戸建て
- 3,450万円
-
大阪市此花区酉島6丁目
-
JR桜島線安治川口
-
-
-
-
- 中古一戸建て
- 580万円
-
貝塚市橋本
-
JR阪和線和泉橋本
-
-
-
-
- 中古一戸建て
- 4,980万円
-
大阪市西成区千本北1丁目
-
大阪市四つ橋線岸里
-
-
-
-
- 中古一戸建て
- 2,580万円
-
大阪市住吉区長居2丁目
-
JR阪和線長居
-
-
-
-
- 中古一戸建て
- 5,280万円
-
泉大津市旭町
-
南海電鉄本線泉大津
-