富士市一色の中古戸建
掲載情報更新日:2025年12月18日 次回更新予定日:2026年01月01日
- 1,699万円
-
- 借入ご希望金額
万円 - 借入期間
年 - 借入金利
% - 月々のお支払い金額
円
- 借入ご希望金額
※ 月々のお支払例は目安の試算となりますので、実際の金額とは異なる場合がございます。詳しくは店舗までお問合わせください。
- 富士市一色
-
岳南電車『吉原本町』 徒歩44分 (約3520m)
富士急静岡バス茶の木平『茶の木平』 徒歩9分 (約720m)
富士市一色一戸建て | 物件情報
【青葉台小学校・吉原第二中学校】2026年2月リフォーム完成予定!
ピンポイントのカスタマイズや、お好みの壁紙等お客様オンリーワンへのご変更のご相談も、お任せ下さい。
またご予算に応じました様々なプランもご用意致します。快適な家づくり・住み心地の良い家づくり、お客様ファーストでお手伝い致します!。どんな細かいこともご相談下さい。
物件の詳細以外にも資金計画のご相談承ります。
・初めての住宅ローンで不安です。
・いくら借り事ができるのだろう?
・頭金0円でも大丈夫かな?
・購入後も無理の無い物件価格とは?
・賃貸から住宅購入する際の予算はどうする?
・ライフプランに合った資金計画について
・今住んでる家の住宅ローンが残っていても住み替え出来るかな?
・自営業者だけど、勤続年数がまだ短くて、年収が低いのですが、パート勤務なので、育児休暇中でも大丈夫?様々な不安お話下さい。
弊社エージェントがご相談承ります。
事前審査も承っております。
お気軽にお申し付け下さい。
物件の設備
- 上水道
- 公営水道
- 浄化槽
- 個別浄化槽
- プロパンガス
- 個別プロパン
- バス1坪以上
- 和室
- 全居室6畳以上
- フローリング張替
- 庭
- 庭10坪以上
- 南庭
- 縁側
物件の特徴
- 内装リフォーム済
- 外装リフォーム済
- 内外装リフォーム済
- 閑静な住宅街
- 高台に立地
- 陽当り良好
- 前面棟無
- 平坦地
- 瑕疵保証(不動産会社独自)有
物件詳細情報
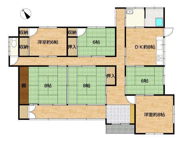
| 価格 | 1,699万円 | 間取り | 6DK |
|---|---|---|---|
| 物件種別 | 中古一戸建て | ||
| 所在地 | 静岡県富士市一色 | ||
| アクセス |
|
||
| 建物面積 | 135.53㎡ | 駐車場 | あり 普通:2台 |
| 築年月 | 1973年(昭和48年)12月築 | ||
| 建物構造 | 木造 1階建 | 工法 | |
| 主要採光 | バルコニー | ||
| 保証・評価 | 【瑕疵保証(不動産会社独自)】利用可 |
||
| リフォーム | 【水回り】2026年02月予定 キッチン・浴室・トイレ・洗面・給湯器 【外装】2025年11月 外壁 ・屋根 【内装】2026年02月予定 壁、天井 ・床 ・全室クロス ・建具 |
||
| 土地面積 | 479.62㎡(145.08坪) | 接道 | 南東側(私道)幅 約4.0m |
| 私道 | 別:196.00㎡(持分 2/14) | セットバック | |
| 地目 | 宅地 | 地勢 | |
| 権利 | 所有権 |
||
| 都市計画 | 調整区域 調整区域につき建築許可要 |
用途地域 | 指定無 |
| 建ぺい/容積率 | 60% / 200% | 土地国土法 | |
| 許可番号 | 建築基準法 | ||
| 法令制限 | |||
| 小学区 | 青葉台小学校 徒歩7分 (約500m) | 中学区 | 吉原第二中学校 徒歩33分 (約2600m) |
| 現況 | 空 | 引渡 | 相談 |
| その他費用 | |||
| 備考 | |||
| 物件番号 | 4307446 | 取引態様 | 媒介 |
取扱店舗情報
| 電話番号 | 055-969-3366 |
|---|---|
| 所在地 | 〒410-0312 静岡県沼津市原1418-40 |
| 営業時間 | 10:00~18:00 |
| 定休日 | 水曜日 |
| 宅建免許番号 | 静岡県知事(2)第14312号 |
| アクセス | 店舗への地図はこちら |

来店ご予約
静岡県富士市で価格が似ている物件はこちら
- 静岡県
マイページ物件数 - 2,802件
静岡県中古一戸建て新着物件
- お近くの店舗を探す
-
おすすめ物件
-
-

-
- 中古一戸建て
- 4,990万円
-
静岡市清水区蜂ヶ谷
-
JR東海道本線清水
-
-
-

-
- 中古一戸建て
- 3,980万円
-
浜松市中央区神立町
-
JR東海道本線浜松
-
-
-

-
- 中古一戸建て
- 1,300万円
-
裾野市千福
-
JR御殿場線裾野
-
-
-

-
- 中古一戸建て
- 2,000万円
-
三島市富士ビレッジ
-
JR東海道本線三島
-
-
-

-
- 中古一戸建て
- 3,280万円
-
静岡市葵区籠上
-
JR東海道本線静岡
-
-
-

-
- 中古一戸建て
- 3,990万円
-
浜松市中央区小池町
-
遠州鉄道さぎの宮
-
-
-

-
- 中古一戸建て
- 2,980万円
-
駿東郡小山町用沢
-
JR御殿場線足柄
-
-
-

-
- 中古一戸建て
- 3,950万円
-
静岡市葵区田町2丁目
-
JR東海道本線静岡
-
-
-

-
- 中古一戸建て
- 2,180万円
-
浜松市中央区和合町
-
JR東海道本線浜松
-
-
-

-
- 中古一戸建て
- 590万円
-
静岡市葵区上伝馬
-
JR東海道本線静岡
-





























担当エージェント:米山 渉
住宅ローンのご質問・ご相談、何なりとお申し付け下さい。
「物件の場所はどこ?」「○○エリアで物件を探しているんだけど?」
内見予約等、どんな事でもハウスドゥ沼津原までお気軽にお問い合わせ下さい♪