富士市一色の中古戸建
掲載情報更新日:2025年12月25日 次回更新予定日:2026年01月08日
- 1,699万円
-
- 借入ご希望金額
万円 - 借入期間
年 - 借入金利
% - 月々のお支払い金額
円
- 借入ご希望金額
※ 月々のお支払例は目安の試算となりますので、実際の金額とは異なる場合がございます。詳しくは店舗までお問合わせください。
- 富士市一色
-
岳南電車『本吉原』 徒歩44分 (約3520m)
富士市一色一戸建て | 物件情報
頭金なし諸経費込み5.2万円/月でご購入可能!将来の負担を抑えた無理のない住宅ローンを提案いたします
ご購入後も5年、10年先の外壁塗装やシロアリ予防、小規模・大規模な修繕、台風や大雨による火災保険を活用したリフォームにも迅速対応が可能です。 物件のご購入から資金計画、おしゃれでこだわりのリノベーション、火災保険まで、ワンストップでご提供いたします。 ご購入後のお客さまを、全力でサポートさせていただくことをお約束いたします。
【資金計画に絶対の自信があります!】
当社は住宅ローンに強い不動産会社です。多くの「家を持ちたい」というご要望を叶えてきました。
◆頭金がないけど買えるの?
◆借金があるけど買えるの?
◆滞納歴があるけど買えるの?
◆シングルマザーでも買えるの?
◆外国人でも買えるの?
◆収入が低くても買えるの?
などなど。住宅ローンにまつわるご不安やお悩みは全てご相談下さい。
当店では毎日21時まで無料相談会を実施していますので、お仕事帰りなどにご利用いただけたらと思います。 フリーダイヤル0120-722-778かLINEでご予約ください。経験豊富なスタッフが、安心して住まいの購入を進めていただけるよう、資金計画から強力にサポートいたします。
物件の設備
- 電気
- 上水道
- 公営水道
- 浄化槽
- 個別浄化槽
- プロパンガス
- 個別プロパン
- 給湯
- 独立キッチン
- バス
- バス1坪以上
- トイレ
- 室内洗濯機置場
- 洗面所独立
- 全居室6畳以上
- 2面採光
- フローリング
- シューズボックス
物件の特徴
- 内装リフォーム済
- 外装リフォーム済
- 内外装リフォーム済
- 陽当り良好
- 平坦地
- 即入居可
物件詳細情報
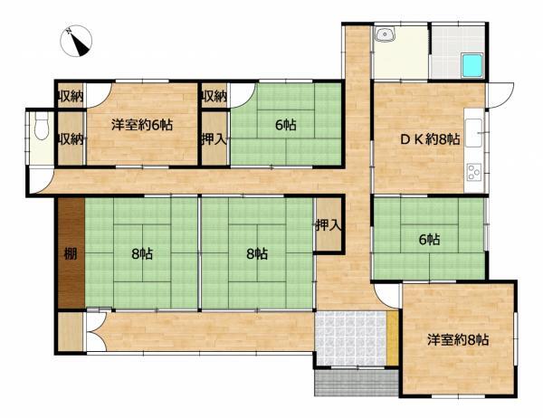
| 価格 | 1,699万円 | 間取り | 6DK |
|---|---|---|---|
| 物件種別 | 中古一戸建て | ||
| 所在地 | 静岡県富士市一色 | ||
| アクセス |
|
||
| 建物面積 | 公135.53㎡ | 駐車場 | あり 普通:2台 |
| 築年月 | 1973年(昭和48年)12月築 | ||
| 建物構造 | 木造 1階建 | 工法 | |
| 主要採光 | 南向 | バルコニー | |
| 保証・評価 | |||
| リフォーム | 【水回り】2026年02月予定 キッチン・浴室・トイレ・洗面・給湯器 【外装】2025年11月 外壁 ・屋根 【内装】2026年02月予定 壁、天井 |
||
| 土地面積 | 公479.62㎡(145.08坪) | 接道 | 南東側(私道)幅 約4.0m |
| 私道 | セットバック | 無 | |
| 地目 | 宅地 | 地勢 | |
| 権利 | 所有権 |
||
| 都市計画 | 調整区域 調整区域につき建築許可要 |
用途地域 | 指定無 |
| 建ぺい/容積率 | 60% / 200% | 土地国土法 | |
| 許可番号 | 建築基準法 | ||
| 法令制限 | |||
| 小学区 | 青葉台小学校 徒歩7分 (約500m) | 中学区 | 吉原第二中学校 徒歩33分 (約2600m) |
| 現況 | 空 | 引渡 | 即 |
| その他費用 | |||
| 備考 | |||
| 物件番号 | 4310583 | 取引態様 | 媒介 |
取扱店舗情報
ハウスドゥ 沼津香貫 株式会社東静プランニング 店舗詳細ページへ
| 電話番号 | 055-935-6102 |
|---|---|
| 所在地 | 〒410-0836 静岡県沼津市吉田町38-4 |
| 営業時間 | 10:00~19:00 |
| 定休日 | 水曜日、第一火曜日、年末年始 |
| 宅建免許番号 | 国土交通大臣(1)第10183号 |
| アクセス | 店舗への地図はこちら |

来店ご予約
静岡県富士市で価格が似ている物件はこちら
- 静岡県
マイページ物件数 - 2,784件
最近見た物件
-
-

-
- 新築一戸建て
- 3,998万円
-
北九州市小倉北区三郎丸3丁目
-
北九州高速鉄道片野
-
-
-

-
- 中古一戸建て
- 2,580万円
-
名古屋市港区春田野1丁目
-
名古屋市東山線高畑
-
-
-

-
- 新築一戸建て
- 3,490万円
-
松原市松ケ丘4丁目
-
近鉄南大阪線河内松原
-
静岡県中古一戸建て新着物件
- お近くの店舗を探す
-
おすすめ物件
-
-

-
- 中古一戸建て
- 3,280万円
-
静岡市葵区籠上
-
JR東海道本線静岡
-
-
-

-
- 中古一戸建て
- 2,000万円
-
駿東郡清水町湯川
-
JR御殿場線沼津
-
-
-

-
- 中古一戸建て
- 3,780万円
-
袋井市栄町
-
JR東海道本線袋井
-
-
-

-
- 中古一戸建て
- 2,180万円
-
湖西市鷲津
-
JR東海道本線鷲津
-
-
-

-
- 中古一戸建て
- 1,320万円
-
静岡市葵区辰起町
-
JR東海道本線静岡
-
-
-

-
- 中古一戸建て
- 2,500万円
-
浜松市中央区入野町
-
JR東海道本線浜松
-
-
-

-
- 中古一戸建て
- 750万円
-
田方郡函南町柏谷
-
JR東海道本線函南
-
-
-

-
- 中古一戸建て
- 2,980万円
-
駿東郡小山町用沢
-
JR御殿場線足柄
-
-
-

-
- 中古一戸建て
- 2,280万円
-
浜松市中央区高丘西2丁目
-
遠鉄バス「瑞穂神社西」停
-
-
-

-
- 中古一戸建て
- 2,780万円
-
富士市原田
-
岳南電車岳南原田
-





























お客さま一人ひとりの長期的なライフプランをじっくりとヒアリングし、将来の負担を抑えた無理のない住宅ローンを提案いたします。経験豊富なスタッフが、安心して住まいの購入を進めていただけるよう、資金計画から強力にサポートいたします。
【当店のできること】
・物件の選定・周辺環境・資産性の評価
・物件の価格や近隣相場の調査
・建築分野におけるアドバイス
・役所調査・物件調査
・管理規約の確認(区分所有マンションの場合)
・重要事項説明書の作成・事前説明
・住宅ローンの事前審査・アドバイス・斡旋
・インスペクション業者の紹介
・リフォーム・リノベーション・修繕のアドバイス
・内覧時におけるリフォーム費用のご提示
・金消契約の立会い
・お引渡後のトラブルのお手伝い
【当店のできないことです】
・しつこい営業はできません
・強引な営業もできません
・売りたいがための嘘もつけません
・エージェントの意見を押し付けることもできません