桶川市上日出谷南1丁目の中古戸建
掲載情報更新日:2025年09月22日 次回更新予定日:2025年10月06日
- 1,630万円
-
- 借入ご希望金額
万円 - 借入期間
年 - 借入金利
% - 月々のお支払い金額
円
- 借入ご希望金額
※ 月々のお支払例は目安の試算となりますので、実際の金額とは異なる場合がございます。詳しくは店舗までお問合わせください。
- 桶川市上日出谷南1丁目
-
JR高崎線『桶川』 徒歩24分 (約1920m)
桶川市上日出谷南1丁目一戸建て | 物件情報
・JR高崎線・湘南新宿ライン「桶川」駅より徒歩24分の立地~閑静な住宅街にある4LDK
~只今キャンペーン中~ご成約頂いたお客様にもれなく1万円分のクオカードを進呈中~
・JR高崎線・湘南新宿ライン「桶川」駅より徒歩24分の立地
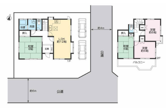
・土地面積116.23平米、建物面積90.06平米の4LDK
・東南角地、全室2面彩光につき日当たり良好です
・カーポート付き駐車スペースあり
・全居室6帖以上でゆとりのある間取り
・家事導線の良いL字型キッチン
~お気軽にお問い合わせ下さい~
物件の設備
- 公営水道
- 浄化槽
- 都市ガス
- バス
- 浴室に窓
- トイレ
- トイレ2箇所
- 洗面所独立
- 和室
- 和室8畳以上
- 全居室6畳以上
- 2面採光
- 出窓
- 全居室収納
- シューズボックス
- バルコニー
- ワイドバルコニー
- 南面バルコニー
- 2WAYバルコニー
物件の特徴
- 2沿線利用可
- 前道6m以上
- 南側道路面す
- スーパーが近い
- 閑静な住宅街
- 通風良好
- 陽当り良好
- 2階建
物件詳細情報
価格 | 1,630万円 | 間取り | 4LDK |
---|---|---|---|
物件種別 | 中古一戸建て | ||
所在地 | 埼玉県桶川市上日出谷南1丁目 | ||
アクセス |
|
||
建物面積 | 公90.06㎡ | 駐車場 | あり 普通:2台 |
築年月 | 1987年(昭和62年)01月築 | ||
建物構造 | 木造 2階建 | 工法 | |
主要採光 | 南向 | バルコニー | 南向7.00㎡ |
保証・評価 | |||
リフォーム | |||
土地面積 | 公116.23㎡(35.15坪) | 接道 | 南側(公道)幅 約6.0m 東側(公道)幅 約4.0m |
私道 | セットバック | 無 | |
地目 | 宅地 | 地勢 | |
権利 | 所有権 |
||
都市計画 | 市街化区域 |
用途地域 | 1種住居(一部1種中高 含む) |
建ぺい/容積率 | 60% / 200% | 土地国土法 | |
許可番号 | 建築基準法 | ||
法令制限 | |||
小学区 | 日出谷小学校 徒歩9分 (約700m) | 中学区 | 桶川西中学校 徒歩17分 (約1300m) |
現況 | 空 | 引渡 | 相談 |
その他費用 | |||
周辺環境 | 日出谷保育所 徒歩8分 (約640m) 愛宕幼稚園 徒歩9分 (約720m) 日出谷小学校 徒歩9分 (約700m) 桶川市立桶川西中学校 徒歩17分 (約1300m) セブン-イレブン 桶川上日出谷店 徒歩6分 (約420m) ヤオコー 桶川上日出谷店 徒歩6分 (約420m) コープみらい ミニコープ日出谷店 徒歩9分 (約690m) ドラッグストア マツモトキヨシ 桶川下日出谷店 徒歩11分 (約880m) 桶川日出谷郵便局 徒歩4分 (約320m) ベニバナファミリークリニック 徒歩6分 (約460m) |
||
備考 | |||
物件番号 | 4316005 | 取引態様 | 媒介 |
取扱店舗情報
ハウスドゥ 上福岡 GLOBAL HOLDINGS株式会社 店舗詳細ページへ
電話番号 | 049-264-1010 |
---|---|
所在地 | 〒356-0006 埼玉県ふじみ野市霞ケ丘1丁目2番27 ココネ上福岡1F |
営業時間 | 9:00~19:00 |
定休日 | 水曜日、年末年始 |
宅建免許番号 | 埼玉県知事(3)第22701号 |
アクセス | 店舗への地図はこちら |
来店ご予約
埼玉県桶川市で価格が似ている物件はこちら
- 埼玉県
マイページ物件数 - 3,811件
最近見た物件
-
-
-
- 中古一戸建て
- 2,500万円
-
足立区六月2丁目
-
東武伊勢崎・大師線竹ノ塚
-
-
-
-
- 中古一戸建て
- 6,280万円
-
川口市安行出羽5丁目
-
埼玉高速鉄道戸塚安行
-
-
-
-
- 中古一戸建て
- 700万円
-
入間市大字南峯
-
JR八高線金子
-
埼玉県中古一戸建て新着物件
-
-
-
- 中古一戸建て
- 880万円
-
ふじみ野市元福岡3丁目
-
東武東上線上福岡駅
-
-
-
-
- 中古一戸建て
- 1,980万円
-
所沢市大字下安松
-
西武池袋・豊島線
-
-
-
-
- 中古一戸建て
- 1,100万円
-
北足立郡伊奈町大字小室
-
JR東北本線蓮田駅
-
-
-
-
- 中古一戸建て
- 2,150万円
-
蓮田市大字黒浜
-
JR東北本線蓮田駅
-
-
-
-
- 中古一戸建て
- 980万円
-
比企郡川島町八幡2丁目
-
東武東上線若葉駅
-
-
-
-
- 中古一戸建て
- 2,199万円
-
所沢市中富南3丁目
-
JR武蔵野線東所沢駅
-
-
-
-
- 中古一戸建て
- 2,680万円
-
越谷市柳町
-
東武伊勢崎・大師線越谷駅
-
- お近くの店舗を探す
-
おすすめ物件
-
-
-
- 中古一戸建て
- 1,990万円
-
川越市大字的場
-
JR川越線的場
-
-
-
-
- 中古一戸建て
- 2,499万円
-
三郷市彦糸1丁目
-
JR武蔵野線吉川美南
-
-
-
-
- 中古一戸建て
- 3,980万円
-
吉川市栄町
-
JR武蔵野線吉川
-
-
-
-
- 中古一戸建て
- 2,999万円
-
東松山市あずま町1丁目
-
東武東上線高坂
-
-
-
-
- 中古一戸建て
- 4,380万円
-
さいたま市緑区大字中尾
-
JR武蔵野線東浦和
-
-
-
-
- 中古一戸建て
- 3,190万円
-
さいたま市見沼区大字大谷
-
JR東北本線大宮
-
-
-
-
- 中古一戸建て
- 2,990万円
-
さいたま市緑区大字大間木
-
JR武蔵野線東浦和
-
-
-
-
- 中古一戸建て
- 730万円
-
北葛飾郡松伏町大字下赤岩
-
JR武蔵野線吉川
-
-
-
-
- 中古一戸建て
- 2,700万円
-
さいたま市北区奈良町
-
JR高崎線宮原
-
-
-
-
- 中古一戸建て
- 1,250万円
-
さいたま市岩槻区本丸3丁目
-
東武野田線東岩槻
-
担当エージェント:板垣 大雅
弊社はより多くの方が購入し易いリーズナブルな価格の中古物件を取り揃えております。お客様一人一人のニーズに合った物件探しをモットーに全力でサポート致します。是非お気軽にご相談下さい。