三浦市尾上町中古戸建
掲載情報更新日:2025年10月16日 次回更新予定日:2025年10月30日
- 2,180万円
-
- 借入ご希望金額
万円 - 借入期間
年 - 借入金利
% - 月々のお支払い金額
円
- 借入ご希望金額
※ 月々のお支払例は目安の試算となりますので、実際の金額とは異なる場合がございます。詳しくは店舗までお問合わせください。
- 三浦市尾上町
-
京急久里浜線『三崎口』 バス乗車16分 屋志倉 停 徒歩5分 (約400m)
京急久里浜線『三浦海岸』 バス乗車19分 天神町 停 徒歩12分 (約960m)
京急本線『横須賀中央』 バス乗車59分 天神町 停 徒歩12分 (約960m)
三浦市尾上町中古戸建一戸建て | 物件情報
物件の設備
- フローリング張替
物件の特徴
- 内装リフォーム済
- 前道6m以上
- 2階建
- 即入居可
物件詳細情報
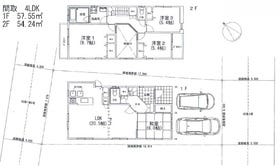
価格 | 2,180万円 | 間取り | 4LDK |
---|---|---|---|
物件種別 | 中古一戸建て | ||
所在地 | 神奈川県三浦市尾上町 | ||
アクセス |
|
||
建物面積 | 109.97㎡ | 駐車場 | なし |
築年月 | 1988年(昭和63年)03月築 | ||
建物構造 | 軽量鉄骨 2階建 | 工法 | |
主要採光 | 南向 | バルコニー | |
保証・評価 | |||
リフォーム | 【水回り】2025年01月 キッチン・浴室・トイレ・洗面 新規交換 【内装】2025年01月 全面 ・壁、天井 ・床 ・全室クロス ・建具 ・サッシ クロス張替え、フロアタイル上張り、畳表替え、障子・襖張替 |
||
土地面積 | 206.04㎡(62.32坪) | 接道 | 南西側(公道)幅 約6.1m 南東側(公道)幅 約4.6m |
私道 | セットバック | ||
地目 | 宅地 | 地勢 | |
権利 | 所有権 |
||
都市計画 | 用途地域 | 1種中高 | |
建ぺい/容積率 | 60% / 200% | 土地国土法 | |
許可番号 | 建築基準法 | ||
法令制限 | |||
小学区 | 三崎小学校 徒歩14分 (約1100m) | 中学区 | |
現況 | 空 | 引渡 | 即 |
その他費用 | |||
備考 | |||
物件番号 | 4324003 | 取引態様 | 媒介 |
取扱店舗情報
ハウスドゥ 横須賀衣笠 株式会社ドリームプランニング 店舗詳細ページへ
電話番号 | 046-850-6133 |
---|---|
所在地 | 〒238-0031 神奈川県横須賀市衣笠栄町2丁目15-3 |
営業時間 | 10:00~19:00 |
定休日 | 水曜日、年末年始 |
宅建免許番号 | 神奈川県知事(4)第25736号 |
アクセス | 店舗への地図はこちら |
来店ご予約
- 神奈川県
マイページ物件数 - 3,054件
最近見た物件
-
-
-
- 中古一戸建て
- 1,980万円
-
松江市国屋町
-
一畑電車北松江線松江しんじ湖温泉
-
神奈川県中古一戸建て新着物件
-
-
-
- 中古一戸建て
- 8,280万円
-
横浜市中区竹之丸
-
JR根岸線山手駅
-
-
-
-
- 中古一戸建て
- 3,397万円
-
平塚市めぐみが丘2丁目
-
JR東海道本線平塚駅
-
-
-
-
- 中古一戸建て
- 1,800万円
-
横須賀市鶴が丘1丁目
-
JR横須賀線衣笠駅
-
-
-
-
- 中古一戸建て
- 2,299万円
-
平塚市徳延
-
JR東海道本線平塚駅
-
-
-
-
- 中古一戸建て
- 4,580万円
-
川崎市多摩区中野島3丁目
-
JR南武線中野島駅
-
-
-
-
- 中古一戸建て
- 450万円
-
横須賀市佐野町1丁目
-
京急本線県立大学駅
-
-
-
-
- 中古一戸建て
- 3,980万円
-
川崎市麻生区岡上6丁目
-
小田急小田原線
-
- お近くの店舗を探す
-