上益城郡益城町大字辻の城の中古戸建
掲載情報更新日:2025年10月02日 次回更新予定日:2025年10月16日
- 1,798万円
-
- 借入ご希望金額
万円 - 借入期間
年 - 借入金利
% - 月々のお支払い金額
円
- 借入ご希望金額
※ 月々のお支払例は目安の試算となりますので、実際の金額とは異なる場合がございます。詳しくは店舗までお問合わせください。
- 上益城郡益城町大字辻の城
-
熊本市健軍線『健軍町』 徒歩83分 (約6600m)
熊本市健軍線『健軍交番前』 徒歩87分 (約6900m)
熊本市健軍線『動植物園入口』 徒歩89分 (約7100m)
上益城郡益城町大字辻の城一戸建て | 物件情報
物件の設備
- 電気
- 上水道
- 公営水道
- 下水道
- 公共下水
- プロパンガス
- 浄水器
- 食器洗浄乾燥機
- コンロ三口
- グリル
- システムキッチン
- バス
- オートバス
- バス1坪以上
- 追焚機能
- 浴室暖房
- 浴室乾燥機
- 浴室に窓
- トイレ
- 温水洗浄便座
- 室内洗濯機置場
- 洗髪洗面化粧台
- 洗面所独立
- ダウンライト
- モニタ付インターホン
- 火災警報器/報知機
- 全室フローリング
- クローゼット2箇所
- 全居室収納
- シューズボックス
物件の特徴
- 閑静な住宅街
- 2階建
物件詳細情報
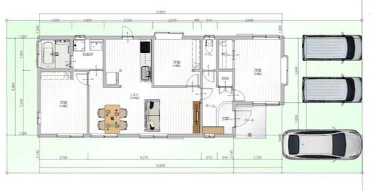
価格 | 1,798万円 | 間取り | 3LDK |
---|---|---|---|
物件種別 | 中古一戸建て | ||
所在地 | 熊本県上益城郡益城町大字辻の城 | ||
アクセス |
|
||
建物面積 | 69.56㎡ | 駐車場 | あり 普通:2台 |
築年月 | 1994年(平成6年)01月築 | ||
建物構造 | 木造 2階建 | 工法 | |
主要採光 | バルコニー | ||
保証・評価 | |||
リフォーム | |||
土地面積 | 171.82㎡(51.97坪) | 接道 | |
私道 | セットバック | ||
地目 | 宅地 | 地勢 | |
権利 | 所有権 |
||
都市計画 | 市街化区域 |
用途地域 | 1種低層 |
建ぺい/容積率 | 40% / 80% | 土地国土法 | |
許可番号 | 建築基準法 | ||
法令制限 | |||
小学区 | 益城中央小学校 徒歩22分 (約1700m) | 中学区 | 木山中学校 徒歩23分 (約1800m) |
現況 | 空 | 引渡 | 相談 |
その他費用 | |||
周辺環境 | セブンイレブン 益城宮園店 徒歩8分 (約600m) 益城郵便局 徒歩8分 (約580m) スーパー・キッド益城店 徒歩12分 (約930m) 肥後銀行 木山支店 徒歩14分 (約1060m) 木山中学校 徒歩26分 (約2040m) |
||
備考 | |||
物件番号 | 4334602 | 取引態様 | 媒介 |
取扱店舗情報
ハウスドゥ 大江 まつばや百貨店不動産株式会社 店舗詳細ページへ
電話番号 | 096-206-1230 |
---|---|
所在地 | 〒862-0971 熊本県熊本市中央区大江1丁目2-19 |
営業時間 | 9:00~18:00 |
定休日 | 水曜日 |
宅建免許番号 | 熊本県知事(1)第5729号 |
アクセス | 店舗への地図はこちら |
来店ご予約
熊本県上益城郡益城町で価格が似ている物件はこちら
- 熊本県
マイページ物件数 - 2,983件
熊本県中古一戸建て新着物件
-
-
-
- 中古一戸建て
- 2,200万円
-
合志市須屋
-
熊本電気鉄道黒石駅
-
-
-
-
- 中古一戸建て
- 3,698万円
-
熊本市中央区九品寺6丁目
-
JR豊肥本線南熊本駅
-
-
-
-
- 中古一戸建て
- 1,598万円
-
熊本市中央区八王寺町
-
JR豊肥本線南熊本駅
-
-
-
-
- 中古一戸建て
- 3,498万円
-
合志市幾久富
-
JR豊肥本線光の森駅
-
-
-
-
- 中古一戸建て
- 2,058万円
-
熊本市東区長嶺南5丁目
-
JR豊肥本線東海学園前駅
-
-
-
-
- 中古一戸建て
- 450万円
-
熊本市西区島崎7丁目
-
熊本市上熊本線本妙寺入口駅
-
-
-
-
- 中古一戸建て
- 1,788万円
-
熊本市南区孫代町
-
九州産交バス砂原
-
- お近くの店舗を探す
-
おすすめ物件
-
-
-
- 中古一戸建て
- 2,798万円
-
熊本市東区花立5丁目
-
熊本市健軍線健軍町
-
-
-
-
- 中古一戸建て
- 5,500万円
-
熊本市北区楡木2丁目
-
JR豊肥本線武蔵塚
-
-
-
-
- 中古一戸建て
- 2,698万円
-
熊本市東区沼山津1丁目
-
熊本市健軍線健軍町
-
-
-
-
- 中古一戸建て
- 3,150万円
-
合志市幾久富
-
JR豊肥本線光の森
-
-
-
-
- 中古一戸建て
- 3,498万円
-
合志市幾久富
-
JR豊肥本線光の森
-
-
-
-
- 中古一戸建て
- 3,000万円
-
合志市御代志
-
熊本電気鉄道御代志
-
-
-
-
- 中古一戸建て
- 1,988万円
-
合志市須屋
-
熊本電気鉄道三ツ石
-
-
-
-
- 中古一戸建て
- 1,130万円
-
合志市須屋
-
熊本電気鉄道須屋
-
-
-
-
- 中古一戸建て
- 1,090万円
-
山鹿市小群
-
平小城バス停
-
-
-
-
- 中古一戸建て
- 1,480万円
-
八代市古閑上町
-
JR九州新幹線新八代
-