LFB再生住宅-沼山津1丁目25-87-
掲載情報更新日:2025年10月25日 次回更新予定日:2025年11月08日
- 2,698万円
- 
                    - 借入ご希望金額
 万円
-  借入期間
 年
-  借入金利
 %
-  月々のお支払い金額
 円
 
- 借入ご希望金額
※ 月々のお支払例は目安の試算となりますので、実際の金額とは異なる場合がございます。詳しくは店舗までお問合わせください。
- 熊本市東区沼山津1丁目
- 
                    熊本市健軍線『健軍町』 徒歩25分 (約2000m)
 
LFB再生住宅-沼山津1丁目25-87-一戸建て | 物件情報
【ハウスドゥ熊本託麻店】☆東区沼山津エリアの物件です☆
             
        
            ◇ネット予約可◇
見学・来店のご予約はHP内の[見学予約する]ボタンから予約が可能です!
ご希望の日時をご確認の上、お問合せフォームよりご入力ください(^^♪
お電話でも受付可!お気軽にご連絡ください(*'▽')
【フリーダイアル:0120-946-926】
◇どんなことでもご相談ください!◇
・家を買うにはどのくらいの期間と費用がかかるのかしら?
・マンションと戸建はどちらがいいの?新築、それともリフォーム済み物件?
・他にも借入があるけど、住宅ローンが組めるか不安だわ… 等々
弊社スタッフがおひとりおひとりに合ったプランをご提案します!        
物件の設備
- 電気
- 公営水道
- 公共下水
- 側溝
- コンロ三口
- システムキッチン
- バス
- ユニットバス
- 浴室に窓
- トイレ
- トイレ2箇所
- 室内洗濯機置場
- 洗髪洗面化粧台
- 洗面所独立
- 吹抜
- フローリング
- 全室フローリング
- クローゼット
- 全居室収納
物件の特徴
- 始発駅
- 閑静な住宅街
- 2階建
物件詳細情報
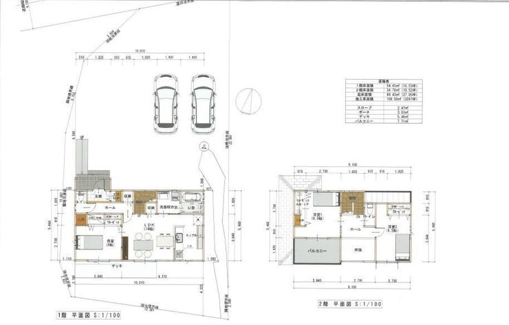
| 価格 | 2,698万円 | 間取り | 3LDK | 
|---|---|---|---|
| 物件種別 | 中古一戸建て | ||
| 所在地 | 熊本県熊本市東区沼山津1丁目25-87 | ||
| アクセス | 
 | ||
| 建物面積 | 89.43㎡ | 駐車場 | あり 普通:5台 | 
| 築年月 | 2018年(平成30年)10月築 | ||
| 建物構造 | 木造 スレート葺き 2階建 | 工法 | |
| 主要採光 | バルコニー | ||
| 保証・評価 | |||
| リフォーム | |||
| 土地面積 | 284.59㎡(86.08坪) | 接道 | |
| 私道 | セットバック | ||
| 地目 | 宅地 | 地勢 | |
| 権利 | 所有権 | ||
| 都市計画 | 市街化区域 | 用途地域 | 2種中高 | 
| 建ぺい/容積率 | 60% / 150% | 土地国土法 | |
| 許可番号 | 建築基準法 | ||
| 法令制限 | |||
| 小学区 | 秋津小学校 徒歩9分 (約650m) | 中学区 | 東野中学校 徒歩14分 (約1100m) | 
| 現況 | 空 | 引渡 | 相談 | 
| その他費用 | |||
| 備考 | 駐車5台以上可 | ||
| 物件番号 | 4357187 | 取引態様 | 媒介 | 
取扱店舗情報
| 電話番号 | 096-237-6690 | 
|---|---|
| 所在地 | 〒861-8029 熊本県熊本市東区西原2丁目11-90 | 
| 営業時間 | 9:30~18:00 | 
| 定休日 | 水曜日・第2、第3、第4、第5木曜日 | 
| 宅建免許番号 | 国土交通大臣(2)第9501号 | 
| アクセス | 店舗への地図はこちら | 

来店ご予約
熊本県熊本市東区で価格が似ている物件はこちら
- 熊本県
 マイページ物件数
- 3,041件
熊本県中古一戸建て新着物件
- 
				- 
							                             
- 
						- 中古一戸建て
- 2,058万円
- 
								
									熊本市東区長嶺南5丁目 
- 
                                熊本市健軍線健軍町駅 
 
 
- 
							                            
- 
				- 
							                             
- 
						- 中古一戸建て
- 1,788万円
- 
								
									熊本市南区孫代町 
- 
                                JR鹿児島本線西熊本駅 
 
 
- 
							                            
- 
				- 
							                             
- 
						- 中古一戸建て
- 2,598万円
- 
								
									熊本市北区楠8丁目 
- 
                                JR豊肥本線武蔵塚駅 
 
 
- 
							                            
- 
				- 
							                             
- 
						- 中古一戸建て
- 1,998万円
- 
								
									宇城市松橋町西下郷 
- 
                                JR鹿児島本線松橋駅 
 
 
- 
							                            
- 
				- 
							                             
- 
						- 中古一戸建て
- 1,398万円
- 
								
									上益城郡御船町大字高木 
- 
                                熊本市健軍線健軍町駅 
 
 
- 
							                            
- 
				- 
							                             
- 
						- 中古一戸建て
- 1,998万円
- 
								
									菊池市大琳寺 
- 
                                熊本電気鉄道御代志駅 
 
 
- 
							                            
- 
				- 
							                             
- 
						- 中古一戸建て
- 2,800万円
- 
								
									熊本市東区御領6丁目 
- 
                                JR豊肥本線武蔵塚駅 
 
 
- 
							                            
- お近くの店舗を探す
- 
            
            
            
おすすめ物件
- 
				- 
														 
- 
						- 中古一戸建て
- 3,400万円
- 
								
									熊本市北区武蔵ケ丘7丁目 
- 
								JR豊肥本線武蔵塚 
 
 
- 
														
- 
				- 
														 
- 
						- 中古一戸建て
- 2,898万円
- 
								
									熊本市北区鶴羽田2丁目 
- 
								熊本電気鉄道新須屋 
 
 
- 
														
- 
				- 
														 
- 
						- 中古一戸建て
- 2,480万円
- 
								
									熊本市北区龍田8丁目 
- 
								JR豊肥本線竜田口 
 
 
- 
														
- 
				- 
														 
- 
						- 中古一戸建て
- 1,780万円
- 
								
									熊本市南区城南町藤山 
- 
								JR三角線富合 
 
 
- 
														
- 
				- 
														 
- 
						- 中古一戸建て
- 3,490万円
- 
								
									熊本市東区長嶺東6丁目 
- 
								JR豊肥本線武蔵塚 
 
 
- 
														
- 
				- 
														 
- 
						- 中古一戸建て
- 1,988万円
- 
								
									合志市須屋 
- 
								熊本電気鉄道三ツ石 
 
 
- 
														
- 
				- 
														 
- 
						- 中古一戸建て
- 3,000万円
- 
								
									合志市御代志 
- 
								熊本電気鉄道御代志 
 
 
- 
														
- 
				- 
														 
- 
						- 中古一戸建て
- 2,850万円
- 
								
									合志市幾久富 
- 
								永江団地 
 
 
- 
														
- 
				- 
														 
- 
						- 中古一戸建て
- 1,798万円
- 
								
									熊本市東区小山5丁目 
- 
								JR豊肥本線東海学園前 
 
 
- 
														
- 
				- 
														 
- 
						- 中古一戸建て
- 2,698万円
- 
								
									熊本市東区沼山津1丁目 
- 
								熊本市健軍線健軍町 
 
 
- 
														
 
     
                         
                         
                         
                    







 
                







 
                 
             
                 
                    

 
                                            
 
                                             
                                             
                                             
                                             
                                             
                                             
                                             
                                             
                                             
                                             
                                             
                                             
                                             
                                             
                                             
						 
						
担当エージェント:光永
\全居室収納完備で広々LDK。2階は開放的な吹き抜けとバルコニー付き!/