宮崎市大字恒久の中古戸建
掲載情報更新日:2025年12月14日 次回更新予定日:2025年12月28日
- 1,180万円
-
- 借入ご希望金額
万円 - 借入期間
年 - 借入金利
% - 月々のお支払い金額
円
- 借入ご希望金額
※ 月々のお支払例は目安の試算となりますので、実際の金額とは異なる場合がございます。詳しくは店舗までお問合わせください。
- 宮崎市大字恒久
-
JR日豊本線『南宮崎』 徒歩16分 (約1250m)
JR日南線『田吉』 徒歩37分 (約2950m)
JR日豊本線『宮崎』 徒歩45分 (約3550m)
宮崎市大字恒久一戸建て | 物件情報
物件の設備
- 追焚機能
- 温水洗浄便座
- モニタ付インターホン
- 和室
- フローリング
物件の特徴
- 2階建
物件詳細情報
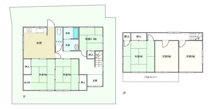
| 価格 | 1,180万円 | 間取り | 6DK |
|---|---|---|---|
| 物件種別 | 中古一戸建て | ||
| 所在地 | 宮崎県宮崎市大字恒久 | ||
| アクセス |
|
||
| 建物面積 | 公106.64㎡ | 駐車場 | あり 普通:2台 |
| 築年月 | 1987年(昭和62年)06月築 | ||
| 建物構造 | 木造 2階建 | 工法 | |
| 主要採光 | バルコニー | ||
| 保証・評価 | |||
| リフォーム | |||
| 土地面積 | 公157.64㎡(47.68坪) | 接道 | |
| 私道 | セットバック | ||
| 地目 | 宅地 | 地勢 | |
| 権利 | 所有権 |
||
| 都市計画 | 市街化区域 |
用途地域 | 2種中高 |
| 建ぺい/容積率 | 60% / 200% | 土地国土法 | |
| 許可番号 | 建築基準法 | ||
| 法令制限 | |||
| 小学区 | 恒久小学校 徒歩25分 (約1990m) | 中学区 | 大淀中学校 徒歩13分 (約1030m) |
| 現況 | 空 | 引渡 | 相談 |
| その他費用 | |||
| 備考 | |||
| 物件番号 | 4345672 | 取引態様 | 媒介 |
取扱店舗情報
| 電話番号 | 0985-86-7336 |
|---|---|
| 所在地 | 〒889-1607 宮崎県宮崎市清武町加納3丁目16 メモワールII101号室 |
| 営業時間 | 9:00~20:00 |
| 定休日 | 不定休 |
| 宅建免許番号 | 宮崎県知事(1)第4995号 |
| アクセス | 店舗への地図はこちら |

来店ご予約
宮崎県宮崎市で価格が似ている物件はこちら
- 宮崎県
マイページ物件数 - 1,636件
最近見た物件
-
-

-
- 新築一戸建て
- 3,392万円
-
福山市引野町4丁目
-
JR山陽本線東福山
-
-
-

-
- 中古マンション
- 2,580万円
-
松戸市五香西2丁目
-
京成電鉄松戸線五香
-
-
-

-
- 新築一戸建て
- 3,890万円
-
名古屋市緑区小坂2丁目
-
名古屋市桜通線徳重
-
宮崎県中古一戸建て新着物件
-
-

-
- 中古一戸建て
- 550万円
-
宮崎市大字熊野
-
JR日南線木花駅
-
-
-

-
- 中古一戸建て
- 590万円
-
宮崎市佐土原町西上那珂
-
JR日豊本線佐土原駅
-
-
-

-
- 中古一戸建て
- 780万円
-
宮崎市月見ケ丘3丁目
-
児童公園下
-
-
-

-
- 中古一戸建て
- 880万円
-
日南市吾田東5丁目
-
JR日南線日南駅
-
-
-

-
- 中古一戸建て
- 3,780万円
-
宮崎市新別府町前浜
-
JR日豊本線宮崎駅
-
-
-

-
- 中古一戸建て
- 1,500万円
-
宮崎市佐土原町上田島
-
佐土原中前
-
-
-

-
- 中古一戸建て
- 1,350万円
-
宮崎市丸山1丁目
-
JR日豊本線宮崎神宮駅
-
- お近くの店舗を探す
-
おすすめ物件
-
-

-
- 中古一戸建て
- 1,350万円
-
宮崎市大塚町小原田
-
JR日豊本線宮崎
-
-
-

-
- 中古一戸建て
- 1,990万円
-
宮崎市吉村町曽師前
-
JR日豊本線宮崎
-
-
-

-
- 中古一戸建て
- 1,600万円
-
日南市時任町
-
JR日南線飫肥
-
-
-

-
- 中古一戸建て
- 650万円
-
宮崎市佐土原町東上那珂
-
野久尾バス停
-
-
-

-
- 中古一戸建て
- 2,000万円
-
宮崎市江南2丁目
-
JR日豊本線南宮崎
-
-
-

-
- 中古一戸建て
- 3,600万円
-
宮崎市高岡町飯田3丁目
-
JR日豊本線宮崎
-
-
-

-
- 中古一戸建て
- 1,350万円
-
宮崎市清武町今泉丙
-
JR日豊本線清武
-
-
-

-
- 中古一戸建て
- 2,300万円
-
宮崎市学園木花台南3丁目
-
JR日南線木花
-
-
-

-
- 中古一戸建て
- 1,100万円
-
宮崎市大字小松
-
JR日豊本線宮崎神宮
-
-
-

-
- 中古一戸建て
- 700万円
-
日南市南郷町中村乙
-
JR日南線南郷
-























