高岡市羽広の中古戸建
掲載情報更新日:2025年11月02日 次回更新予定日:2025年11月16日
- 3,600万円
-
- 借入ご希望金額
万円 - 借入期間
年 - 借入金利
% - 月々のお支払い金額
円
- 借入ご希望金額
※ 月々のお支払例は目安の試算となりますので、実際の金額とは異なる場合がございます。詳しくは店舗までお問合わせください。
- 高岡市羽広
-
あいの風とやま鉄道『高岡やぶなみ』 徒歩3分 (約210m)
高岡市羽広一戸建て | 物件情報
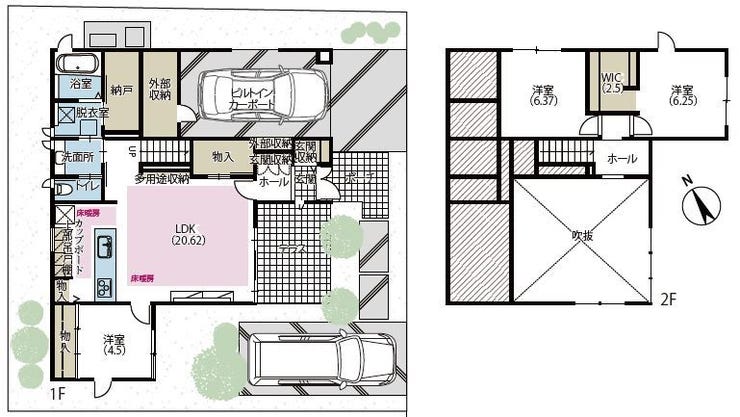
収納も、家事動線も、家族の快適も叶える住まい
玄関収納・外部収納・多用途収納・WICと、多彩な収納を完備。荷物が多いご家族も安心。
20帖超えの広々LDK+吹抜け設計で、明るさと開放感を実現。家族が自然と集まる空間です。
ビルトインカーポートを完備。車を大切にしたい方に最適。
物件の設備
- 電気
- オール電化
- 上水道
- 下水道
- 側溝
- 食器洗浄乾燥機
- IHクッキングヒータ
- システムキッチン
- バス1坪以上
- 追焚機能
- 浴室暖房
- 浴室乾燥機
- 温水洗浄便座
- タンクレストイレ
- 床暖房
- キッチン床暖房
- エアコン
- エアコン2基
- 照明器具
- 間接照明
- シーリングファン
- EV車充電設備
- ディンプルキー
- ダブルロックキー
- モニタ付インターホン
- 火災警報器/報知機
- 複層ガラス
- 全室フローリング
- 24時間換気システム
- ウォークインクローゼット
- 床下収納
- シューズインクローク
- 庭
物件の特徴
- 前道6m以上
- 2階建
- バリアフリー
- 長期優良住宅
- 建築確認完了検査済証
- BELS/省エネ基準適合
- フラット35Sに対応
物件詳細情報
| 価格 | 3,600万円 | 間取り | 3LDK |
|---|---|---|---|
| 物件種別 | 中古一戸建て | ||
| 所在地 | 富山県高岡市羽広 | ||
| アクセス |
|
||
| 建物面積 | 公121.99㎡ | 駐車場 | あり 普通:2台 |
| 築年月 | 2022年(令和4年)01月築 | ||
| 建物構造 | 木造 2階建 | 工法 | |
| 主要採光 | バルコニー | ||
| 保証・評価 | 長期優良住宅認定通知書 |
||
| リフォーム | |||
| 土地面積 | 公203.23㎡(61.47坪) | 接道 | 南東側(公道)幅 約6.0m |
| 私道 | セットバック | ||
| 地目 | 宅地 | 地勢 | 平坦 |
| 権利 | 所有権 |
||
| 都市計画 | 市街化区域 |
用途地域 | 1種住居 |
| 建ぺい/容積率 | 60% / 200% | 土地国土法 | |
| 許可番号 | 建築基準法 | ||
| 法令制限 | |||
| 小学区 | 木津小学校 徒歩10分 (約798m) | 中学区 | 南星中学校 徒歩15分 (約1131m) |
| 現況 | 空 | 引渡 | 相談 |
| その他費用 | |||
| 周辺環境 | 高岡やぶなみ 徒歩3分 (約210m) 高岡市立木津小学校 徒歩11分 (約810m) ローソン 高岡羽広店 徒歩13分 (約1010m) つくし保育園 徒歩11分 (約830m) V・drug 高岡羽広店 徒歩14分 (約1050m) 高岡市立南星中学校 徒歩15分 (約1130m) クスリのアオキ 木津店 徒歩15分 (約1190m) |
||
| 備考 | |||
| 物件番号 | 4351944 | 取引態様 | 媒介 |
取扱店舗情報
ハウスドゥ 高岡野村 株式会社ことぶき不動産 店舗詳細ページへ
| 電話番号 | 0766-23-2030 |
|---|---|
| 所在地 | 〒933-0014 富山県高岡市野村1536番地17 アーバンビル1階B号室 |
| 営業時間 | 10:00~18:00 |
| 定休日 | 水曜日・祝日 |
| 宅建免許番号 | 富山県知事(1)第3303号 |
| アクセス | 店舗への地図はこちら |

来店ご予約
- 富山県
マイページ物件数 - 872件
最近見た物件
-
-

-
- 中古一戸建て
- 980万円
-
滑川市坪川新
-
あいの風とやま鉄道滑川
-
富山県中古一戸建て新着物件
- お近くの店舗を探す
-
おすすめ物件
-
-

-
- 中古一戸建て
- 1,500万円
-
射水市倉垣小杉
-
あいの風とやま鉄道呉羽
-
-
-

-
- 中古一戸建て
- 50万円
-
射水市本町3丁目
-
万葉線第一イン新湊クロスベ
-
-
-

-
- 中古一戸建て
- 2,990万円
-
富山市山室
-
富山地鉄不二越上滝線大泉
-
-
-

-
- 中古一戸建て
- 180万円
-
射水市中央町
-
万葉線新町口
-
-
-

-
- 中古一戸建て
- 1,680万円
-
射水市東太閤山3丁目
-
あいの風とやま鉄道小杉
-
-
-

-
- 中古一戸建て
- 50万円
-
射水市港町
-
万葉線第一イン新湊クロスベ
-
-
-

-
- 中古一戸建て
- 1,980万円
-
富山市粟島町3丁目
-
富山地鉄富山港線粟島(大阪屋前)
-
-
-

-
- 中古一戸建て
- 350万円
-
射水市八幡町3丁目
-
万葉線中新湊
-
-
-

-
- 中古一戸建て
- 3,150万円
-
富山市有沢
-
富山地鉄富山市内線トヨタGスクエア五福
-
-
-

-
- 中古一戸建て
- 120万円
-
射水市港町
-
万葉線第一イン新湊クロスベ
-















実際にご覧いただくと、写真以上に魅力を感じていただけると思います。お気軽にお問い合わせください!