宮崎市瀬頭1丁目の中古戸建
掲載情報更新日:2026年03月24日 次回更新予定日:2026年04月07日
- 2,480万円
-
- 借入ご希望金額
万円 - 借入期間
年 - 借入金利
% - 月々のお支払い金額
円
- 借入ご希望金額
※ 月々のお支払例は目安の試算となりますので、実際の金額とは異なる場合がございます。詳しくは店舗までお問合わせください。
- 宮崎市瀬頭1丁目
-
JR日豊本線『宮崎』 徒歩15分 (約1190m)
JR日豊本線『南宮崎』 徒歩20分 (約1590m)
JR日豊本線『宮崎神宮』 徒歩49分 (約3900m)
宮崎市瀬頭1丁目一戸建て | 物件情報
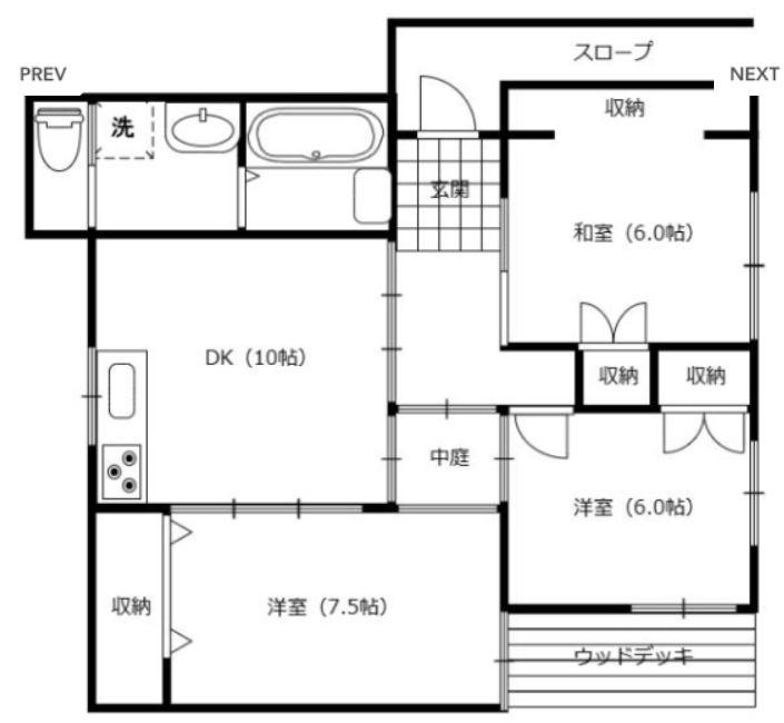
\平屋/《いつでもご案内可能です♪》お気軽にお問い合わせください♪
▼オススメポイント
◎中庭あり
◎落ち着く和室♪
◎全居室収納有りで便利
▼立地
◎宮崎小学校…徒歩8分(610m)
◎宮崎中学校…徒歩7分(560m)
◎セブンイレブン宮崎吾妻町店徒歩5分(390m)
◎アミュプラザみやざき…徒歩14分(1090m)
◆◇当店について◇◆
〇不動産売買仲介専門FCで
店舗数第1位のハウスドゥ加盟店です
安心してご相談ください
■弊社サービスご案内
〇資金計画の無料相談
〇ハウスメーカー・工務店のご紹介
〇オプション、リフォーム、太陽光発電
のお見積もりから施工まで
〇保険の加入や引越しの段取り
物件の設備
- 上水道
- 公営水道
- 公共下水
- 都市ガス
- 和室
- フローリング
- シューズボックス
- ウッドデッキ
物件の特徴
- 駅まで平坦
- 市街地が近い
- 都市近郊
- 平坦地
物件詳細情報
| 価格 | 2,480万円 | 間取り | 3DK |
|---|---|---|---|
| 物件種別 | 中古一戸建て | ||
| 所在地 | 宮崎県宮崎市瀬頭1丁目 | ||
| アクセス |
|
||
| 建物面積 | 72.29㎡ | 駐車場 | あり 普通:3台 |
| 築年月 | 2009年(平成21年)11月築 | ||
| 建物構造 | 木造 1階建 | 工法 | |
| 主要採光 | バルコニー | ||
| 保証・評価 | |||
| リフォーム | |||
| 土地面積 | 175.87㎡(53.20坪) | 接道 | 南東側(公道)幅 約3.5m 北側(公道)幅 約5.0m |
| 私道 | セットバック | ||
| 地目 | 宅地 | 地勢 | |
| 権利 | 所有権 |
||
| 都市計画 | 市街化区域 |
用途地域 | 2種住居 |
| 建ぺい/容積率 | 60% / 200% | 土地国土法 | |
| 許可番号 | 建築基準法 | ||
| 法令制限 | |||
| 小学区 | 宮崎小学校 徒歩8分 (約610m) | 中学区 | 宮崎中学校 徒歩7分 (約560m) |
| 現況 | 空 | 引渡 | 相談 |
| その他費用 | |||
| 周辺環境 | セブンイレブン宮崎吾妻町店 徒歩5分 (約390m) ローソン永楽町店 徒歩7分 (約510m) 宮崎小学校 徒歩8分 (約610m) 宮崎中学校 徒歩7分 (約560m) 宮崎学園高等学校 徒歩14分 (約1080m) みどり幼稚園 徒歩15分 (約1140m) アミュプラザみやざき 徒歩14分 (約1090m) ファミリーマート宮崎学園前店 徒歩15分 (約1200m) 宮崎駅 徒歩15分 (約1190m) ほっかほっか亭昭和店 徒歩14分 (約1080m) |
||
| 備考 | |||
| 物件番号 | 4354844 | 取引態様 | 媒介 |
取扱店舗情報
| 電話番号 | 0985-66-0753 |
|---|---|
| 所在地 | 〒880-0872 宮崎県宮崎市永楽町17 |
| 営業時間 | 9:00~18:00 |
| 定休日 | 水曜日、年末年始 |
| 宅建免許番号 | 宮崎県知事(1)第5078号 |
| アクセス | 店舗への地図はこちら |

来店ご予約
宮崎県宮崎市で価格が似ている物件はこちら
- 宮崎県
マイページ物件数 - 1,518件
最近見た物件
宮崎県中古一戸建て新着物件
-
-

-
- 中古一戸建て
- 2,900万円
-
宮崎市佐土原町下田島
-
JR日豊本線佐土原駅
-
-
-

-
- 中古一戸建て
- 1,590万円
-
宮崎市新別府町麓
-
JR日豊本線宮崎駅
-
-
-

-
- 中古一戸建て
- 1,300万円
-
宮崎市大字島之内
-
JR日豊本線日向住吉駅
-
-
-

-
- 中古一戸建て
- 2,780万円
-
宮崎市清武町池田台北
-
JR日豊本線加納駅
-
-
-

-
- 中古一戸建て
- 2,700万円
-
宮崎市出来島町
-
JR日豊本線宮崎駅
-
-
-

-
- 中古一戸建て
- 1,399万円
-
宮崎市田野町甲
-
JR日豊本線日向沓掛駅
-
-
-

-
- 中古一戸建て
- 2,780万円
-
宮崎市清武町池田台北
-
JR日豊本線加納駅
-
- お近くの店舗を探す
-
おすすめ物件
-
-

-
- 中古一戸建て
- 2,300万円
-
宮崎市学園木花台南3丁目
-
JR日南線木花
-
-
-

-
- 中古一戸建て
- 2,000万円
-
宮崎市江南2丁目
-
JR日豊本線南宮崎
-
-
-

-
- 中古一戸建て
- 1,350万円
-
宮崎市大塚町小原田
-
JR日豊本線宮崎
-
-
-

-
- 中古一戸建て
- 2,610万円
-
宮崎市大字恒久
-
福祉センター前
-
-
-

-
- 中古一戸建て
- 1,150万円
-
宮崎市大字本郷北方
-
JR日南線田吉
-
-
-

-
- 中古一戸建て
- 1,250万円
-
宮崎市清武町今泉丙
-
JR日豊本線清武
-
-
-

-
- 中古一戸建て
- 3,600万円
-
宮崎市高岡町飯田3丁目
-
JR日豊本線宮崎
-
-
-

-
- 中古一戸建て
- 1,600万円
-
日南市時任町
-
JR日南線飫肥
-
-
-

-
- 中古一戸建て
- 1,890万円
-
宮崎市吉村町曽師前
-
JR日豊本線宮崎
-
-
-

-
- 中古一戸建て
- 700万円
-
日南市南郷町中村乙
-
JR日南線南郷
-




















担当エージェント:福盛 祐弥
不動産のご相談なら古田敦也さんのCMでおなじみの全国700店舗展開中のハウスドゥ宮崎中学校前へ!当店に相談してよかった!と大満足いただけるようにサポートいたします♪安心してご相談ください♪