宮崎市瀬頭1丁目の中古戸建
NEW 01.06掲載情報更新日:2026年01月06日 次回更新予定日:2026年01月20日
- 2,480万円
-
- 借入ご希望金額
万円 - 借入期間
年 - 借入金利
% - 月々のお支払い金額
円
- 借入ご希望金額
※ 月々のお支払例は目安の試算となりますので、実際の金額とは異なる場合がございます。詳しくは店舗までお問合わせください。
- 宮崎市瀬頭1丁目
-
JR日豊本線『宮崎』 徒歩15分 (約1180m)
JR日豊本線『南宮崎』 徒歩20分 (約1590m)
JR日南線『田吉』 徒歩47分 (約3720m)
宮崎交通『宮崎温泉たまゆらの湯』 徒歩2分 (約160m)
宮崎市瀬頭1丁目一戸建て | 物件情報
宮崎駅徒歩圏内。瀬頭1丁目に立地する平家の中古戸建。
※マウスを乗せると画像が切り替わります。
◆ 平家建ての住まい
階段の上り下りがなく、生活動線がシンプルで日常生活に配慮された間取りです。
◆ 宮崎駅まで徒歩圏内
JR宮崎駅まで徒歩約15分で、通勤やお出かけの際にも利用しやすい立地です。
◆ 小・中学校が近い環境
宮崎小学校・宮崎中学校ともに徒歩7分圏内で、通学距離を抑えたいご家庭にも向いています。
◆ 生活施設が身近に揃う立地
バス停や商業施設が周辺にあり、日々の生活に便利な住環境です。
◆ リフォームのご相談が可能
間取り変更や設備更新など、住まい方に合わせたご相談を承ります。
物件の設備
- 公営水道
- 下水道
- 都市ガス
- バス
- 浴室に窓
- トイレ
- 室内洗濯機置場
- 和室
- 全居室6畳以上
- ウッドデッキ
物件の特徴
- 駅まで平坦
- 市街地が近い
- 都市近郊
- 陽当り良好
- 平坦地
- 即入居可
物件詳細情報
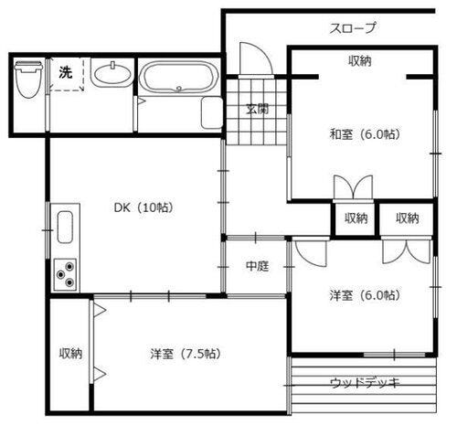
| 価格 | 2,480万円 | 間取り | 3DK |
|---|---|---|---|
| 物件種別 | 中古一戸建て | ||
| 所在地 | 宮崎県宮崎市瀬頭1丁目 | ||
| アクセス |
|
||
| 建物面積 | 公72.29㎡ | 駐車場 | あり 普通:3台 |
| 築年月 | 2009年(平成21年)11月築 | ||
| 建物構造 | 木造 1階建 | 工法 | |
| 主要採光 | バルコニー | ||
| 保証・評価 | |||
| リフォーム | |||
| 土地面積 | 公175.87㎡(53.20坪) | 接道 | 北側(私道)幅 約5.0m 南東側(私道)幅 約4.0m |
| 私道 | 別:公163.91㎡(持分 1/4) | セットバック | |
| 地目 | 宅地 | 地勢 | 平坦 |
| 権利 | 所有権 |
||
| 都市計画 | 市街化区域 |
用途地域 | 2種住居 |
| 建ぺい/容積率 | 60% / 200% | 土地国土法 | |
| 許可番号 | 建築基準法 | ||
| 法令制限 | |||
| 小学区 | 宮崎小学校 徒歩7分 (約530m) | 中学区 | 宮崎中学校 徒歩7分 (約560m) |
| 現況 | 空 | 引渡 | 即 |
| その他費用 | |||
| 周辺環境 | ながの屋 瀬頭店 徒歩5分 (約400m) セブンイレブン 宮崎吾妻町 徒歩5分 (約390m) ローソン 宮崎永楽町店 徒歩7分 (約500m) 宮崎小学校 徒歩7分 (約530m) 宮崎中学校 徒歩7分 (約560m) セブンイレブン 宮崎旭1丁目店 徒歩8分 (約600m) 宮崎太陽銀行 堀川町支店 徒歩8分 (約580m) ファミリーマート 橘通東一丁目店 徒歩8分 (約600m) ローソン 宮崎老松一丁目店 徒歩9分 (約700m) WASHハウス 堀川店 徒歩10分 (約750m) |
||
| 備考 | 瀬頭に平家の中古物件です。リフォームご相談承ります♪ | ||
| 物件番号 | 4544200 | 取引態様 | 媒介 |
取扱店舗情報
| 電話番号 | 0985-86-7336 |
|---|---|
| 所在地 | 〒889-1607 宮崎県宮崎市清武町加納3丁目16 メモワールII101号室 |
| 営業時間 | 9:00~20:00 |
| 定休日 | 不定休 |
| 宅建免許番号 | 宮崎県知事(1)第4995号 |
| アクセス | 店舗への地図はこちら |

来店ご予約
宮崎県宮崎市で価格が似ている物件はこちら
![]()
![]()
-
- 中古一戸建て 2023.06.17
-
-
- 2,380万円
-
宮崎市佐土原町下那珂
-
JR日豊本線「佐土原駅」まで徒歩15分
- 5DK
-
-
- 中古一戸建て 2024.05.31
-
-
- 2,380万円
-
宮崎市生目台西5丁目
-
JR日豊本線「南宮崎駅」まで徒歩73分
- 4LDK
-
-
- 中古一戸建て 2024.06.03
-
-
- 2,550万円
-
宮崎市太田2丁目
-
JR日豊本線「南宮崎駅」まで徒歩10分
- 3DK
-
-
- 中古一戸建て 2024.07.04
-
-
- 2,399万円
-
宮崎市大字恒久
-
JR日豊本線「南宮崎駅」まで徒歩15分
- 3LDK
-
-
- 中古一戸建て 2024.07.04
-
-
- 2,399万円
-
宮崎市大字恒久
-
JR日豊本線「南宮崎駅」まで徒歩15分
- 3LDK
-
-
- 中古一戸建て 2024.07.05
-
-
- 2,500万円
-
宮崎市大字赤江
-
JR日南線「田吉駅」まで徒歩20分
- 3LDK
-
-
- 中古一戸建て 2024.07.19
-
-
- 2,480万円
-
宮崎市大字赤江
-
JR日南線「田吉駅」まで徒歩30分
- 4LDK+S
-
-
- 中古一戸建て 2024.08.01
-
-
- 2,530万円
-
宮崎市清武町あさひ1丁目
-
JR日豊本線「加納駅」まで徒歩11分
- 4LDK
-
-
- 中古一戸建て 2024.08.16
-
-
- 2,530万円
-
宮崎市清武町あさひ1丁目
-
JR日豊本線「加納駅」まで徒歩11分
- 4LDK
-
-
- 中古一戸建て 2024.10.01
-
-
- 2,380万円
-
宮崎市大字熊野
-
JR日南線「木花駅」まで徒歩6分
- 3LDK
-
-
- 中古一戸建て 2024.11.13
-
-
- 2,399万円
-
宮崎市大字恒久
-
農高前まで徒歩4分
- 3LDK
-
-
- 中古一戸建て 2024.11.13
-
-
- 2,399万円
-
宮崎市大字恒久
-
農高前まで徒歩4分
- 3LDK
-
-
- 中古一戸建て 2024.12.21
-
-
- 2,480万円
-
宮崎市谷川2丁目
-
JR日豊本線「南宮崎駅」まで徒歩20分
- 6LDK
-
-
- 中古一戸建て 2025.01.16
-
-
- 2,400万円
-
宮崎市大塚台東2丁目
-
市営住宅前まで徒歩10分
- 4LDK
-
-
- 中古一戸建て 2025.01.26
-
-
- 2,410万円
-
宮崎市大字本郷南方
-
JR日南線「南方駅」まで徒歩5分
- 3LDK
-
-
- 中古一戸建て 2025.01.27
-
-
- 2,400万円
-
宮崎市清武町加納乙
-
JR日豊本線「加納駅」まで徒歩18分
- 4DK
-
-
- 中古一戸建て 2025.01.28
-
-
- 2,550万円
-
宮崎市薫る坂1丁目
-
JR日豊本線「南宮崎駅」まで徒歩30分
- 4LDK
-
-
- 中古一戸建て 2025.02.02
-
-
- 2,450万円
-
宮崎市阿波岐原町火切塚
-
JR日豊本線「宮崎神宮駅」まで徒歩32分
- 3LDK+S
-
-
- 中古一戸建て 2025.02.12
-
-
- 2,380万円
-
宮崎市清武町池田台
-
第三池田台まで徒歩3分
- 4LDK
-
-
- 中古一戸建て 2025.04.18
-
-
- 2,500万円
-
宮崎市小松台東3丁目
-
JR日豊本線「宮崎神宮駅」まで徒歩56分
- 3LDK+S
-
-
- 中古一戸建て 2025.04.21
-
-
- 2,380万円
-
宮崎市恒久6丁目
-
JR日南線「田吉駅」まで徒歩24分
- 4LDK+S
-
-
- 中古一戸建て 2025.06.16
-
-
- 2,580万円
-
宮崎市丸山1丁目
-
JR日豊本線「宮崎駅」まで徒歩22分
- 4LDK
-
-
- 中古一戸建て 2025.07.11
-
-
- 2,499万円
-
宮崎市吉村町中原
-
JR日豊本線「宮崎駅」まで徒歩20分
- 3LDK
-
-
- 中古一戸建て 2025.07.28
-
-
- 2,480万円
-
宮崎市瀬頭1丁目
-
JR日豊本線「宮崎駅」まで徒歩15分
- 3DK
-
-
- 中古一戸建て 2025.08.26
-
-
- 2,480万円
-
宮崎市大字赤江
-
JR日豊本線「南宮崎駅」まで徒歩47分
- 5LDK
-
-
- 中古一戸建て 2025.08.28
-
-
- 2,480万円
-
宮崎市生目台東2丁目
-
生目台東2丁目まで徒歩3分
- 3LDK+S
-
-
- 中古一戸建て 2025.08.28
-
-
- 2,480万円
-
宮崎市月見ケ丘6丁目
-
月見ヶ丘6丁目まで徒歩2分
- 4LDK
-
-
- 中古一戸建て 2025.09.01
-
-
- 2,499万円
-
宮崎市吉村町中原
-
JR日豊本線「宮崎駅」まで徒歩21分
- 3LDK
-
-
- 中古一戸建て 2025.09.10
-
-
- 2,499万円
-
宮崎市吉村町中原
-
大王町まで徒歩5分
- 3LDK
-
-
- 中古一戸建て 2025.09.11
-
-
- 2,380万円
-
宮崎市吉村町ハシテ
-
JR日豊本線「宮崎駅」まで徒歩24分
- 4LDK
-
-
- 中古一戸建て 2025.09.14
-
-
- 2,480万円
-
宮崎市生目台西4丁目
-
JR日豊本線「南宮崎駅」まで徒歩69分
- 3LDK+S
-
-
- 中古一戸建て 2025.09.16
-
-
- 2,480万円
-
宮崎市大塚台西3丁目
-
JR日豊本線「南宮崎駅」まで徒歩62分
- 6LDK
-
-
- 中古一戸建て 2025.09.19
-
-
- 2,398万円
-
宮崎市生目台東4丁目
-
JR日豊本線「南宮崎駅」まで徒歩60分
- 4LDK
-
-
- 中古一戸建て 2025.09.19
-
-
- 2,380万円
-
宮崎市吉村町ハシテ
-
JR日豊本線「宮崎駅」まで徒歩24分
- 4LDK
-
-
- 中古一戸建て 2025.09.22
-
-
- 2,550万円
-
宮崎市生目台西4丁目
-
JR日豊本線「宮崎駅」まで徒歩81分
- 4LDK
-
-
- 中古一戸建て 2025.10.03
-
-
- 2,480万円
-
宮崎市瀬頭1丁目
-
JR日豊本線「宮崎駅」まで徒歩14分
- 3DK
-
-
- 中古一戸建て 2025.10.19
-
-
- 2,480万円
-
宮崎市吉村町寺ノ下
-
JR日豊本線「宮崎駅」まで徒歩24分
- 3LDK
-
-
- 中古一戸建て 2025.10.19
-
-
- 2,499万円
-
宮崎市吉村町浮之城
-
JR日豊本線「宮崎駅」まで徒歩28分
- 4DK+S
-
-
- 中古一戸建て 2025.10.24
-
-
- 2,398万円
-
宮崎市生目台東4丁目
-
生目台センター前まで徒歩5分
- 4LDK
-
-
- 中古一戸建て 2025.11.13
-
-
- 2,480万円
-
宮崎市小松台北町
-
JR日豊本線「宮崎神宮駅」まで徒歩52分
- 5LDK+S
-
-
- 中古一戸建て 2025.11.21
-
-
- 2,480万円
-
宮崎市生目台東4丁目
-
生目台東4丁目まで徒歩5分
- 4LDK
-
-
- 中古一戸建て 2025.12.08
-
-
- 2,580万円
-
宮崎市東宮1丁目
-
JR日南線「南方駅」まで徒歩19分
- 4LDK
-
-
-
中古一戸建て
2025.12.28
-
-
- 2,500万円
-
宮崎市大島町萩崎
-
JR日豊本線「宮崎神宮駅」まで徒歩27分
- 4LDK
-
-
中古一戸建て
2025.12.28
-
-
中古一戸建て
2026.01.08
-
-
- 2,499万円
-
宮崎市吉村町浮之城
-
JR日豊本線「宮崎神宮駅」まで徒歩25分
- 4DK+S
-
-
中古一戸建て
2026.01.08
-
-
中古一戸建て
2026.01.13
-
-
- 2,500万円
-
宮崎市佐土原町上田島
-
西佐土原まで徒歩1分
- 8LDK
-
-
中古一戸建て
2026.01.13
-
-
中古一戸建て
2026.01.13
-
-
- 2,420万円
-
宮崎市東宮1丁目
-
JR日南線「南方駅」まで徒歩22分
- 4LDK
-
-
中古一戸建て
2026.01.13
- 宮崎県
マイページ物件数 - 1,628件
最近見た物件
-
-

-
- 中古一戸建て
- 1,599万円
-
宇都宮市宮原5丁目
-
東武宇都宮線南宇都宮
-
宮崎県中古一戸建て新着物件
-
-

-
- 中古一戸建て
- 130万円
-
日南市星倉1丁目
-
JR日南線飫肥駅
-
-
-

-
- 中古一戸建て
- 530万円
-
日南市大字西弁分
-
JR日南線日南駅
-
-
-

-
- 中古一戸建て
- 850万円
-
日南市西弁分5丁目
-
JR日南線日南駅
-
-
-

-
- 中古一戸建て
- 547.28万円
-
日南市吾田東11丁目
-
JR日南線日南駅
-
-
-

-
- 中古一戸建て
- 1,200万円
-
日南市大字星倉
-
JR日南線飫肥駅
-
-
-

-
- 中古一戸建て
- 2,420万円
-
宮崎市東宮1丁目
-
JR日南線南方駅
-
-
-

-
- 中古一戸建て
- 2,500万円
-
宮崎市佐土原町上田島
-
西佐土原
-
- お近くの店舗を探す
-
おすすめ物件
-
-

-
- 中古一戸建て
- 2,900万円
-
宮崎市田野町乙
-
JR日豊本線田野
-
-
-

-
- 中古一戸建て
- 1,460万円
-
宮崎市堀川町
-
JR日豊本線宮崎
-
-
-

-
- 中古一戸建て
- 280万円
-
宮崎市佐土原町東上那珂
-
野久尾バス停
-
-
-

-
- 中古一戸建て
- 2,000万円
-
宮崎市江南2丁目
-
JR日豊本線南宮崎
-
-
-

-
- 中古一戸建て
- 1,600万円
-
日南市時任町
-
JR日南線飫肥
-
-
-

-
- 中古一戸建て
- 890万円
-
宮崎市永楽町
-
JR日豊本線宮崎
-
-
-

-
- 中古一戸建て
- 690万円
-
宮崎市東宮1丁目
-
JR日南線南方
-
-
-

-
- 中古一戸建て
- 3,600万円
-
宮崎市高岡町飯田3丁目
-
JR日豊本線宮崎
-
-
-

-
- 中古一戸建て
- 1,350万円
-
宮崎市大塚町小原田
-
JR日豊本線宮崎
-
-
-

-
- 中古一戸建て
- 1,990万円
-
宮崎市吉村町曽師前
-
JR日豊本線宮崎
-

















担当エージェント:小玉 賢太
瀬頭1丁目に位置する平家の中古戸建です。
宮崎駅まで徒歩圏内で、通勤や通学にも利用しやすい立地です。
小学校・中学校が近く、生活施設も身近に揃っています。
現況空家のため、内覧やリフォームのご相談もお気軽にお申し付けください。