江戸川区興宮町 中古戸建
掲載情報更新日:2025年09月28日 次回更新予定日:2025年10月12日
- 4,980万円
-
- 借入ご希望金額
万円 - 借入期間
年 - 借入金利
% - 月々のお支払い金額
円
- 借入ご希望金額
※ 月々のお支払例は目安の試算となりますので、実際の金額とは異なる場合がございます。詳しくは店舗までお問合わせください。
- 江戸川区興宮町
-
JR総武・中央緩行線『小岩』 徒歩17分 (約1360m)
JR総武本線『新小岩』 徒歩30分 (約2400m)
都営新宿線『一之江』 バス乗車12分 上一色中学校前 停 徒歩7分 (約560m)
江戸川区興宮町 中古戸建一戸建て | 物件情報
★全部屋6帖以上のゆとりある住空間 ★2025年9月末リフォーム完成予定 ★買物便利な住環境
■ご案内方法
ご自宅へお迎え・最寄り駅等でお待ち合わせ、弊社へのご来社など、ご相談下さい。
ご希望があれば周辺環境、お客様の希望に合わせた物件などもご案内を致します。
■ご予約方法
事前に鍵の手配が必要な場合がありますので、お早目にご連絡をいただけると、ご案内がスムーズです。
■その他、各種ご相談もお気軽にどうぞ!
◎LIFE PLAN DOによるライフプランのシミュレーション
・漠然としたキャッシュフローをグラフに
・ライフプランに合った資金計画 生命保険の見直しetc...
◎住宅ローンのご相談
・繰り上げ返済は「いつ」「どのくらい」するが効果的?
・どこの銀行で借りるとお得なの?・適切な借入額は?etc...
■キッズスペースもご用意しております
弊社にはお子様が退屈しないよう、DVD、おもちゃ、絵本、ぬりえなどキッズスペースも充実させております。
■お車はお近くのパーキングへ駐車して下さい。
ご対応ご案内の後に、弊社で駐車代金をお支払い致します。
お気軽にお申し付けください。
物件の設備
- 電気
- 公営水道
- 下水道
- 都市ガス
- 給湯
- カウンターキッチン
- バス
- 浴室に窓
- トイレ2箇所
- 室内洗濯機置場
- 床暖房
- 全居室6畳以上
- 納戸
- 全居室収納
物件の特徴
- 閑静な住宅街
- 2階建
物件詳細情報
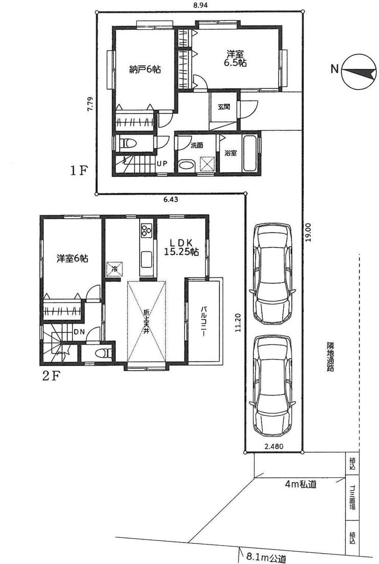
価格 | 4,980万円 | 間取り | 2LDK+S |
---|---|---|---|
物件種別 | 中古一戸建て | ||
所在地 | 東京都江戸川区興宮町 | ||
アクセス |
|
||
建物面積 | 公84.46㎡ | 駐車場 | あり |
築年月 | 2007年(平成19年)06月築 | ||
建物構造 | 木造 2階建 | 工法 | |
主要採光 | バルコニー | ||
保証・評価 | |||
リフォーム | |||
土地面積 | 97.73㎡(29.56坪) | 接道 | 西側(私道)幅 約4.0m 間口 約2.48m |
私道 | セットバック | ||
地目 | 宅地 | 地勢 | |
権利 | 所有権 |
||
都市計画 | 市街化区域 |
用途地域 | 1種中高 |
建ぺい/容積率 | 60% / 150% | 土地国土法 | |
許可番号 | 建築基準法 | ||
法令制限 | |||
小学区 | 上一色南小学校 徒歩10分 (約750m) | 中学区 | 上一色中学校 徒歩7分 (約500m) |
現況 | 空 | 引渡 | 相談 |
その他費用 | |||
周辺環境 | まいばすけっと興宮町 徒歩2分 (約100m) セブンイレブン 興宮町店 徒歩4分 (約300m) 上一色中学校 徒歩7分 (約560m) 上一色南小学校 徒歩12分 (約890m) サミットストア 本一色店 徒歩9分 (約710m) |
||
備考 | ★全部屋6帖以上のゆとりある住空間 ★2025年9月末リフォーム完成予定 ★買物便利な住環境 |
||
物件番号 | 4362723 | 取引態様 | 媒介 |
取扱店舗情報
ハウスドゥ 小岩駅前 株式会社ハローホーム 店舗詳細ページへ
電話番号 | 03-5612-8648 |
---|---|
所在地 | 〒133-0056 東京都江戸川区南小岩7-26-20 1F |
営業時間 | 10:30-19:00 |
定休日 | 水曜日、第一・第三・第五火曜日 |
宅建免許番号 | 東京都知事(5)第83389号 |
アクセス | 店舗への地図はこちら |
来店ご予約
東京都江戸川区で価格が似ている物件はこちら
- 東京都
マイページ物件数 - 5,818件
最近見た物件
-
-
-
- 中古一戸建て
- 480万円
-
尾道市新高山2丁目
-
JR山陽本線尾道
-
東京都中古一戸建て新着物件
-
-
-
- 中古一戸建て
- 2,797万円
-
八王子市絹ケ丘1丁目
-
京王線長沼駅
-
-
-
-
- 中古一戸建て
- 1,980万円
-
江戸川区江戸川2丁目
-
都営新宿線瑞江駅
-
-
-
-
- 中古一戸建て
- 5,680万円
-
府中市四谷4丁目
-
JR南武線谷保駅
-
-
-
-
- 中古一戸建て
- 3,590万円
-
小平市小川町1丁目
-
西武国分寺線鷹の台駅
-
-
-
-
- 中古一戸建て
- 1億4,980万円
-
世田谷区奥沢2丁目
-
東急大井町線緑が丘駅
-
-
-
-
- 中古一戸建て
- 8,597万円
-
世田谷区祖師谷4丁目
-
小田急小田原線祖師ヶ谷大蔵駅
-
-
-
-
- 中古一戸建て
- 4,280万円
-
調布市国領町6丁目
-
京王線布田駅
-
- お近くの店舗を探す
-
おすすめ物件
-
-
-
- 中古一戸建て
- 1,780万円
-
足立区千住大川町
-
東京メトロ千代田線北千住
-
-
-
-
- 中古一戸建て
- 4,480万円
-
足立区梅田3丁目
-
東武伊勢崎・大師線梅島
-
-
-
-
- 中古一戸建て
- 4,280万円
-
青梅市滝ノ上町
-
JR青梅線青梅
-
-
-
-
- 中古一戸建て
- 3,950万円
-
足立区江北3丁目
-
日暮里舎人ライナー江北
-
-
-
-
- 中古一戸建て
- 2,780万円
-
小平市花小金井4丁目
-
西武新宿線花小金井
-
-
-
-
- 中古一戸建て
- 4,790万円
-
三鷹市中原2丁目
-
京王線つつじヶ丘
-
-
-
-
- 中古一戸建て
- 4,980万円
-
足立区西伊興1丁目
-
日暮里舎人ライナー谷在家
-
-
-
-
- 中古一戸建て
- 1,800万円
-
青梅市藤橋2丁目
-
JR青梅線小作
-
-
-
-
- 中古一戸建て
- 2,700万円
-
東久留米市南町4丁目
-
西武池袋・豊島線ひばりケ丘
-
-
-
-
- 中古一戸建て
- 1,200万円
-
青梅市師岡町2丁目
-
JR青梅線河辺
-
担当エージェント:増田 正宏
★全部屋6帖以上のゆとりある住空間
★2025年9月末リフォーム完成予定
★買物便利な住環境
周辺環境
上一色南小学校:750m
上一色中学校:500m
まいばすけっと 興宮町店:100m
サミットストア 本一色店 :700m
セブンイレブン 江戸川興宮町店:500m
物件担当より
お客様の理想の住まい探しを、私たちは全力でサポートします!
ライフスタイルやご希望に合わせた最適な物件をご提案し、安心してご相談いただける環境を整えております。
住まい選びは人生の大きな決断のひとつだからこそ、細やかな対応と信頼できる情報をご提供いたします。
お気軽にお問い合わせください!