中古戸建 守口市金田町2丁目
掲載情報更新日:2026年04月14日 次回更新予定日:2026年04月28日
- 5,380万円
-
- 借入ご希望金額
万円 - 借入期間
年 - 借入金利
% - 月々のお支払い金額
円
- 借入ご希望金額
※ 月々のお支払例は目安の試算となりますので、実際の金額とは異なる場合がございます。詳しくは店舗までお問合わせください。
- 守口市金田町2丁目
-
大阪市谷町線『大日』 徒歩21分 (約1640m)
大阪モノレール『大日』 徒歩21分 (約1670m)
京阪本線『古川橋』 徒歩25分 (約2000m)
京阪バス[4]京阪守口市駅行『金田』 徒歩8分 (約613m)
中古戸建 守口市金田町2丁目一戸建て | 物件情報
月々14.7万円~ 大日駅徒歩21分!(地下鉄大日駅までバス利用可!) 即内見可!
☆月々14.7万円~
☆最寄駅から東梅田駅まで18分
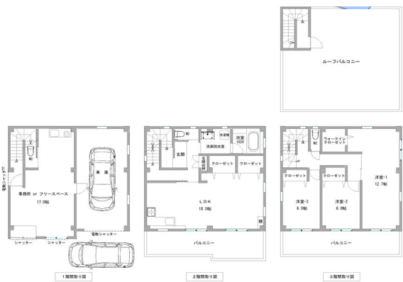
☆18.5帖LDK
☆大型車庫(全幅3200mm×全長7200mm×全高2300mm)1台・車庫外1台駐車可
☆近隣に学校、幼稚園、保育園、公園あり
☆複数スーパーあり
【内覧会開催中】
本日ご案内可能な場合もございます。
複数件併せてご内見も可能♪
他の掲載物件もまとめてご内見頂けます。気になる物件をお教え下さい。
☆0120ー684-571
お気軽にお電話ください♪
☆立地のポイント
【大阪メトロ/大日駅】徒歩約21分※大日駅までバス利用可。乗車8分
【大阪モノレール/大日駅】徒歩約21分
【古川橋駅】徒歩約25分
物件の設備
- 電気
- 公営水道
- 公共下水
- 都市ガス
- TV付バス
- トイレ
- トイレ3箇所
- オートロック
- 電動シャッター
- ルーフバルコニー
物件の特徴
- 3階建以上
- 即入居可
物件詳細情報
| 価格 | 5,380万円 | 間取り | 3LDK+S |
|---|---|---|---|
| 物件種別 | 中古一戸建て | ||
| 所在地 | 大阪府守口市金田町2丁目 | ||
| アクセス |
|
||
| 建物面積 | 176.89㎡ | 駐車場 | あり 普通:2台 |
| 築年月 | 2017年(平成29年)10月築 | ||
| 建物構造 | 鉄骨 3階建 | 工法 | |
| 主要採光 | 西向 | バルコニー | |
| 保証・評価 | |||
| リフォーム | |||
| 土地面積 | 99.94㎡(30.23坪) | 接道 | 西側(私道)幅 約5.0m 間口 約9.50m |
| 私道 | 含:23.85㎡ | セットバック | |
| 地目 | 宅地 | 地勢 | 平坦 |
| 権利 | 所有権 |
||
| 都市計画 | 市街化区域 |
用途地域 | 2種住居 |
| 建ぺい/容積率 | 60% / 200% | 土地国土法 | |
| 許可番号 | 建築基準法 | ||
| 法令制限 | |||
| 小学区 | 金田小学校 徒歩4分 (約250m) | 中学区 | 庭窪中学校 徒歩9分 (約650m) |
| 現況 | 空 | 引渡 | 即 |
| その他費用 | |||
| 周辺環境 | 金田小学校 徒歩6分 (約410m) コノミヤ 守口店 徒歩6分 (約430m) ツルハドラッグ守口金田店 徒歩6分 (約430m) スーパーセンタートライアル守口ジャガータウン店 徒歩7分 (約560m) 阪急オアシス守口店 徒歩6分 (約470m) Foods Market satake 梶町店 徒歩6分 (約480m) 守口市立庭窪中学校 徒歩9分 (約670m) |
||
| 備考 | |||
| 物件番号 | 4364828 | 取引態様 | 媒介 |
取扱店舗情報
| 電話番号 | 050-5805-9447 |
|---|---|
| 所在地 | 〒536-0006 大阪府大阪市城東区野江4丁目10-13 クリエイト野江内代1F |
| 営業時間 | 10:00~19:00 |
| 定休日 | なし |
| 宅建免許番号 | 国土交通大臣(1)第10706号 |
| アクセス | 店舗への地図はこちら |

来店ご予約
大阪府守口市で価格が似ている物件はこちら
- 大阪府
マイページ物件数 - 18,219件
最近見た物件
-
-

-
- 新築一戸建て
- 3,290万円
-
瀬戸市東寺山町
-
名鉄瀬戸線水野
-
-
-

-
- 土地
- 8,700万円
-
西条市喜多川
-
JR予讃線伊予西条
-
-
-

-
- 新築一戸建て
- 4,899万円
-
武蔵村山市大南5丁目
-
多摩モノレール玉川上水
-
大阪府中古一戸建て新着物件
-
-

-
- 中古一戸建て
- 7,880万円
-
大阪市福島区鷺洲2丁目
-
JR大阪環状線福島駅
-
-
-

-
- 中古一戸建て
- 5,480万円
-
吹田市千里山東1丁目
-
阪急電鉄千里線関大前駅
-
-
-

-
- 中古一戸建て
- 4,000万円
-
泉大津市東雲町
-
南海電鉄本線泉大津駅
-
-
-

-
- 中古一戸建て
- 338万円
-
松原市天美南3丁目
-
近鉄南大阪線河内天美駅
-
-
-

-
- 中古一戸建て
- 4,200万円
-
大阪市東住吉区矢田3丁目
-
近鉄南大阪線矢田駅
-
-
-

-
- 中古一戸建て
- 338万円
-
堺市北区東浅香山町1丁
-
大阪市御堂筋線北花田駅
-
-
-

-
- 中古一戸建て
- 4,499万円
-
箕面市牧落5丁目
-
阪急電鉄箕面線牧落駅
-
- お近くの店舗を探す
-
おすすめ物件
-
-

-
- 中古一戸建て
- 1,980万円
-
門真市四宮5丁目
-
京阪本線萱島
-
-
-

-
- 中古一戸建て
- 2,320万円
-
高槻市赤大路町
-
JR東海道線摂津富田
-
-
-

-
- 中古一戸建て
- 2,980万円
-
大阪市平野区平野東3丁目
-
大阪市谷町線平野
-
-
-

-
- 中古一戸建て
- 490万円
-
大阪市住之江区御崎6丁目
-
大阪市四つ橋線住之江公園
-
-
-

-
- 中古一戸建て
- 4,880万円
-
高槻市北昭和台町
-
阪急電鉄京都線総持寺
-
-
-

-
- 中古一戸建て
- 3,680万円
-
大阪市東住吉区東田辺1丁目
-
大阪市谷町線駒川中野
-
-
-

-
- 中古一戸建て
- 2,250万円
-
岸和田市下野町1丁目
-
南海電鉄本線春木
-
-
-

-
- 中古一戸建て
- 2,850万円
-
摂津市鳥飼新町1丁目
-
大阪モノレール沢良宜
-
-
-

-
- 中古一戸建て
- 3,180万円
-
高槻市淀の原町
-
阪急電鉄京都線上牧
-
-
-

-
- 中古一戸建て
- 790万円
-
泉南郡熊取町山の手台3丁目
-
JR阪和線熊取
-


































担当エージェント:尾関 親代
最寄り駅から東梅田まで18分の好立地!
大型車庫+敷地内1台駐車可!
落ち着いた住環境でファミリー層に◎♪
住宅ローン相談会開催中です!
ぜひお気軽にお問い合わせください!