中古テラスハウス 門真市脇田町
掲載情報更新日:2025年10月27日 次回更新予定日:2025年11月10日
- 580万円
 - 
                    
- 借入ご希望金額
万円 -  借入期間
年 -  借入金利
% -  月々のお支払い金額
円 
 - 借入ご希望金額
 
※ 月々のお支払例は目安の試算となりますので、実際の金額とは異なる場合がございます。詳しくは店舗までお問合わせください。
- 門真市脇田町
 - 
                    大阪市長堀鶴見緑地線『門真南』 徒歩32分 (約2560m)
 
中古テラスハウス 門真市脇田町テラスハウス | 物件情報
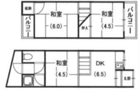
☆駅32分×3DK×53.16㎡
            
        
            ☆月々1.5万円~ 
☆最寄駅から京橋駅まで11分 
☆陽当たり良好! 
☆6.5帖DK
【内覧会開催中】
 本日ご案内可能な場合もございます。
 複数件併せてご内見も可能♪
 他の掲載物件もまとめてご内見頂けます。気になる物件をお教え下さい。
☆0120ー684-571
 お気軽にお電話ください♪
☆立地のポイント
 【門真南駅】徒歩約32分
リフォーム施工済み(2年間瑕疵担保付)
■キッチン工事(ブロックキッチン、吊り戸、換気扇新調、壁、クロスの張替、クッションフロアの張替)
■浴室(天井及び壁塗装)
■玄関・廊下・階段・脱衣室工事(天井・壁ベニヤ下地、天井・壁のクロス、脱衣所床下地組、クッションフロア、洗面台新調、ドアノブ)
■1階洋室工事(壁クロス張替、クッションフロア張替)
■2階和室工事(畳表替え、壁ベニヤ下地、壁クロス、一部クッションフロア、襖張替、天袋襖張替)
■2階洋室工事(天井・壁ベニヤ下地、天井・壁のクロス張替、クッションフロア、襖取替え、天袋襖取替え)
■外部工事(ベランダ床の防水、波板張替)        
物件の特徴
- 2階建
 - 即入居可
 
物件詳細情報
| 価格 | 580万円 | 間取り | 3DK | 
|---|---|---|---|
| 物件種別 | 中古一戸建て(テラスハウス) | ||
| 所在地 | 大阪府門真市脇田町 | ||
| アクセス | 
            
  | 
    ||
| 建物面積 | 53.16㎡ | 駐車場 | なし | 
| 築年月 | 1971年(昭和46年)08月築 | ||
| 建物構造 | 木造 2階建 | 工法 | |
| 主要採光 | バルコニー | ||
| 保証・評価 | |||
| リフォーム | |||
| 土地面積 | 公36.04㎡(10.90坪) | 接道 | 西側(公道)幅 約4.7m | 
    
| 私道 | セットバック | ||
| 地目 | 宅地 | 地勢 | 平坦 | 
| 権利 | 所有権 | 
    ||
| 都市計画 | 市街化区域 | 
        用途地域 | 2種中高 | 
| 建ぺい/容積率 | 60% / 200% | 土地国土法 | |
| 許可番号 | 建築基準法 | ||
| 法令制限 | |||
| 小学区 | 水桜小学校 徒歩14分 (約1100m) | 中学区 | 第四中学校 徒歩5分 (約350m) | 
| 現況 | 空 | 引渡 | 即 | 
| その他費用 | |||
| 備考 | リフォーム施工済み(2年間瑕疵担保付) ■キッチン工事(ブロックキッチン、吊り戸、換気扇新調、壁、クロスの張替、クッションフロアの張替) ■浴室(天井及び壁塗装) ■玄関・廊下・階段・脱衣室工事(天井・壁ベニヤ下地、天井・壁のクロス、脱衣所床下地組、クッションフロア、洗面台新調、ドアノブ) ■1階洋室工事(壁クロス張替、クッションフロア張替) ■2階和室工事(畳表替え、壁ベニヤ下地、壁クロス、一部クッションフロア、襖張替、天袋襖張替) ■2階洋室工事(天井・壁ベニヤ下地、天井・壁のクロス張替、クッションフロア、襖取替え、天袋襖取替え) ■外部工事(ベランダ床の防水、波板張替)  | 
    ||
| 物件番号 | 4372272 | 取引態様 | 媒介 | 
取扱店舗情報
| 電話番号 | 050-5805-9447 | 
|---|---|
| 所在地 | 〒536-0006 大阪府大阪市城東区野江4丁目10-13 クリエイト野江内代1F  | 
            
| 営業時間 | 10:00~19:00 | 
| 定休日 | なし | 
| 宅建免許番号 | 国土交通大臣(1)第10706号 | 
| アクセス | 店舗への地図はこちら | 

来店ご予約
大阪府門真市で価格が似ている物件はこちら
- 大阪府
マイページ物件数 - 15,267件
 
最近見た物件
- 
                        
- 
									                                    

 - 
                                
- 中古一戸建て
 - 1,650万円
 - 
                                        
                                            
八戸市大字湊町字鮫ノ口
 - 
                                        
光星高校前バス停
 
 
 - 
									                                    
 
大阪府中古一戸建て新着物件
- 
				
- 
							                            

 - 
						
- 中古一戸建て
 - 3,380万円
 - 
								
									
大阪市住之江区北加賀屋2丁目
 - 
                                
大阪市四つ橋線北加賀屋駅
 
 
 - 
							                            
 - 
				
- 
							                            

 - 
						
- 中古一戸建て
 - 1億5,000万円
 - 
								
									
豊中市服部南町2丁目
 - 
                                
阪急電鉄宝塚線服部天神駅
 
 
 - 
							                            
 - 
				
- 
							                            

 - 
						
- 中古一戸建て
 - 1,450万円
 - 
								
									
豊中市螢池西町1丁目
 - 
                                
阪急電鉄宝塚線蛍池駅
 
 
 - 
							                            
 - 
				
- 
							                            

 - 
						
- 中古一戸建て
 - 1,580万円
 - 
								
									
東大阪市日下町5丁目
 - 
                                
近鉄けいはんな線新石切駅
 
 
 - 
							                            
 - 
				
- 
							                            

 - 
						
- 中古一戸建て
 - 1,890万円
 - 
								
									
門真市古川町
 - 
                                
京阪本線古川橋駅
 
 
 - 
							                            
 - 
				
- 
							                            

 - 
						
- 中古一戸建て
 - 2,798万円
 - 
								
									
東大阪市若江東町1丁目
 - 
                                
近鉄難波・奈良線若江岩田駅
 
 
 - 
							                            
 - 
				
- 
							                            

 - 
						
- 中古一戸建て
 - 1,680万円
 - 
								
									
東大阪市東鴻池町4丁目
 - 
                                
JR片町線鴻池新田駅
 
 
 - 
							                            
 
- お近くの店舗を探す
 - 
            
            
            
 
おすすめ物件
- 
				
- 
														

 - 
						
- 中古一戸建て
 - 3,280万円
 - 
								
									
大阪市西成区鶴見橋2丁目
 - 
								
JR大阪環状線今宮
 
 
 - 
														
 - 
				
- 
														

 - 
						
- 中古一戸建て
 - 1,600万円
 - 
								
									
八尾市垣内4丁目
 - 
								
近鉄信貴線信貴山口
 
 
 - 
														
 - 
				
- 
														

 - 
						
- 中古一戸建て
 - 3,650万円
 - 
								
									
大阪市住吉区万代5丁目
 - 
								
南海電鉄高野線帝塚山
 
 
 - 
														
 - 
				
- 
														

 - 
						
- 中古一戸建て
 - 4,770万円
 - 
								
									
茨木市総持寺1丁目
 - 
								
阪急電鉄京都線総持寺
 
 
 - 
														
 - 
				
- 
														

 - 
						
- 中古一戸建て
 - 2,490万円
 - 
								
									
八尾市南本町7丁目
 - 
								
JR関西本線八尾
 
 
 - 
														
 - 
				
- 
														

 - 
						
- 中古一戸建て
 - 780万円
 - 
								
									
泉南郡熊取町山の手台3丁目
 - 
								
JR阪和線熊取
 
 
 - 
														
 - 
				
- 
														

 - 
						
- 中古一戸建て
 - 2,280万円
 - 
								
									
泉大津市昭和町
 - 
								
南海電鉄本線泉大津
 
 
 - 
														
 - 
				
- 
														

 - 
						
- 中古一戸建て
 - 1,350万円
 - 
								
									
泉南市樽井2丁目
 - 
								
南海電鉄本線樽井
 
 
 - 
														
 - 
				
- 
														

 - 
						
- 中古一戸建て
 - 4,490万円
 - 
								
									
大阪市住吉区万代東2丁目
 - 
								
大阪市御堂筋線西田辺
 
 
 - 
														
 - 
				
- 
														

 - 
						
- 中古一戸建て
 - 680万円
 - 
								
									
泉南郡熊取町小垣内1丁目
 - 
								
JR阪和線熊取
 
 
 - 
														
 
    
                        
                        
                        
                    

                






























                
            
                
                    
                                            
                                            
                                            
                                            
                                            
                                            
						
						
担当エージェント:尾関 親代
最寄り駅から京橋まで11分の好立地!
住宅ローン相談会開催中です!
ぜひお気軽にお問い合わせください!