調布市富士見町1丁目の中古戸建
掲載情報更新日:2026年04月06日 次回更新予定日:2026年04月20日
- 2,460万円
-
- 借入ご希望金額
万円 - 借入期間
年 - 借入金利
% - 月々のお支払い金額
円
- 借入ご希望金額
※ 月々のお支払例は目安の試算となりますので、実際の金額とは異なる場合がございます。詳しくは店舗までお問合わせください。
- 調布市富士見町1丁目
-
京王線『西調布』 徒歩9分 (約720m)
調布市富士見町1丁目一戸建て | 物件情報
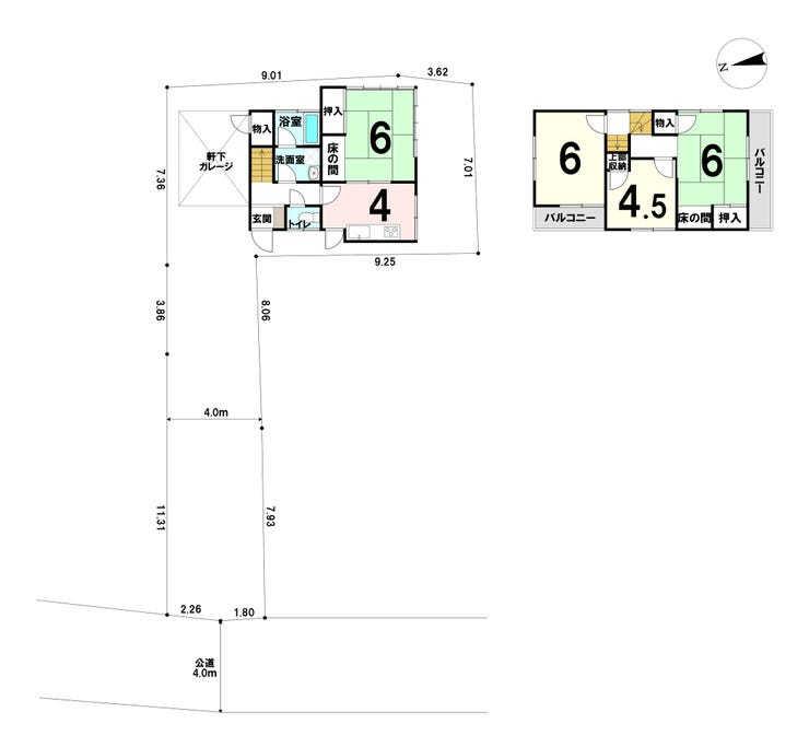
☆オーナーチェンジ ☆京王線『西調布』駅徒歩9分 ☆間取:4K ☆軒下ガレージ1台(車種による)
▼オーナーチェンジ
▼閑静な住宅地
▼京王線『西調布』駅徒歩9分
▼間取:4K
▼軒下ガレージ1台(車種による)
▼和室あり
▼浴室に窓あり
▼(南×西)2面バルコニー
▼陽当り・通風良好
~交通アクセス~
▼京王電鉄京王線『西調布』駅 徒歩9分
物件の設備
- 電気
- 公営水道
- 公共下水
- 都市ガス
- 室内洗濯機置場
- 和室
- バルコニー
- 南面バルコニー
物件の特徴
- 2階建
物件詳細情報
| 価格 | 2,460万円 | 間取り | 4K |
|---|---|---|---|
| 物件種別 | 中古一戸建て | ||
| 所在地 | 東京都調布市富士見町1丁目 | ||
| アクセス |
|
||
| 建物面積 | 67.89㎡ | 駐車場 | あり 普通:1台 |
| 築年月 | 1972年(昭和47年)12月築 | ||
| 建物構造 | 木造 2階建 | 工法 | |
| 主要採光 | 南向 | バルコニー | 南向1.00㎡ |
| 保証・評価 | |||
| リフォーム | |||
| 土地面積 | 公93.03㎡(28.14坪) | 接道 | 西側(公道)幅 約4.0m |
| 私道 | セットバック | ||
| 地目 | 宅地 | 地勢 | |
| 権利 | 所有権 |
||
| 都市計画 | 市街化区域 |
用途地域 | 1種低層 |
| 建ぺい/容積率 | 40% / 80% | 土地国土法 | |
| 許可番号 | 建築基準法 | ||
| 法令制限 | 高度地区・高さ最高限度有・日影制限有・法22条区域・絶対高さ制限10m・日影規制:3h-2h/1.5m | ||
| 小学区 | 中学区 | 調布中学校 徒歩10分 (約770m) | |
| 現況 | 賃貸中 | 引渡 | 相談 |
| その他費用 | |||
| 周辺環境 | 調布市立調布中学校 徒歩10分 (約770m) | ||
| 備考 | □表面利回り4.0%/年間家賃収入(管理費込)984000円 ※年間収入は参考であり、保証するものではありません。 □通路・私道(飛地)の持分2筆有 ・13番22(公衆用道路・62㎡)、持分8/62 ・13番17(宅地・47.46㎡)、持分6/47 □建築確認番号:記録なしのため、接道状況等詳細不明(既存不適格)。 □増築未登記部分有 □システム上、バルコニー面積1.00㎡の記載となりますが、正しくは不明です。 □軒下ガレージ1台(車種による) |
||
| 物件番号 | 4376234 | 取引態様 | 媒介 |
取扱店舗情報
ハウスドゥ 仙川駅南 ピースデザイン株式会社 店舗詳細ページへ
| 電話番号 | 03-5969-8027 |
|---|---|
| 所在地 | 〒182-0002 東京都調布市仙川町1丁目15-4 鍋屋ビル2階 |
| 営業時間 | 9:00~18:00 |
| 定休日 | 毎週火曜日・水曜日 |
| 宅建免許番号 | 東京都知事(1)第112238号 |
| アクセス | 店舗への地図はこちら |

来店ご予約
- 東京都
マイページ物件数 - 5,749件
最近見た物件
-
-

-
- 中古一戸建て
- 2,700万円
-
宇治市宇治弐番
-
JR奈良線宇治
-
-
-

-
- 新築一戸建て
- 6,180万円
-
名古屋市昭和区長戸町3丁目
-
名古屋市鶴舞線川名
-
-
-

-
- 中古一戸建て
- 550万円
-
八幡市八幡広門
-
京阪本線樟葉
-
東京都中古一戸建て新着物件
- お近くの店舗を探す
-
おすすめ物件
-
-

-
- 中古一戸建て
- 999万円
-
青梅市師岡町2丁目
-
JR青梅線河辺
-
-
-

-
- 中古一戸建て
- 2,200万円
-
足立区東六月町
-
東武伊勢崎・大師線竹ノ塚
-
-
-

-
- 中古一戸建て
- 2,380万円
-
足立区辰沼2丁目
-
東京メトロ千代田線北綾瀬
-
-
-

-
- 中古一戸建て
- 1,580万円
-
青梅市畑中1丁目
-
JR青梅線青梅
-
-
-

-
- 中古一戸建て
- 700万円
-
青梅市大門1丁目
-
JR青梅線東青梅
-
-
-

-
- 中古一戸建て
- 1億7,997万円
-
世田谷区瀬田2丁目
-
東急田園都市線二子玉川
-
-
-

-
- 中古一戸建て
- 3,680万円
-
板橋区東新町2丁目
-
東武東上線ときわ台
-
-
-

-
- 中古一戸建て
- 3,280万円
-
葛飾区西水元6丁目
-
JR千代田・常磐緩行線亀有
-
-
-

-
- 中古一戸建て
- 4,080万円
-
青梅市滝ノ上町
-
JR青梅線青梅
-
-
-

-
- 中古一戸建て
- 6,580万円
-
練馬区東大泉7丁目
-
西武池袋・豊島線大泉学園
-













担当エージェント:野村 真太郎
ご覧いただき、誠にありがとうございます。こちらは調布市富士見町1丁目にございます中古戸建です。本物件は、第一種低層住居専用地域でございますので、閑静な住宅街です。また、軒下ガレージがございますオーナーチェンジ物件です。物件の詳細・現地の内見希望等、お気軽にお問合せください。