中古戸建 岡山市北区宿 牧石小学校・岡北中学校エリア
掲載情報更新日:2025年10月30日 次回更新予定日:2025年11月13日
- 1,490万円
 - 
                    
- 借入ご希望金額
万円 -  借入期間
年 -  借入金利
% -  月々のお支払い金額
円 
 - 借入ご希望金額
 
※ 月々のお支払例は目安の試算となりますので、実際の金額とは異なる場合がございます。詳しくは店舗までお問合わせください。
- 岡山市北区宿
 - 
                    JR津山線『備前原』 徒歩17分 (約1300m)
宇野バス『江川』 徒歩5分 (約350m)
 
中古戸建 岡山市北区宿 牧石小学校・岡北中学校エリア一戸建て | 物件情報
駐車2台&南向き庭付き!岡山駅へ13分と生活便利な南向きの暮らしやすいお家で快適ライフ始めませんか?
            
        
            ◎ネットからご来店予約でQuoカード1000円分プレゼント
☆南向きで陽当り良好♪
☆リフォーム:2000年外壁・屋根1部・内装
\*おすすめPOINT*/
・オーナー様が丁寧にお住まいのお家です◎
・南側に庭付きで、家庭菜園やお子様の遊び場にも最適♪
・車13分程度で市街地へ行くことができ、不便なく暮らせるエリアです◎
・周辺交通量少なめの閑静な住宅地♪
★周辺環境★
宇野バス 江川バス停 徒歩5分
ローソン 岡山北方店まで徒歩19分
塚本歯科医院まで徒歩20分
『全国700店舗展開の情報ネットワーク!』
◆物件見学・オープンハウス随時開催!◆
◇資金計画、住宅ローン、リフォーム、火災保険
◇弊社提携の銀行員や税理士による無料相談
◇店内にキッズコーナー
◇ドリンクサービス充実
お一人でのご来店、お子様を連れてのご来店も可能です
お気軽にお問い合わせください♪
☆―ご予約・お問合せ―☆
ハウスドゥ総社:0866-95-2775
までお問い合わせください!        
物件の設備
- 電気
 - 上水道
 - 汲取
 - プロパンガス
 - 個別プロパン
 - バス
 - 浴室に窓
 - トイレ
 - 室内洗濯機置場
 - エアコン2基
 - 和室
 - 2面採光
 - シューズボックス
 - 庭
 - 南庭
 - 縁側
 
物件の特徴
- 内装リフォーム済
 - 外装リフォーム済
 - 内外装リフォーム済
 - 南向
 - 駅まで平坦
 - スーパーが近い
 - 閑静な住宅街
 - 周辺交通量少なめ
 - 市街地が近い
 - 山が見える
 - 田園風景
 - 2階建
 - 角地
 
物件詳細情報
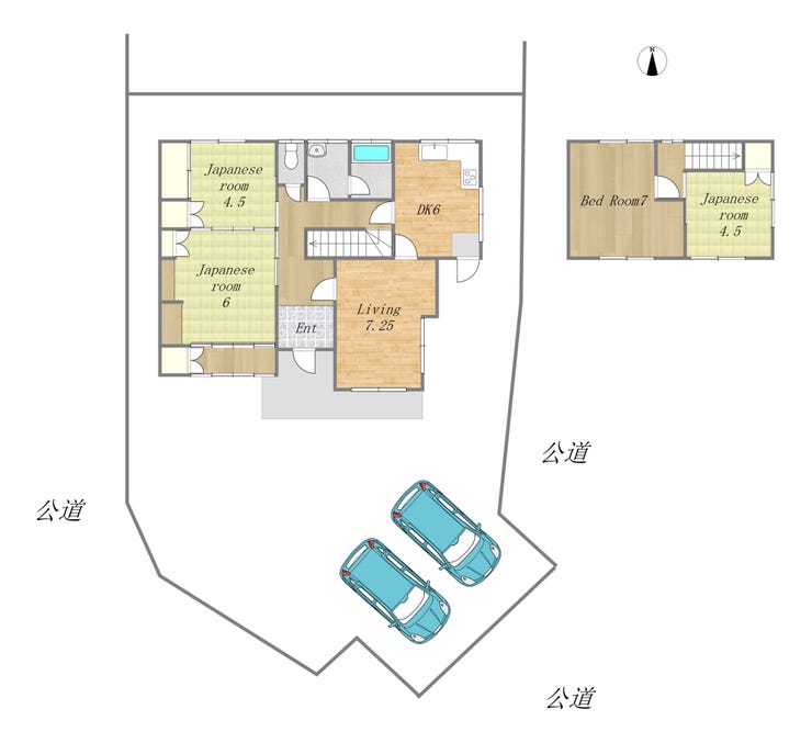
| 価格 | 1,490万円 | 間取り | 4LDK | 
|---|---|---|---|
| 物件種別 | 中古一戸建て | ||
| 所在地 | 岡山県岡山市北区宿 | ||
| アクセス | 
            
  | 
    ||
| 建物面積 | 89.84㎡ | 駐車場 | あり 普通:1台 軽:1台 | 
| 築年月 | 1971年(昭和46年)09月築 | ||
| 建物構造 | 木造 2階建 | 工法 | |
| 主要採光 | 南向 | バルコニー | |
| 保証・評価 | |||
| リフォーム | 【水回り】2000年01月 浴室・トイレ 【外装】2000年01月 外壁 ・屋根 屋根1部 【内装】2000年01月 全室クロス  | 
        ||
| 土地面積 | 151.36㎡(45.78坪) | 接道 | 北西側(公道)幅 約4.0m 北東側(公道)幅 約4.0m  | 
    
| 私道 | セットバック | ||
| 地目 | 宅地 | 地勢 | 平坦 | 
| 権利 | 所有権 | 
    ||
| 都市計画 | 市街化区域 | 
        用途地域 | 1種住居 | 
| 建ぺい/容積率 | 60% / 200% | 土地国土法 | |
| 許可番号 | 建築基準法 | ||
| 法令制限 | |||
| 小学区 | 御野小学校 徒歩29分 (約2300m) | 中学区 | 岡北中学校 徒歩27分 (約2100m) | 
| 現況 | 居住中 | 引渡 | 相談 | 
| その他費用 | |||
| 備考 | ・ヒポポパスタ(イタリア料理)まで徒歩13分(1.3km) ・ローソン 岡山北方店まで徒歩19分(1.4km) ・塚本歯科医院まで徒歩20分(1.5km) ・岡山市半田山植物園まで徒歩20分(1.5km) ・ザグザグ 北方店(調剤薬局アリ)まで車で5分(1.8km) ・にいや内科クリニックまで車で5分(1.8km) ・セブンイレブン 岡山法界院店まで車で5分(2.0km) ・岡山北方郵便局まで車で5分(2.1km) ・中国銀行 法界院支店まで車で5分(2.1km) ・ラ・ムー 岡山中央店まで車で5分(2.3km) ・ダイソー 岡山岡北店まで車で5分(2.3km) ・ジーユー 岡山岡北店まで車で5分(2.3km) ・ユニクロ 岡山岡北店まで車で5分(2.3km) リフォーム:2000年頃外壁・屋根1部・内装・バス・トイレ ・南向きの住みやすいお家です♪ ・南庭つき♪  | 
    ||
| 物件番号 | 4380645 | 取引態様 | 専任 | 
取扱店舗情報
| 電話番号 | 0866-95-2775 | 
|---|---|
| 所在地 | 〒719-1131 岡山県総社市中央1丁目21-101  | 
            
| 営業時間 | 10:00~18:00 | 
| 定休日 | 火曜日、水曜日、年末年始 | 
| 宅建免許番号 | 岡山県知事(2)第5846号 | 
| アクセス | 店舗への地図はこちら | 

来店ご予約
岡山県岡山市北区で価格が似ている物件はこちら
- 岡山県
マイページ物件数 - 4,371件
 
岡山県中古一戸建て新着物件
- お近くの店舗を探す
 - 
            
            
            
 
おすすめ物件
- 
				
- 
														

 - 
						
- 中古一戸建て
 - 980万円
 - 
								
									
赤磐市桜が丘西1丁目
 - 
								
JR山陽本線万富
 
 
 - 
														
 - 
				
- 
														

 - 
						
- 中古一戸建て
 - 2,700万円
 - 
								
									
倉敷市上東
 - 
								
JR山陽本線中庄
 
 
 - 
														
 - 
				
- 
														

 - 
						
- 中古一戸建て
 - 590万円
 - 
								
									
総社市秦
 - 
								
JR伯備線総社
 
 
 - 
														
 - 
				
- 
														

 - 
						
- 中古一戸建て
 - 1,899万円
 - 
								
									
赤磐市桜が丘東4丁目
 - 
								
JR山陽本線万富
 
 
 - 
														
 - 
				
- 
														

 - 
						
- 中古一戸建て
 - 2,500万円
 - 
								
									
倉敷市東塚1丁目
 - 
								
水島臨海鉄道水島
 
 
 - 
														
 - 
				
- 
														

 - 
						
- 中古一戸建て
 - 550万円
 - 
								
									
赤磐市中勢実
 - 
								
JR山陽本線熊山
 
 
 - 
														
 - 
				
- 
														

 - 
						
- 中古一戸建て
 - 2,500万円
 - 
								
									
倉敷市粒浦
 - 
								
水島臨海鉄道浦田
 
 
 - 
														
 - 
				
- 
														

 - 
						
- 中古一戸建て
 - 2,350万円
 - 
								
									
岡山市北区宿
 - 
								
JR津山線備前原
 
 
 - 
														
 - 
				
- 
														

 - 
						
- 中古一戸建て
 - 1,350万円
 - 
								
									
総社市宿
 - 
								
JR吉備線備中高松
 
 
 - 
														
 - 
				
- 
														

 - 
						
- 中古一戸建て
 - 2,650万円
 - 
								
									
倉敷市白楽町
 - 
								
JR山陽本線倉敷
 
 
 - 
														
 
    
                        
                        
                        
                    

                








                
            
                
                    
                                            
                                            
                                            
                                            
                                            
                                            
                                            
                                            









						
						
★初めてお問い合わせいただくお客様へ
1.物件について詳細をご説明します。(オンライン可)
2.お客様のご希望をどうぞお聞かせください♪
3.今後の流れを具体的にご案内
所要時間:約30分~1時間
★物件を見に行こう
所要時間: 1時間~1時間半(移動時間を除く)
気になる物件をじっくりとご確認いただけます。
現地で実際に確かめてください♪
周辺環境など実際の生活を想定したご案内をします。
+‥‥▼お電話でのご予約、ご質問・ご要望はこちらまで▼‥‥+
TEL:0866-95-2775
ハウスドゥ 総社
◆ご売却◆
売却相談、査定も承っております。
相続やお住み替え、リースバック
不用品の処分や片付けも対応!
ご売却までの流れなどお気軽にご相談ください。