守口市南寺方東通4丁目 中古戸建
掲載情報更新日:2026年04月12日 次回更新予定日:2026年04月26日
- 2,980万円
-
- 借入ご希望金額
万円 - 借入期間
年 - 借入金利
% - 月々のお支払い金額
円
- 借入ご希望金額
※ 月々のお支払例は目安の試算となりますので、実際の金額とは異なる場合がございます。詳しくは店舗までお問合わせください。
- 守口市南寺方東通4丁目
-
大阪市今里筋線『清水』 徒歩21分 (約1650m)
大阪市今里筋線『新森古市』 徒歩23分 (約1810m)
京阪本線『千林』 徒歩28分 (約2170m)
守口市南寺方東通4丁目 中古戸建一戸建て | 物件情報
☆駅21分×4LDK×72.75㎡☆ 駐車場有3階建て戸建◎♪
☆月々8.4万円~
☆改装済みの3階建て戸建て
☆最寄駅から京橋駅まで20分、東梅田まで22分
☆駐車場1台&ハイルーフ車可
☆近隣に学校、幼稚園、保育園、公園あり
【内覧会開催中】
本日ご案内可能な場合もございます。
複数件併せてご内見も可能♪
他の掲載物件もまとめてご内見頂けます。気になる物件をお教え下さい。
☆0120ー684-571
お気軽にお電話ください♪
☆立地のポイント
【清水駅】徒歩約21分
【新森古市駅】徒歩約23分
【千林駅】徒歩約28分
物件の設備
- 電気
- 上水道
- 下水道
- 都市ガス
物件の特徴
- 前道6m以上
- 3階建以上
物件詳細情報
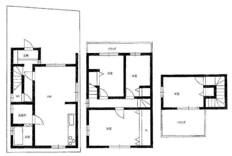
| 価格 | 2,980万円 | 間取り | 4LDK |
|---|---|---|---|
| 物件種別 | 中古一戸建て | ||
| 所在地 | 大阪府守口市南寺方東通4丁目 | ||
| アクセス |
|
||
| 建物面積 | 98.21㎡ | 駐車場 | なし |
| 築年月 | 2004年(平成16年)01月築 | ||
| 建物構造 | 木造 3階建 | 工法 | |
| 主要採光 | バルコニー | ||
| 保証・評価 | |||
| リフォーム | |||
| 土地面積 | 公72.75㎡(22坪) | 接道 | 北側(公道)幅 約6.0m 間口 約6.10m |
| 私道 | セットバック | ||
| 地目 | 宅地 | 地勢 | 平坦 |
| 権利 | 所有権 |
||
| 都市計画 | 市街化区域 |
用途地域 | 準工業 |
| 建ぺい/容積率 | 60% / 200% | 土地国土法 | |
| 許可番号 | 建築基準法 | ||
| 法令制限 | |||
| 小学区 | 錦小学校 徒歩6分 (約450m) | 中学区 | 錦中学校 徒歩5分 (約350m) |
| 現況 | 空 | 引渡 | 相談 |
| その他費用 | |||
| 周辺環境 | 錦中学校 徒歩5分 (約380m) 錦小学校 徒歩6分 (約460m) ライフ 守口寺方店 徒歩9分 (約650m) ファミリーマート 新森七丁目店 徒歩15分 (約1150m) 大阪市立 旭東幼稚園 徒歩14分 (約1120m) 両国町公園 徒歩15分 (約1190m) 花博記念公園 鶴見緑地 徒歩17分 (約1350m) |
||
| 備考 | ・錦中学校まで徒歩5分(約380m) ・錦小学校まで徒歩6分(約460m) ・ライフ 守口寺方店まで徒歩9分(約650m) ・ファミリーマート 新森七丁目店まで徒歩15分(約1150m) ・大阪市立 旭東幼稚園まで徒歩14分(約1120m) ・両国町公園まで徒歩15分(約1190m) ・花博記念公園 鶴見緑地まで徒歩17分(約1350m) |
||
| 物件番号 | 4380725 | 取引態様 | 媒介 |
取扱店舗情報
| 電話番号 | 050-5805-9447 |
|---|---|
| 所在地 | 〒536-0006 大阪府大阪市城東区野江4丁目10-13 クリエイト野江内代1F |
| 営業時間 | 10:00~19:00 |
| 定休日 | なし |
| 宅建免許番号 | 国土交通大臣(1)第10706号 |
| アクセス | 店舗への地図はこちら |

来店ご予約
大阪府守口市で価格が似ている物件はこちら
- 大阪府
マイページ物件数 - 18,247件
最近見た物件
-
-

-
- 中古一戸建て
- 2,380万円
-
鹿児島市吉野町
-
JR日豊本線仙巌園
-
-
-

-
- 中古一戸建て
- 1,530万円
-
宇部市大字上宇部
-
JR宇部線宇部新川
-
-
-

-
- 新築一戸建て
- 2,580万円
-
新潟市西区五十嵐中島2丁目
-
JR越後線内野西が丘
-
大阪府中古一戸建て新着物件
-
-

-
- 中古一戸建て
- 2,980万円
-
大阪市此花区酉島6丁目
-
JR桜島線安治川口駅
-
-
-

-
- 中古一戸建て
- 1,190万円
-
泉佐野市葵町1丁目
-
南海電鉄本線泉佐野駅
-
-
-

-
- 中古一戸建て
- 3,980万円
-
大阪市東成区大今里南6丁目
-
大阪市千日前線新深江駅
-
-
-

-
- 中古一戸建て
- 2,490万円
-
大阪市旭区今市1丁目
-
大阪市谷町線太子橋今市駅
-
-
-

-
- 中古一戸建て
- 580万円
-
堺市中区陶器北
-
南海電鉄高野線北野田駅
-
-
-

-
- 中古一戸建て
- 3,390万円
-
豊中市庄内西町2丁目
-
阪急電鉄宝塚線庄内駅
-
-
-

-
- 中古一戸建て
- 2,550万円
-
岸和田市土生町6丁目
-
JR阪和線東岸和田駅
-
- お近くの店舗を探す
-
おすすめ物件
-
-

-
- 中古一戸建て
- 1,650万円
-
和泉市黒鳥町2丁目
-
JR阪和線和泉府中
-
-
-

-
- 中古一戸建て
- 2,980万円
-
八尾市八尾木3丁目
-
JR関西本線志紀
-
-
-

-
- 中古一戸建て
- 1,680万円
-
豊中市城山町2丁目
-
阪急電鉄宝塚線曽根
-
-
-

-
- 中古一戸建て
- 2,780万円
-
大阪市西成区梅南1丁目
-
大阪市四つ橋線花園町
-
-
-

-
- 中古一戸建て
- 650万円
-
羽曳野市誉田7丁目
-
近鉄南大阪線道明寺
-
-
-

-
- 中古一戸建て
- 2,698万円
-
高槻市東五百住町3丁目
-
阪急電鉄京都線富田
-
-
-

-
- 中古一戸建て
- 1,490万円
-
高槻市八幡町
-
阪急電鉄京都線高槻市
-
-
-

-
- 中古一戸建て
- 1,230万円
-
東大阪市稲葉1丁目
-
近鉄難波・奈良線河内花園
-
-
-

-
- 中古一戸建て
- 1,780万円
-
堺市中区伏尾
-
南海電鉄泉北線泉ケ丘
-
-
-

-
- 中古一戸建て
- 590万円
-
大阪市住之江区安立4丁目
-
南海電鉄本線住ノ江
-






































担当エージェント:尾関 親代
最寄り駅から京橋20分、東梅田22分の好立地!
落ち着いた住環境でファミリー層にも単身者にも◎♪
住宅ローン相談会開催中です!
ぜひお気軽にお問い合わせください!