中古戸建 松原市一津屋5丁目
掲載情報更新日:2025年10月30日 次回更新予定日:2025年11月13日
- 3,380万円
- 
                    - 借入ご希望金額
 万円
-  借入期間
 年
-  借入金利
 %
-  月々のお支払い金額
 円
 
- 借入ご希望金額
※ 月々のお支払例は目安の試算となりますので、実際の金額とは異なる場合がございます。詳しくは店舗までお問合わせください。
- 松原市一津屋5丁目
- 
                    近鉄南大阪線『恵我ノ荘』 徒歩13分 (約1040m)
 近鉄南大阪線『河内松原』 徒歩31分 (約2480m)
 近鉄南大阪線『高鷲』 徒歩19分 (約1520m)
 
中古戸建 松原市一津屋5丁目一戸建て | 物件情報
★広々74.8坪!ミサワホーム施工★
             
        
            ★広々74.8坪!ミサワホーム施工★
●オススメポイント●
・土地面積74.8坪
・複数台駐車可能
●教育機関●
・恵我小学校 徒歩20分
・松原第七中学校 徒歩17分        
物件の設備
- 電気
- 公営水道
- 公共下水
- 都市ガス
- 給湯
- グリル
- カウンターキッチン
- システムキッチン
- バス
- 浴室に窓
- トイレ
- トイレ2箇所
- 室内洗濯機置場
- 洗面所独立
- モニタ付インターホン
- 和室
- 網戸
- クローゼット
- シューズボックス
- ハイルーフ駐車可能
物件の特徴
- 前道6m以上
- 整備された歩道
- スーパーが近い
- 閑静な住宅街
- 通風良好
- 3階建以上
- 角地
物件詳細情報
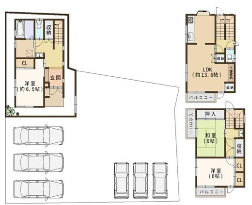
| 価格 | 3,380万円 | 間取り | 3LDK | 
|---|---|---|---|
| 物件種別 | 中古一戸建て | ||
| 所在地 | 大阪府松原市一津屋5丁目 | ||
| アクセス | 
 | ||
| 建物面積 | 公100.25㎡ | 駐車場 | あり | 
| 築年月 | 1997年(平成9年)03月築 | ||
| 建物構造 | 木造 3階建 | 工法 | |
| 主要採光 | バルコニー | ||
| 保証・評価 | |||
| リフォーム | |||
| 土地面積 | 公247.29㎡(74.80坪) | 接道 | 北側(公道)幅 約6.0m | 
| 私道 | セットバック | ||
| 地目 | 宅地 | 地勢 | 平坦 | 
| 権利 | 所有権 | ||
| 都市計画 | 市街化区域 | 用途地域 | 1種住居 | 
| 建ぺい/容積率 | 60% / 200% | 土地国土法 | |
| 許可番号 | 建築基準法 | ||
| 法令制限 | 準防火地域 | ||
| 小学区 | 恵我小学校 徒歩20分 (約1600m) | 中学区 | 松原第七中学校 徒歩17分 (約1300m) | 
| 現況 | 空 | 引渡 | 相談 | 
| その他費用 | |||
| 周辺環境 | 松原市立 第七保育所 徒歩8分 (約570m) 松原市立恵我小学校 徒歩21分 (約1660m) 松原市立松原第七中学校 徒歩16分 (約1210m) 大阪府立藤井寺高等学校 徒歩17分 (約1360m) ライフ 恵我之荘店 徒歩5分 (約370m) 羽曳野警察署 恵我之荘交番 徒歩13分 (約1020m) ココカラファイン 島泉店 徒歩14分 (約1120m) | ||
| 備考 | ・松原市立 第七保育所まで徒歩8分(約570m) ・松原市立恵我小学校まで徒歩21分(約1660m) ・松原市立松原第七中学校まで徒歩16分(約1210m) ・大阪府立藤井寺高等学校まで徒歩17分(約1360m) ・ライフ 恵我之荘店まで徒歩5分(約370m) ・羽曳野警察署 恵我之荘交番まで徒歩13分(約1020m) ・ココカラファイン 島泉店まで徒歩14分(約1120m) | ||
| 物件番号 | 4385803 | 取引態様 | 媒介 | 
取扱店舗情報
ハウスドゥ 松原阿保 Tacoo home株式会社 店舗詳細ページへ
| 電話番号 | 072-247-5294 | 
|---|---|
| 所在地 | 〒580-0043 大阪府松原市阿保1丁目4-11コーポイン松原102 | 
| 営業時間 | 平日:10:00~20:00/土日祝:9:00~20:00 | 
| 定休日 | 水曜日 | 
| 宅建免許番号 | 大阪府知事(1)第65754号 | 
| アクセス | 店舗への地図はこちら | 

来店ご予約
大阪府松原市で価格が似ている物件はこちら
- 大阪府
 マイページ物件数
- 15,142件
最近見た物件
- 
                        - 
									                                     
- 
                                - 中古一戸建て
- 2,680万円
- 
                                        
                                            鹿児島市坂元町 
- 
                                        辻ヶ丘団地公園前バス停 
 
 
- 
									                                    
- 
                        - 
									                                     
- 
                                - 中古マンション
- 2,080万円
- 
                                        
                                            大阪市淀川区木川東4丁目 
- 
                                        大阪市御堂筋線西中島南方 
 
 
- 
									                                    
- 
                        - 
									                                     
- 
                                - 中古一戸建て
- 150万円
- 
                                        
                                            海部郡美波町西由岐字西 
- 
                                        JR牟岐線由岐 
 
 
- 
									                                    
大阪府中古一戸建て新着物件
- 
				- 
							                             
- 
						- 中古一戸建て
- 4,480万円
- 
								
									大阪市平野区喜連東1丁目 
- 
                                大阪市谷町線出戸駅 
 
 
- 
							                            
- 
				- 
							                             
- 
						- 中古一戸建て
- 480万円
- 
								
									豊中市庄内栄町2丁目 
- 
                                阪急電鉄宝塚線庄内駅 
 
 
- 
							                            
- 
				- 
							                             
- 
						- 中古一戸建て
- 1,670万円
- 
								
									大阪市生野区巽南5丁目 
- 
                                JR関西本線平野駅 
 
 
- 
							                            
- 
				- 
							                             
- 
						- 中古一戸建て
- 4,200万円
- 
								
									東大阪市俊徳町1丁目 
- 
                                JRおおさか東線JR俊徳道駅 
 
 
- 
							                            
- 
				- 
							                             
- 
						- 中古一戸建て
- 3,980万円
- 
								
									高槻市野田2丁目 
- 
                                阪急電鉄京都線高槻市駅 
 
 
- 
							                            
- 
				- 
							                             
- 
						- 中古一戸建て
- 1,399万円
- 
								
									東大阪市東山町 
- 
                                近鉄難波・奈良線額田駅 
 
 
- 
							                            
- 
				- 
							                             
- 
						- 中古一戸建て
- 4,180万円
- 
								
									吹田市片山町4丁目 
- 
                                JR東海道線吹田駅 
 
 
- 
							                            
- お近くの店舗を探す
- 
            
            
            
おすすめ物件
- 
				- 
														 
- 
						- 中古一戸建て
- 2,200万円
- 
								
									川西市鼓が滝3丁目 
- 
								能勢電鉄鼓滝 
 
 
- 
														
- 
				- 
														 
- 
						- 中古一戸建て
- 1,880万円
- 
								
									岸和田市下池田町2丁目 
- 
								JR阪和線久米田 
 
 
- 
														
- 
				- 
														 
- 
						- 中古一戸建て
- 4,770万円
- 
								
									茨木市総持寺1丁目 
- 
								阪急電鉄京都線総持寺 
 
 
- 
														
- 
				- 
														 
- 
						- 中古一戸建て
- 2,380万円
- 
								
									泉大津市寿町 
- 
								南海電鉄本線松ノ浜 
 
 
- 
														
- 
				- 
														 
- 
						- 中古一戸建て
- 3,650万円
- 
								
									大阪市住吉区万代5丁目 
- 
								南海電鉄高野線帝塚山 
 
 
- 
														
- 
				- 
														 
- 
						- 中古一戸建て
- 4,490万円
- 
								
									大阪市住吉区万代東2丁目 
- 
								大阪市御堂筋線西田辺 
 
 
- 
														
- 
				- 
														 
- 
						- 中古一戸建て
- 1,450万円
- 
								
									大阪市阿倍野区播磨町3丁目 
- 
								大阪市御堂筋線西田辺 
 
 
- 
														
- 
				- 
														 
- 
						- 中古一戸建て
- 2,490万円
- 
								
									八尾市南本町7丁目 
- 
								JR関西本線八尾 
 
 
- 
														
- 
				- 
														 
- 
						- 中古一戸建て
- 2,280万円
- 
								
									泉大津市昭和町 
- 
								南海電鉄本線泉大津 
 
 
- 
														
- 
				- 
														 
- 
						- 中古一戸建て
- 2,600万円
- 
								
									八尾市緑ヶ丘5丁目 
- 
								近鉄大阪線近鉄八尾 
 
 
- 
														
 
     
                         
                         
                         
                    







 
                






 
                 
             
                    

 
                                            
 
                                             
                                             
                                             
						 
						
担当エージェント:福田 亜翔
【複数件併せてのご案内可能です】気になるあのマンション、エリア内・沿線近くの物件などお客様のご要望に沿った物件を一度にご紹介いたします♪