守口市大久保町3丁目中古戸建
掲載情報更新日:2025年10月28日 次回更新予定日:2025年11月11日
- 3,390万円
-
- 借入ご希望金額
万円 - 借入期間
年 - 借入金利
% - 月々のお支払い金額
円
- 借入ご希望金額
※ 月々のお支払例は目安の試算となりますので、実際の金額とは異なる場合がございます。詳しくは店舗までお問合わせください。
- 守口市大久保町3丁目
-
京阪本線『大和田』 徒歩20分 (約1600m)
京阪本線『古川橋』 徒歩23分 (約1800m)
大阪モノレール『大日』 徒歩24分 (約1900m)
守口市大久保町3丁目中古戸建一戸建て | 物件情報
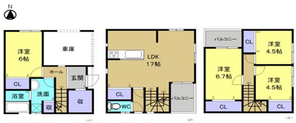
月々9.2万円~ 17帖の広々リビング
☆月々9.2万円~
☆最寄駅から京橋駅まで最短13分
☆17帖LDK
☆駐車場1台※車種による
☆近隣に学校、幼稚園、保育園、公園あり
☆複数スーパーあり
☆他の掲載物件もまとめてご案内可能です。気になる物件をお教え下さい。
☆0120ー684-571
お気軽にお電話ください♪
☆立地のポイント
【大和田駅】徒歩約20分
【古川橋駅】徒歩約23分
【大日駅】徒歩約24分
物件の設備
- 公営水道
- 公共下水
- 都市ガス
物件の特徴
- 3階建以上
物件詳細情報
| 価格 | 3,390万円 | 間取り | 4LDK |
|---|---|---|---|
| 物件種別 | 中古一戸建て | ||
| 所在地 | 大阪府守口市大久保町3丁目 | ||
| アクセス |
|
||
| 建物面積 | 100.84㎡ | 駐車場 | なし |
| 築年月 | 2023年(令和5年)06月築 | ||
| 建物構造 | 木造 3階建 | 工法 | |
| 主要採光 | 東向 | バルコニー | |
| 保証・評価 | |||
| リフォーム | |||
| 土地面積 | 公92.04㎡(27.84坪) | 接道 | 北側(公道)幅 約4.0m 東側(私道)幅 約4.0m |
| 私道 | セットバック | 無 | |
| 地目 | 宅地 | 地勢 | 平坦 |
| 権利 | 所有権 |
||
| 都市計画 | 市街化区域 |
用途地域 | 2種住居 |
| 建ぺい/容積率 | 70% / 200% | 土地国土法 | |
| 許可番号 | 建築基準法 | ||
| 法令制限 | |||
| 小学区 | 藤田小学校 徒歩8分 (約600m) | 中学区 | 梶中学校 徒歩10分 (約800m) |
| 現況 | 居住中 | 引渡 | 相談 |
| その他費用 | |||
| 備考 | |||
| 物件番号 | 4405486 | 取引態様 | 媒介 |
取扱店舗情報
| 電話番号 | 050-5805-9447 |
|---|---|
| 所在地 | 〒536-0006 大阪府大阪市城東区野江4丁目10-13 クリエイト野江内代1F |
| 営業時間 | 10:00~19:00 |
| 定休日 | なし |
| 宅建免許番号 | 国土交通大臣(1)第10706号 |
| アクセス | 店舗への地図はこちら |

来店ご予約
大阪府守口市で価格が似ている物件はこちら
- 大阪府
マイページ物件数 - 15,255件
最近見た物件
-
-

-
- 中古一戸建て
- 1,580万円
-
小田原市飯田岡
-
小田急小田原線螢田
-
大阪府中古一戸建て新着物件
-
-

-
- 中古一戸建て
- 2,780万円
-
守口市南寺方中通1丁目
-
大阪市今里筋線清水駅
-
-
-

-
- 中古一戸建て
- 1,680万円
-
東大阪市東鴻池町4丁目
-
JR片町線鴻池新田駅
-
-
-

-
- 中古一戸建て
- 195万円
-
阪南市舞4丁目
-
南海電鉄本線鳥取ノ荘駅
-
-
-

-
- 中古一戸建て
- 2,480万円
-
八尾市宮町1丁目
-
近鉄大阪線近鉄八尾駅
-
-
-

-
- 中古一戸建て
- 3,380万円
-
東大阪市瓜生堂2丁目
-
近鉄難波・奈良線若江岩田駅
-
-
-

-
- 中古一戸建て
- 3,680万円
-
三島郡島本町広瀬2丁目
-
阪急電鉄京都線水無瀬駅
-
-
-

-
- 中古一戸建て
- 780万円
-
八尾市山本町南8丁目
-
近鉄大阪線河内山本駅
-
- お近くの店舗を探す
-
おすすめ物件
-
-

-
- 中古一戸建て
- 4,580万円
-
大阪市住之江区住之江1丁目
-
南海電鉄本線住ノ江
-
-
-

-
- 中古一戸建て
- 780万円
-
泉南郡熊取町山の手台3丁目
-
JR阪和線熊取
-
-
-

-
- 中古一戸建て
- 1,800万円
-
大阪市淀川区三国本町3丁目
-
阪急電鉄宝塚線三国
-
-
-

-
- 中古一戸建て
- 398万円
-
泉佐野市長滝
-
JR阪和線長滝
-
-
-

-
- 中古一戸建て
- 3,380万円
-
泉大津市曽根町2丁目
-
南海電鉄本線松ノ浜
-
-
-

-
- 中古一戸建て
- 1,780万円
-
堺市中区伏尾
-
南海電鉄泉北線泉ケ丘
-
-
-

-
- 中古一戸建て
- 6,700万円
-
池田市旭丘2丁目
-
阪急電鉄宝塚線石橋阪大前
-
-
-

-
- 中古一戸建て
- 3,650万円
-
大阪市住吉区万代5丁目
-
南海電鉄高野線帝塚山
-
-
-

-
- 中古一戸建て
- 3,250万円
-
大阪市此花区酉島6丁目
-
JR桜島線安治川口
-
-
-

-
- 中古一戸建て
- 2,300万円
-
大阪市阿倍野区阿倍野筋3丁目
-
大阪市谷町線阿倍野
-







担当エージェント:尾関 親代
最寄駅から京橋駅まで最短13分!
落ち着いた住環境でファミリー層にも単身者にも◎♪
住宅ローン相談会開催中です!
ぜひお気軽にお問い合わせください!