宇都宮市西川田東町の中古戸建
掲載情報更新日:2026年03月01日 次回更新予定日:2026年03月15日
- 2,680万円
-
- 借入ご希望金額
万円 - 借入期間
年 - 借入金利
% - 月々のお支払い金額
円
- 借入ご希望金額
※ 月々のお支払例は目安の試算となりますので、実際の金額とは異なる場合がございます。詳しくは店舗までお問合わせください。
- 宇都宮市西川田東町
-
東武宇都宮線『西川田』 徒歩22分 (約1760m)
JR東北本線『雀宮』 徒歩36分 (約2880m)
宇都宮市西川田東町一戸建て | 物件情報
物件の設備
- 電気
- 上水道
- 下水道
- プロパンガス
- コンロ三口
- カウンターキッチン
- システムキッチン
- 2WAYキッチン
- 追焚機能
- トイレ2箇所
- カードキー
- ウォークインクローゼット
- 全居室収納
- シューズインクローク
物件の特徴
- 前道6m以上
- 南側道路面す
- スーパーが近い
- 閑静な住宅街
- 市街地が近い
- 陽当り良好
- 2階建
- 平坦地
- 整形地
物件詳細情報
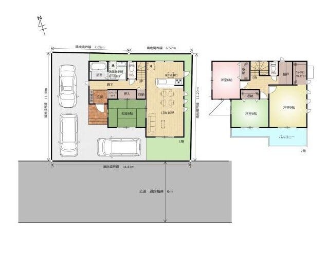
| 価格 | 2,680万円 | 間取り | 4LDK |
|---|---|---|---|
| 物件種別 | 中古一戸建て | ||
| 所在地 | 栃木県宇都宮市西川田東町 | ||
| アクセス |
|
||
| 建物面積 | 公110.12㎡ | 駐車場 | なし |
| 築年月 | 2018年(平成30年)06月築 | ||
| 建物構造 | 木造 2階建 | 工法 | |
| 主要採光 | バルコニー | ||
| 保証・評価 | |||
| リフォーム | |||
| 土地面積 | 公162.67㎡(49.20坪) | 接道 | 南側(公道)幅 約6.0m |
| 私道 | セットバック | ||
| 地目 | 宅地 | 地勢 | 平坦 |
| 権利 | 所有権 |
||
| 都市計画 | 市街化区域 |
用途地域 | 1種住居 |
| 建ぺい/容積率 | 60% / 200% | 土地国土法 | |
| 許可番号 | 建築基準法 | ||
| 法令制限 | 景観法・宅地造成及び特定盛土等規制法 | ||
| 小学区 | 姿川第一小学校 徒歩28分 (約2245m) | 中学区 | 若松原中学校 徒歩20分 (約1532m) |
| 現況 | 居住中 | 引渡 | 相談 |
| その他費用 | |||
| 周辺環境 | セブンイレブン宇都宮兵庫塚店 徒歩3分 (約230m) 宇都宮兵庫塚郵便局 徒歩13分 (約1000m) 星乃珈琲店宇都宮若松原店 徒歩13分 (約1010m) 五代小学校 徒歩29分 (約2245m) 宇都宮市立若松原中学校 徒歩18分 (約1432m) |
||
| 備考 | |||
| 物件番号 | 4411189 | 取引態様 | 媒介 |
取扱店舗情報
| 電話番号 | 028-678-2888 |
|---|---|
| 所在地 | 〒320-0826 栃木県宇都宮市西原町466-1 |
| 営業時間 | 10:00~18:30 |
| 定休日 | 火曜日・水曜日 |
| 宅建免許番号 | 栃木県知事(2)第5075号 |
| アクセス | 店舗への地図はこちら |

来店ご予約
栃木県宇都宮市で価格が似ている物件はこちら
- 栃木県
マイページ物件数 - 6,782件
最近見た物件
栃木県中古一戸建て新着物件
- お近くの店舗を探す
-
おすすめ物件
-
-

-
- 中古一戸建て
- 3,250万円
-
宇都宮市簗瀬町
-
JR東北新幹線宇都宮
-
-
-

-
- 中古一戸建て
- 2,580万円
-
宇都宮市清原台6丁目
-
JRバス清原台6丁目
-
-
-

-
- 中古一戸建て
- 2,500万円
-
那須烏山市南1丁目
-
JR烏山線烏山
-
-
-

-
- 中古一戸建て
- 1,980万円
-
宇都宮市下平出町
-
宇都宮芳賀ライト線平石中央小学校前
-
-
-

-
- 中古一戸建て
- 1,430万円
-
那須塩原市東赤田
-
JRバス西那須野消防署前
-
-
-

-
- 中古一戸建て
- 860万円
-
日光市森友
-
関東バス【今市工高前】
-
-
-

-
- 中古一戸建て
- 3,280万円
-
宇都宮市西刑部町
-
関東バス【中央橋】
-
-
-

-
- 中古一戸建て
- 4,600万円
-
宇都宮市豊郷台3丁目
-
JR東北本線宇都宮
-
-
-

-
- 中古一戸建て
- 4,480万円
-
矢板市乙畑
-
JR東北本線片岡
-
-
-

-
- 中古一戸建て
- 4,180万円
-
那須塩原市松浦町
-
JR東北本線黒磯
-











