北広島市大曲柏葉5丁目の中古戸建
掲載情報更新日:2025年11月06日 次回更新予定日:2025年11月20日
- 1,490万円
-
- 借入ご希望金額
万円 - 借入期間
年 - 借入金利
% - 月々のお支払い金額
円
- 借入ご希望金額
※ 月々のお支払例は目安の試算となりますので、実際の金額とは異なる場合がございます。詳しくは店舗までお問合わせください。
- 北広島市大曲柏葉5丁目
-
JR千歳線『北広島』 バス乗車20分 中央バス 柏葉台団地 停 徒歩6分 (約480m)
北広島市大曲柏葉5丁目一戸建て | 物件情報
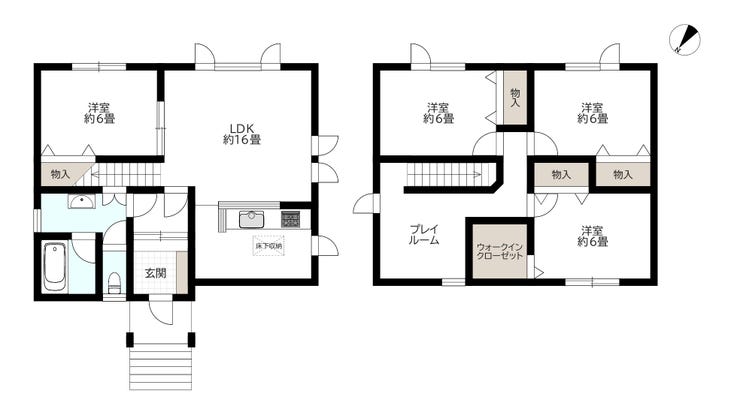
広々LDKと充実の4LDKS。 家族で快適に過ごせる中古戸建です。
全居室収納・ウォークインクローゼット・床下収納など、収納スペースが豊富で片付けしやすい間取り。
ご家族それぞれのプライベートな空間を大切にしながら、リビングではみんなで楽しく過ごせる理想的な設計です。庭付きで、ガーデニングや家庭菜園も楽しめます。
シャッター車庫付きで大切なお車を守れるのも嬉しいポイントです。
リフォーム履歴
・2017年5月…ボイラー交換
・2018年1月…外壁張替え
《周辺環境》
・あおぞら公園 約246m…徒歩4分
・ローソン 北広島大曲柏葉五丁目店 約418m…徒歩6分
・ファミリーマート 北広島大曲工業団地店 約477m…徒歩6分
・業務スーパー 大曲柏葉店 約1392m…徒歩18分
・ジョイフルエーケー 大曲店 車で約4分
・三井アウトレットパーク 札幌北広島 車で約4分
物件の設備
- 電気
- 上水道
- 下水道
- プロパンガス
- 集中プロパン
- コンロ三口
- 温水洗浄便座
- 洗髪洗面化粧台
- ウォークインクローゼット
- 床下収納
- 全居室収納
- 庭
- シャッター車庫
物件の特徴
- 外装リフォーム済
- 前道6m以上
- 2階建
物件詳細情報
| 価格 | 1,490万円 | 間取り | 4LDK+S |
|---|---|---|---|
| 物件種別 | 中古一戸建て | ||
| 所在地 | 北海道北広島市大曲柏葉5丁目 | ||
| アクセス |
|
||
| 建物面積 | 公106.41㎡ | 駐車場 | あり 普通:2台 |
| 築年月 | 2001年(平成13年)08月築 | ||
| 建物構造 | 木造 2階建 | 工法 | |
| 主要採光 | バルコニー | ||
| 保証・評価 | |||
| リフォーム | 【外装】2018年01月 外壁 【その他】2017年05月 ボイラー交換 |
||
| 土地面積 | 公200.2㎡(60.56坪) | 接道 | 北西側(公道)幅 約8.0m 間口 約11.36m |
| 私道 | セットバック | ||
| 地目 | 宅地 | 地勢 | |
| 権利 | 所有権 |
||
| 都市計画 | 市街化区域 |
用途地域 | 1種低層 |
| 建ぺい/容積率 | 40% / 60% | 土地国土法 | |
| 許可番号 | 建築基準法 | ||
| 法令制限 | |||
| 小学区 | 大曲東小学校 徒歩13分 (約1043m) | 中学区 | 大曲中学校 徒歩20分 (約1603m) |
| 現況 | 居住中 | 引渡 | 相談 |
| その他費用 | |||
| 備考 | ・あおぞら公園 約246m…徒歩4分 ・ローソン 北広島大曲柏葉五丁目店 約418m…徒歩6分 ・ファミリーマート 北広島大曲工業団地店 約477m…徒歩6分 ・業務スーパー 大曲柏葉店 約1392m…徒歩18分 ・ジョイフルエーケー 大曲店 車で約4分 ・三井アウトレットパーク 札幌北広島 車で約4分 |
||
| 物件番号 | 4419129 | 取引態様 | 専任 |
取扱店舗情報
| 電話番号 | 011-802-8000 |
|---|---|
| 所在地 | 〒069-0824 北海道江別市東野幌本町3番地10 陶管ビル1階 |
| 営業時間 | 10:00~17:45 |
| 定休日 | 毎週火曜日・水曜日 |
| 宅建免許番号 | 北海道知事石狩(3)第7974号 |
| アクセス | 店舗への地図はこちら |

来店ご予約
北海道北広島市で価格が似ている物件はこちら
- 北海道
マイページ物件数 - 5,986件
北海道中古一戸建て新着物件
-
-

-
- 中古一戸建て
- 599万円
-
北見市相内町
-
JR石北本線相内駅
-
-
-

-
- 中古一戸建て
- 1,900万円
-
札幌市北区新川二条13丁目
-
札幌市南北線北24条駅
-
-
-

-
- 中古一戸建て
- 1,598万円
-
札幌市西区福井7丁目
-
札幌市東西線発寒南駅
-
-
-

-
- 中古一戸建て
- 2,130万円
-
札幌市清田区里塚一条4丁目
-
JR千歳線上野幌駅
-
-
-

-
- 中古一戸建て
- 495万円
-
旭川市春光台四条3丁目
-
JR函館本線旭川駅
-
-
-

-
- 中古一戸建て
- 680万円
-
旭川市永山五条8丁目
-
JR石北本線南永山駅
-
-
-

-
- 中古一戸建て
- 2,480万円
-
札幌市北区新琴似十二条13丁目
-
JR札沼線新琴似駅
-
- お近くの店舗を探す
-
おすすめ物件
-
-

-
- 中古一戸建て
- 3,350万円
-
北見市桜町3丁目
-
JR石北本線北見
-
-
-

-
- 中古一戸建て
- 1,780万円
-
伊達市松ヶ枝町
-
道南バス伊達営業所
-
-
-

-
- 中古一戸建て
- 2,850万円
-
北見市高砂町
-
JR石北本線北見
-
-
-

-
- 中古一戸建て
- 230万円
-
空知郡南幌町西町5丁目
-
夕鉄バス西町3丁目
-
-
-

-
- 中古一戸建て
- 4,980万円
-
札幌市清田区真栄五条3丁目
-
札幌市東豊線福住
-
-
-

-
- 中古一戸建て
- 1,230万円
-
札幌市西区宮の沢四条3丁目
-
札幌市東西線宮の沢
-
-
-

-
- 中古一戸建て
- 300万円
-
余市郡余市町栄町
-
JR函館本線蘭島
-
-
-

-
- 中古一戸建て
- 498万円
-
伊達市舟岡町
-
JR室蘭本線伊達紋別
-
-
-

-
- 中古一戸建て
- 290万円
-
岩見沢市南町四条2丁目
-
JR函館本線岩見沢
-
-
-

-
- 中古一戸建て
- 1,099万円
-
北見市相内町
-
JR石北本線相内
-

















