松戸市八ケ崎1丁目の中古戸建
掲載情報更新日:2025年11月27日 次回更新予定日:2025年12月11日
- 2,699万円
-
- 借入ご希望金額
万円 - 借入期間
年 - 借入金利
% - 月々のお支払い金額
円
- 借入ご希望金額
※ 月々のお支払例は目安の試算となりますので、実際の金額とは異なる場合がございます。詳しくは店舗までお問合わせください。
- 松戸市八ケ崎1丁目
-
JR千代田・常磐緩行線『北小金』 徒歩21分 (約1680m)
松戸市八ケ崎1丁目一戸建て | 物件情報
◆テラスモール徒歩6分! ◆固定階段付き屋根裏収納◎ ◆北西角地 ◆小学校10分・中学校13分!
◆テラスモール徒歩6分! ◆固定階段付き屋根裏収納◎ ◆北西角地 ◆小学校10分・中学校13分!
物件の設備
- 電気
- 公営水道
- 公共下水
- 都市ガス
- 給湯
- コンロ三口
- グリル
- システムキッチン
- バス
- ユニットバス
- オートバス
- バス1坪以上
- 追焚機能
- 浴室乾燥機
- 浴室に窓
- トイレ
- トイレ2箇所
- 温水洗浄便座
- 室内洗濯機置場
- 洗髪洗面化粧台
- 洗面所独立
- リビング階段
- 2面採光
- フローリング
- 全室フローリング
- シャッター雨戸
- クローゼット
- ウォークインクローゼット
- 全居室収納
- 屋根裏収納
- シューズボックス
- ワイドバルコニー
物件の特徴
- 南向
- 小学校徒歩10分以内
- スーパーが近い
- 閑静な住宅街
- 通風良好
- 陽当り良好
- 2階建
- 角地
- 即入居可
物件詳細情報
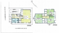
| 価格 | 2,699万円 | 間取り | 3LDK |
|---|---|---|---|
| 物件種別 | 中古一戸建て | ||
| 所在地 | 千葉県松戸市八ケ崎1丁目 | ||
| アクセス |
|
||
| 建物面積 | 75.76㎡ | 駐車場 | あり 普通:1台 |
| 築年月 | 2010年(平成22年)02月築 | ||
| 建物構造 | 木造 2階建 | 工法 | |
| 主要採光 | バルコニー | ||
| 保証・評価 | |||
| リフォーム | |||
| 土地面積 | 79.81㎡(24.14坪) | 接道 | 北側(公道)幅 約3.9m 西側(公道)幅 約3.8m |
| 私道 | セットバック | ||
| 地目 | 宅地 | 地勢 | |
| 権利 | 所有権 |
||
| 都市計画 | 市街化区域 |
用途地域 | 1種低層 |
| 建ぺい/容積率 | 50% / 100% | 土地国土法 | |
| 許可番号 | 建築基準法 | ||
| 法令制限 | |||
| 小学区 | 八ヶ崎第二小学校 徒歩10分 (約800m) | 中学区 | 小金南中学校 徒歩13分 (約1000m) |
| 現況 | 空 | 引渡 | 即 |
| その他費用 | |||
| 周辺環境 | 北小金駅 徒歩21分 (約1640m) 松戸市立八ケ崎第二小学校 徒歩10分 (約800m) 松戸市立小金南中学校 徒歩13分 (約1000m) |
||
| 備考 | ◆テラスモール徒歩6分! ◆固定階段付き屋根裏収納◎ ◆北西角地 ◆小学校10分・中学校13分! | ||
| 物件番号 | 4429931 | 取引態様 | 媒介 |
取扱店舗情報
| 電話番号 | 047-710-7935 |
|---|---|
| 所在地 | 〒271-0065 千葉県松戸市南花島1丁目7-6 |
| 営業時間 | 10:00~18:00 |
| 定休日 | 水曜日 |
| 宅建免許番号 | 国土交通大臣(2)第9365号 |
| アクセス | 店舗への地図はこちら |

来店ご予約
千葉県松戸市で価格が似ている物件はこちら
- 千葉県
マイページ物件数 - 2,842件
最近見た物件
-
-

-
- 中古マンション
- 1,880万円
-
豊中市新千里南町2丁目
-
北大阪急行南北線桃山台
-
-
-

-
- 中古一戸建て
- 980万円
-
防府市多々良1丁目
-
JR山陽本線防府
-
-
-

-
- 中古一戸建て
- 2,780万円
-
松戸市二ツ木
-
JR千代田・常磐緩行線北小金
-
千葉県中古一戸建て新着物件
-
-

-
- 中古一戸建て
- 4,680万円
-
千葉市中央区蘇我3丁目
-
JR京葉線蘇我駅
-
-
-

-
- 中古一戸建て
- 2,490万円
-
千葉市若葉区殿台町
-
千葉都市モノレール作草部駅
-
-
-

-
- 中古一戸建て
- 4,380万円
-
鎌ケ谷市中央2丁目
-
東武野田線新鎌ヶ谷駅
-
-
-

-
- 中古一戸建て
- 7,498万円
-
松戸市新松戸北1丁目
-
JR千代田・常磐緩行線新松戸駅
-
-
-

-
- 中古一戸建て
- 3,580万円
-
船橋市三山4丁目
-
京成本線京成大久保駅
-
-
-

-
- 中古一戸建て
- 2,480万円
-
佐倉市西志津7丁目
-
京成本線志津駅
-
-
-

-
- 中古一戸建て
- 3,180万円
-
松戸市新松戸南3丁目
-
JR千代田・常磐緩行線新松戸駅
-
- お近くの店舗を探す
-
おすすめ物件
-
-

-
- 中古一戸建て
- 2,880万円
-
木更津市八幡台3丁目
-
JR内房線木更津
-
-
-

-
- 中古一戸建て
- 980万円
-
柏市南逆井3丁目
-
京成電鉄松戸線五香
-
-
-

-
- 中古一戸建て
- 3,499万円
-
取手市井野
-
JR常磐線取手
-
-
-

-
- 中古一戸建て
- 2,380万円
-
成田市玉造2丁目
-
JR成田線成田
-
-
-

-
- 中古一戸建て
- 1,480万円
-
松戸市古ケ崎
-
JR常磐線松戸
-
-
-

-
- 中古一戸建て
- 3,880万円
-
成田市はなのき台2丁目
-
JR成田線成田
-
-
-

-
- 中古一戸建て
- 5,570万円
-
流山市平和台5丁目
-
流鉄流山線流山
-
-
-

-
- 中古一戸建て
- 2,080万円
-
柏市逆井5丁目
-
東武野田線逆井
-
-
-

-
- 中古一戸建て
- 2,380万円
-
松戸市根木内
-
JR千代田・常磐緩行線北小金
-
-
-

-
- 中古一戸建て
- 5,380万円
-
柏市西山1丁目
-
京成電鉄松戸線常盤平
-








担当エージェント:羽田 優
【家を買うならハウスドゥ 松戸中央!へ】
【松戸市は子育て世帯にやさしい!】
■共働き子育てしやすい街2年連続1位!
■待機児童9年連続ゼロ!
◆物件のご見学、詳細を知りたい
◆住宅ローンのご相談
など、少しでも気になると思ったら
お気軽にフリーダイヤル【0800-800-7935】までお問い合わせ下さい!