伊東市銀座元町の中古戸建
NEW 10.04掲載情報更新日:2025年10月04日 次回更新予定日:2025年10月18日
- 2,580万円
-
- 借入ご希望金額
万円 - 借入期間
年 - 借入金利
% - 月々のお支払い金額
円
- 借入ご希望金額
※ 月々のお支払例は目安の試算となりますので、実際の金額とは異なる場合がございます。詳しくは店舗までお問合わせください。
- 伊東市銀座元町
-
JR伊東線『伊東』 徒歩11分 (約880m)
伊東市銀座元町一戸建て | 物件情報
頭金なし諸経費込み7.8万円/月でご購入可能!将来の負担を抑えた無理のない住宅ローンを提案いたします
【プラス月1.8万円でオーダーメイドの内装に】
当店でご内見いただくメリットは、リノベーションに精通した担当者がその場で価格提案ができ、ご要望をしっかりと受け止めます。 リノベーションのテイストは、ホテルライク・北欧風・西海岸風・アメリカンスタイルなど、多様なお客さまの理想を実現いたします。 またご購入後も5年、10年先の外壁塗装やシロアリ予防、小規模・大規模な修繕、台風や大雨による火災保険を活用したリフォームにも迅速対応が可能です。 物件のご購入から資金計画、おしゃれでこだわりのリノベーション、火災保険まで、ワンストップでご提供いたします。 ご購入後のお客さまを、全力でサポートさせていただくことをお約束いたします。
【資金計画に絶対の自信があります!】
当社は住宅ローンに強い不動産会社です。多くの「家を持ちたい」というご要望を叶えてきました。
◆頭金がないけど買えるの?
◆借金があるけど買えるの?
◆滞納歴があるけど買えるの?
◆シングルマザーでも買えるの?
◆外国人でも買えるの?
◆収入が低くても買えるの?
物件の設備
- 電気
- 上水道
- 公営水道
- バス
- トイレ
- トイレ2箇所
- トイレ3箇所
- エレベーター
物件の特徴
- 前道6m以上
- 3階建以上
物件詳細情報
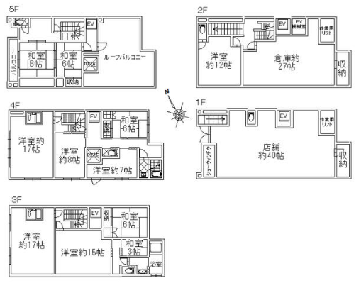
価格 | 2,580万円 | 間取り | 9LDK+S |
---|---|---|---|
物件種別 | 中古一戸建て | ||
所在地 | 静岡県伊東市銀座元町 | ||
アクセス |
|
||
建物面積 | 公440.06㎡ | 駐車場 | なし |
築年月 | 1994年(平成6年)02月築 | ||
建物構造 | 鉄骨 5階建 地下1階 | 工法 | |
主要採光 | バルコニー | ||
保証・評価 | |||
リフォーム | |||
土地面積 | 公121.61㎡(36.78坪) | 接道 | 西側(公道)幅 約10.0m 間口 約7.50m |
私道 | セットバック | ||
地目 | 宅地 | 地勢 | |
権利 | 所有権 |
||
都市計画 | 非線引区域 |
用途地域 | 商業 |
建ぺい/容積率 | 80% / 400% | 土地国土法 | |
許可番号 | 建築基準法 | ||
法令制限 | |||
小学区 | 東小学校 徒歩9分 (約685m) | 中学区 | 北中学校 徒歩16分 (約1271m) |
現況 | 居住中 | 引渡 | 相談 |
その他費用 | |||
備考 | 店舗付き住居 1F:倉庫 2F:店舗 3~5F:居住スペース |
||
物件番号 | 4436128 | 取引態様 | 媒介 |
取扱店舗情報
ハウスドゥ 沼津香貫 株式会社東静プランニング 店舗詳細ページへ
電話番号 | 055-935-6102 |
---|---|
所在地 | 〒410-0836 静岡県沼津市吉田町38-4 |
営業時間 | 10:00~19:00 |
定休日 | 水曜日、第一火曜日、年末年始 |
宅建免許番号 | 国土交通大臣(1)第10183号 |
アクセス | 店舗への地図はこちら |
来店ご予約
静岡県伊東市で価格が似ている物件はこちら
- 静岡県
マイページ物件数 - 2,773件
最近見た物件
-
-
-
- 中古一戸建て
- 2,299万円
-
横手市横手町字六ノ口
-
JR奥羽本線横手
-
-
-
-
- 中古一戸建て
- 2,280万円
-
伊東市八幡野
-
伊豆急行伊豆高原
-
静岡県中古一戸建て新着物件
- お近くの店舗を探す
-
おすすめ物件
-
-
-
- 中古一戸建て
- 2,580万円
-
静岡市葵区東瀬名町
-
JR東海道本線東静岡
-
-
-
-
- 中古一戸建て
- 3,990万円
-
浜松市中央区小池町
-
遠州鉄道さぎの宮
-
-
-
-
- 中古一戸建て
- 3,400万円
-
裾野市富沢
-
JR御殿場線裾野
-
-
-
-
- 中古一戸建て
- 3,350万円
-
静岡市葵区瀬名7丁目
-
JR東海道本線草薙
-
-
-
-
- 中古一戸建て
- 2,980万円
-
三島市東大場1丁目
-
伊豆箱根鉄道駿豆線三島二日町
-
-
-
-
- 中古一戸建て
- 3,200万円
-
沼津市寿町
-
JR東海道本線沼津
-
-
-
-
- 中古一戸建て
- 1,598万円
-
藤枝市藤岡4丁目
-
JR東海道本線西焼津
-
-
-
-
- 中古一戸建て
- 1,980万円
-
御殿場市深沢
-
JR御殿場線御殿場
-
-
-
-
- 中古一戸建て
- 2,180万円
-
浜松市中央区和合町
-
JR東海道本線浜松
-
-
-
-
- 中古一戸建て
- 4,980万円
-
三島市徳倉3丁目
-
JR東海道本線三島
-
住宅ローンにまつわるご不安やお悩みは全てご相談下さい。 当店では毎日21時まで無料相談会を実施していますので、お仕事帰りなどにご利用いただけたらと思います。 フリーダイヤル0120-722-778かLINEでご予約ください。経験豊富なスタッフが、安心して住まいの購入を進めていただけるよう、資金計画から強力にサポートいたします。
【当店のできること】
・物件の選定・周辺環境・資産性の評価
・物件の価格や近隣相場の調査
・建築分野におけるアドバイス
・役所調査・物件調査
・管理規約の確認(区分所有マンションの場合)
・重要事項説明書の作成・事前説明
・住宅ローンの事前審査・アドバイス・斡旋
・インスペクション業者の紹介
・リフォーム・リノベーション・修繕のアドバイス
・内覧時におけるリフォーム費用のご提示
・金消契約の立会い
・お引渡後のトラブルのお手伝い
【当店のできないことです】
・しつこい営業はできません
・強引な営業もできません
・売りたいがための嘘もつけません
・エージェントの意見を押し付けることもできません