Loading
  1. TOP>
  2. 中古一戸建て>
  3. 関東>
  4. 埼玉県>
  5. 入間郡毛呂山町>
  6. 目白台3丁目>
  7. 入間郡毛呂山町目白台3丁目の中古戸建

入間郡毛呂山町目白台3丁目の中古戸建

NEW 10.07

掲載情報更新日:2025年10月07日 次回更新予定日:2025年10月21日

  • 1,230万円
    • 借入ご希望金額
      万円
    • 借入期間
    • 借入金利
    • 月々のお支払い金額

※ 月々のお支払例は目安の試算となりますので、実際の金額とは異なる場合がございます。詳しくは店舗までお問合わせください。

  • 入間郡毛呂山町目白台3丁目
  • 東武越生線『東毛呂』 徒歩30分 (約2400m)
    東武越生線『武州唐沢』 徒歩30分 (約2400m)
取扱会社:ハウスドゥ 上福岡  GLOBAL HOLDINGS株式会社
  • この物件に資料請求・問い合わせをする
  • ■お電話はこちら 通話料無料 0120-141-441

入間郡毛呂山町目白台3丁目一戸建て | 物件情報

こだわりの注文住宅・南面道路に面してる・公園が近く緑豊か・駐車場2台完備

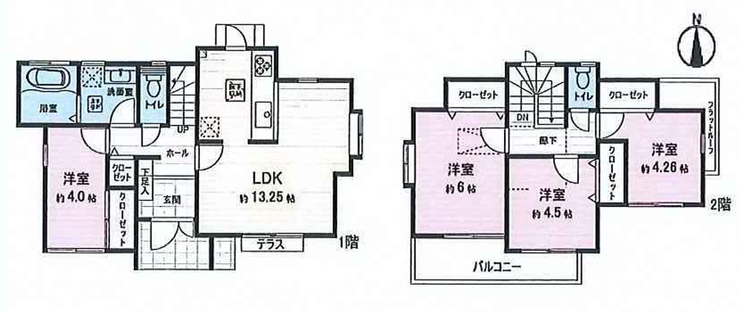
【間取り】
土地面積176.46平米、建物面積83.63平米の4LDKの間取り

【間取り】
土地面積176.46平米、建物面積83.63平米の4LDKの間取り

【外観】
東武越生線「東毛呂」駅徒歩30分、「武州唐沢」駅徒歩30分の立地

【外観】
東武越生線「東毛呂」駅徒歩30分、「武州唐沢」駅徒歩30分の立地

取扱会社
ハウスドゥ 上福岡  
  • この物件に資料請求・問い合わせをする
  • ■お電話はこちら 通話料無料 0120-141-441

アピールポイント

~只今キャンペーン中~ご成約頂いたお客様にもれなく1万円分のクオカードを進呈中~
・東武越生線「東毛呂」駅徒歩30分、「武州唐沢」駅徒歩30分の立地
・土地面積176.46平米、建物面積83.63平米の4LDKの間取り
・こだわりの注文住宅
・駐車スペース2台完備
・公園が近く緑豊かな立地
・南向き陽当たり良好
~お気軽にお問い合わせ下さい~

物件の設備

  • 公営水道
  • 公共下水
  • プロパンガス
  • 集中プロパン
  • IHクッキングヒータ
  • コンロ三口
  • カウンターキッチン
  • システムキッチン
  • バス
  • ユニットバス
  • 浴室に窓
  • トイレ
  • 室内洗濯機置場
  • 洗髪洗面化粧台
  • 洗面所独立
  • 2面採光
  • 3面採光
  • 出窓
  • フローリング
  • 全室フローリング
  • クローゼット
  • クローゼット3箇所
  • 全居室収納
  • バルコニー
  • ワイドバルコニー
  • 南面バルコニー
  • 2WAYバルコニー

物件の特徴

  • 南向
  • 前道6m以上
  • 南側道路面す
  • 緑豊かな住宅地
  • スーパーが近い
  • 通風良好
  • 陽当り良好
  • 2階建

物件詳細情報

担当エージェント:加藤 柊

弊社はより多くの方が購入し易いリーズナブルな価格の中古物件を取り揃えております。お客様一人一人のニーズに合った物件探しをモットーに全力でサポート致します。是非お気軽にご相談下さい。

価格 1,230万円 間取り 4LDK
物件種別 中古一戸建て
所在地 埼玉県入間郡毛呂山町目白台3丁目
アクセス
  • 東武越生線『東毛呂』 徒歩30分 (約2400m)
  • 東武越生線『武州唐沢』 徒歩30分 (約2400m)
建物面積 公83.63㎡ 駐車場 あり 普通:2台
築年月 2008年(平成20年)08月築
建物構造 木造 2階建 工法
主要採光 南向 バルコニー 南向7.00㎡
保証・評価
リフォーム
土地面積 公176.46㎡(53.37坪) 接道 南側(公道)幅 約6.0m
私道 セットバック
地目 宅地 地勢
権利 所有権
都市計画 市街化区域
用途地域 1種低層
建ぺい/容積率 50% / 100% 土地国土法
許可番号 建築基準法
法令制限
小学区 中学区
現況 引渡 相談
その他費用
周辺環境 毛呂山町立川角小学校 徒歩25分 (約1960m)
毛呂山町立立川角中学校 徒歩34分 (約2660m)
ながせ幼稚園 徒歩27分 (約2120m)
山吹保育園 徒歩22分 (約1740m)
ローソン 毛呂山箕和田店 徒歩11分 (約880m)
イオンスタイル毛呂山 徒歩30分 (約2340m)
いなげや 毛呂店 徒歩31分 (約2480m)
ウエルシア毛呂山川角店 徒歩27分 (約2100m)
鳩山郵便局 徒歩28分 (約2200m)
街かどのクリニック 徒歩29分 (約2300m)
備考
物件番号 4440023 取引態様 媒介

取扱店舗情報

ハウスドゥ 上福岡  GLOBAL HOLDINGS株式会社 店舗詳細ページへ

電話番号 049-264-1010
所在地 〒356-0006
埼玉県ふじみ野市霞ケ丘1丁目2番27 ココネ上福岡1F
営業時間 9:00~19:00
定休日 水曜日、年末年始
宅建免許番号 埼玉県知事(3)第22701号
アクセス 店舗への地図はこちら

ハウスドゥ  上福岡の外観

この物件に関する資料請求・お問合せ

通話料無料 0120-141-441

お問い合わせの際に「ホームページを見た」といっていただくとお話がスムーズになります。

来店ご予約

ウィンドウを閉じる

ハウスドゥ 上福岡  GLOBAL HOLDINGS株式会社への地図

  • ハウスドゥ  上福岡の地図
  • ハウスドゥ  上福岡の外観

GoogleMapで地図を見る

ウィンドウを閉じる

埼玉県入間郡毛呂山町で価格が似ている物件はこちら

戻る

次へ

埼玉県入間郡毛呂山町の 中古一戸建て 一覧から探す

埼玉県入間郡毛呂山町で種別を変更して探す

埼玉県
マイページ物件数
3,707

マイページサービス

新規登録(無料)
  • 物件探しがもっと便利に
  • 希望情報をいち早くお届け
  • マイページ物件が閲覧可能

最近見た物件

埼玉県中古一戸建て新着物件

お近くの店舗を探す

おすすめ物件

無料アプリ