富士見市大字水子の中古戸建
掲載情報更新日:2026年04月06日 次回更新予定日:2026年04月20日
- 1,880万円
-
- 借入ご希望金額
万円 - 借入期間
年 - 借入金利
% - 月々のお支払い金額
円
- 借入ご希望金額
※ 月々のお支払例は目安の試算となりますので、実際の金額とは異なる場合がございます。詳しくは店舗までお問合わせください。
- 富士見市大字水子
-
東武東上線『みずほ台』 徒歩13分 (約1040m)
東武東上線『鶴瀬』 徒歩25分 (約2000m)
東武東上線『柳瀬川』 徒歩34分 (約2700m)
富士見市大字水子一戸建て | 物件情報
生活利便と自然の調和が魅力の閑静な住宅地。駅徒歩13分、都心アクセス良好!
【物件のおすすめポイント!】
◆ 東武東上線「みずほ台」駅徒歩13分、都心へのアクセスも良好(池袋32分、新宿46分、東京55分)
◆ 東南側5m公道に接道、整形された区画の落ち着いた住宅街
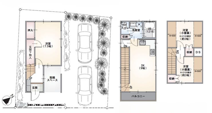
◆ 土地面積90.36㎡(約27.33坪)、建物面積67.90㎡、木造スレート葺3階建
◆ 3DKの間取りに加え駐輪スペースを確保、各居室に収納あり
◆ 平成9年築、現在空室につき内覧もスムーズ、引渡しも即可能
◆ 第一種低層住居専用地域、建ぺい率50%・容積率80%の住環境
◆ 生活利便施設が徒歩圏に充実(東武ストア13分、コープみらい8分、ウェルシア6分、セブンイレブン11分)
◆ 教育環境良好、学区内のみずほ台小学校・本郷中学校へ徒歩9分、保育園も複数利用可能
◆ 公園も近隣に点在(水子貝塚公園徒歩9分、みずほ台中央公園徒歩6分)で子育てにも適した住環境
◆ 駐車スペース2台分付きでご家族や来客にも対応可能
物件の設備
- 電気
- 公営水道
- 公共下水
- プロパンガス
- 個別プロパン
- コンロ三口
- ユニットバス
- トイレ
- バルコニー
- ハイルーフ駐車可能
物件の特徴
- 駅まで平坦
- 小学校徒歩10分以内
- スーパーが近い
- 閑静な住宅街
- 周辺交通量少なめ
- 市街地が近い
- 都市近郊
- 通風良好
- 陽当り良好
- 3階建以上
- 即入居可
物件詳細情報
| 価格 | 1,880万円 | 間取り | 3DK |
|---|---|---|---|
| 物件種別 | 中古一戸建て | ||
| 所在地 | 埼玉県富士見市大字水子 | ||
| アクセス |
|
||
| 建物面積 | 公67.91㎡ | 駐車場 | あり 普通:2台 |
| 築年月 | 1997年(平成9年)04月築 | ||
| 建物構造 | 木造 木造スレート葺 3階建 | 工法 | |
| 主要採光 | 南東向 | バルコニー | 南東向6.00㎡ |
| 保証・評価 | |||
| リフォーム | |||
| 土地面積 | 公90.36㎡(27.33坪) | 接道 | 南東側(公道)幅 約5.0m |
| 私道 | セットバック | ||
| 地目 | 宅地 | 地勢 | |
| 権利 | 所有権 |
||
| 都市計画 | 市街化区域 |
用途地域 | 1種低層 |
| 建ぺい/容積率 | 50% / 80% | 土地国土法 | |
| 許可番号 | 建築基準法 | ||
| 法令制限 | |||
| 小学区 | みずほ台小学校 徒歩9分 (約660m) | 中学区 | 本郷中学校 徒歩9分 (約660m) |
| 現況 | 空 | 引渡 | 即 |
| その他費用 | |||
| 周辺環境 | 富士見市立みずほ台小学校 徒歩10分 (約730m) 富士見市立本郷中学校 徒歩11分 (約820m) みずほ台駅(東口) 徒歩12分 (約950m) ウェルシア富士見水谷店 徒歩6分 (約420m) コープみらい コープみずほ台店 徒歩7分 (約550m) はまだ内科クリニック 徒歩7分 (約530m) 水子貝塚公園 徒歩9分 (約700m) ローソン 富士見水谷店 徒歩8分 (約620m) 富士見東台郵便局 徒歩8分 (約570m) 埼玉りそな銀行 みずほ台支店 徒歩12分 (約950m) |
||
| 備考 | 【充実した周辺施設!】 ・富士見市立みずほ台小学校まで徒歩10分(約730m) ・富士見市立本郷中学校まで徒歩11分(約820m) ・みずほ台駅(東口)まで徒歩12分(約950m) ・ウェルシア富士見水谷店まで徒歩6分(約420m) ・コープみらい コープみずほ台店まで徒歩7分(約550m) ・はまだ内科クリニックまで徒歩7分(約530m) ・水子貝塚公園まで徒歩9分(約700m) ・ローソン 富士見水谷店まで徒歩8分(約620m) ・富士見東台郵便局まで徒歩8分(約570m) ・埼玉りそな銀行 みずほ台支店まで徒歩12分(約950m) |
||
| 物件番号 | 4444586 | 取引態様 | 媒介 |
取扱店舗情報
ハウスドゥ ときわ台駅南口 アジアスケープ株式会社 店舗詳細ページへ
| 電話番号 | 03-5926-3188 |
|---|---|
| 所在地 | 〒174-0072 東京都板橋区南常盤台2丁目1-1 常南ビル4F |
| 営業時間 | 10:00~18:30 |
| 定休日 | 火曜日、水曜日 |
| 宅建免許番号 | 東京都知事(1)第106121号 |
| アクセス | 店舗への地図はこちら |

来店ご予約
- 埼玉県
マイページ物件数 - 3,164件
最近見た物件
埼玉県中古一戸建て新着物件
-
-

-
- 中古一戸建て
- 1,978万円
-
桶川市下日出谷西2丁目
-
JR高崎線桶川駅
-
-
-

-
- 中古一戸建て
- 3,340万円
-
川口市南鳩ヶ谷2丁目
-
埼玉高速鉄道南鳩ヶ谷駅
-
-
-

-
- 中古一戸建て
- 3,580万円
-
さいたま市北区奈良町
-
湘南新宿ライン高海宮原駅
-
-
-

-
- 中古一戸建て
- 1,880万円
-
白岡市白岡
-
JR東北本線白岡駅
-
-
-

-
- 中古一戸建て
- 8,780万円
-
川口市末広2丁目
-
埼玉高速鉄道川口元郷駅
-
-
-

-
- 中古一戸建て
- 4,280万円
-
戸田市笹目4丁目
-
JR埼京線北戸田駅
-
-
-

-
- 中古一戸建て
- 2,980万円
-
川口市前川3丁目
-
JR京浜東北・根岸線蕨駅
-
- お近くの店舗を探す
-
おすすめ物件
-
-

-
- 中古一戸建て
- 2,450万円
-
上尾市中妻5丁目
-
JR高崎線北上尾
-
-
-

-
- 中古一戸建て
- 2,980万円
-
吉川市大字保
-
JR武蔵野線吉川
-
-
-

-
- 中古一戸建て
- 3,480万円
-
上尾市大字原市
-
埼玉新都市交通沼南
-
-
-

-
- 中古一戸建て
- 1,680万円
-
上尾市泉台3丁目
-
JR高崎線桶川
-
-
-

-
- 中古一戸建て
- 2,699万円
-
三郷市早稲田8丁目
-
JR武蔵野線三郷
-
-
-

-
- 中古一戸建て
- 1,550万円
-
川越市大字砂新田
-
東武東上線新河岸
-
-
-

-
- 中古一戸建て
- 1,999万円
-
さいたま市見沼区大字中川
-
JR東北本線大宮
-
-
-

-
- 中古一戸建て
- 2,399万円
-
さいたま市見沼区深作2丁目
-
東武野田線七里
-
-
-

-
- 中古一戸建て
- 1,900万円
-
川越市大塚2丁目
-
東武東上線川越
-
-
-

-
- 中古一戸建て
- 3,799万円
-
さいたま市緑区大間木2丁目
-
JR武蔵野線東浦和
-





































みずほ台駅から徒歩13分というアクセスの良さに加え、都心主要駅へもスムーズに行ける立地が本物件の魅力です。池袋までは約32分、新宿や渋谷へも1時間以内で到着でき、通勤・通学の利便性を求める方に適しています。周辺は区画の整った閑静な住宅街で、落ち着いた住環境が広がっています。
生活利便施設も充実しており、日々の買物は徒歩圏のスーパーやコンビニで十分まかなえます。徒歩6分のみずほ台中央公園や徒歩9分の水子貝塚公園など、自然を感じられる場所も近くにあり、小さなお子様の遊び場やご家族の憩いの場として活用できます。また、学区内のみずほ台小学校・本郷中学校はいずれも徒歩9分と通学も安心の距離。保育園も複数選択肢があり、子育て世帯には嬉しい条件です。
建物は平成9年築の木造3階建、3DKの使いやすい間取りに駐輪スペースも確保。各居室には収納が備わっており、住空間をすっきり保てます。駐車スペースは2台分あり、お車を複数所有するご家庭や来客時にも安心です。現況は空室のため、内覧スケジュールも柔軟に対応でき、引渡しも即可能です。ぜひ現地にて周辺環境と合わせてご覧ください。