中古戸建 西尾市熊味町北十五夜
掲載情報更新日:2026年04月09日 次回更新予定日:2026年04月23日
- 2,180万円
-
- 借入ご希望金額
万円 - 借入期間
年 - 借入金利
% - 月々のお支払い金額
円
- 借入ご希望金額
※ 月々のお支払例は目安の試算となりますので、実際の金額とは異なる場合がございます。詳しくは店舗までお問合わせください。
- 西尾市熊味町北十五夜
-
名鉄西尾線『西尾』 徒歩17分 (約1300m)
中古戸建 西尾市熊味町北十五夜一戸建て | 物件情報
物件の設備
- 上水道
- 下水道
- プロパンガス
- バス
- 浴室に窓
- トイレ
- タンクレストイレ
- 室内洗濯機置場
- 洗面所独立
- LDK15畳以上
- 和室
- 全居室6畳以上
- 出窓
- 縁側
物件詳細情報
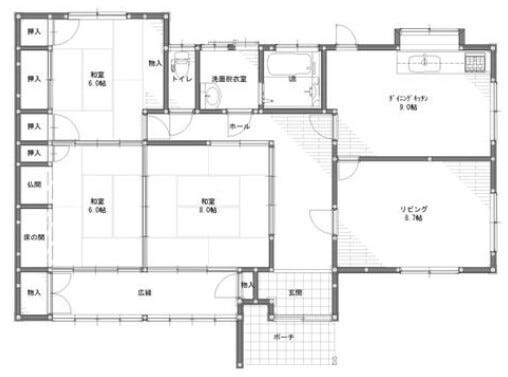
| 価格 | 2,180万円 | 間取り | 3LDK |
|---|---|---|---|
| 物件種別 | 中古一戸建て | ||
| 所在地 | 愛知県西尾市熊味町北十五夜 | ||
| アクセス |
|
||
| 建物面積 | 100.55㎡ | 駐車場 | なし |
| 築年月 | 1981年(昭和56年)10月築 | ||
| 建物構造 | 木造 1階建 | 工法 | |
| 主要採光 | バルコニー | ||
| 保証・評価 | |||
| リフォーム | |||
| 土地面積 | 295.4㎡(89.35坪) | 接道 | 南東側(私道)幅 約4.0m 間口 約4.00m |
| 私道 | セットバック | ||
| 地目 | 宅地(一部 公衆用道路含む) | 地勢 | |
| 権利 | 所有権 |
||
| 都市計画 | 市街化区域 |
用途地域 | 1種中高 |
| 建ぺい/容積率 | 60% / 150% | 土地国土法 | |
| 許可番号 | 建築基準法 | ||
| 法令制限 | 法22条区域・第一種高度地区高さ制限15m | ||
| 小学区 | 花ノ木小学校 徒歩22分 (約1700m) | 中学区 | 西尾中学校 徒歩19分 (約1500m) |
| 現況 | 空 | 引渡 | 相談 |
| その他費用 | |||
| 周辺環境 | ゲンキー熊味店 徒歩7分 (約550m) セブン-イレブン 西尾徳次町店 徒歩6分 (約470m) 西尾郵便局 徒歩9分 (約650m) ドミー 丁田店 徒歩11分 (約840m) 西尾市役所 徒歩13分 (約990m) フェルナ 道光寺店 徒歩13分 (約1010m) スギ薬局 熊味店 徒歩11分 (約870m) ヤマダデンキ テックランド西尾店 徒歩14分 (約1060m) ヴェルサウォーク西尾 徒歩15分 (約1160m) 西尾市民病院 徒歩16分 (約1270m) |
||
| 備考 | ・公衆用道路:145㎡(持分2/1) ・他私道面積:145㎡ |
||
| 物件番号 | 4448735 | 取引態様 | 媒介 |
取扱店舗情報
| 電話番号 | 0563-64-3033 |
|---|---|
| 所在地 | 〒445-0894 愛知県西尾市上町泡原17番地2 |
| 営業時間 | 9:00~18:00 |
| 定休日 | 水曜日、年末年始 |
| 宅建免許番号 | 国土交通大臣(1)第10568号 |
| アクセス | 店舗への地図はこちら |

来店ご予約
愛知県西尾市で価格が似ている物件はこちら
- 愛知県
マイページ物件数 - 32,057件
愛知県中古一戸建て新着物件
-
-

-
- 中古一戸建て
- 2,399万円
-
清須市西市場1丁目
-
名鉄名古屋本線新清洲駅
-
-
-

-
- 中古一戸建て
- 1,500万円
-
豊川市諏訪2丁目
-
名鉄豊川線諏訪町駅
-
-
-

-
- 中古一戸建て
- 2,980万円
-
名古屋市緑区大将ケ根1丁目
-
名鉄名古屋本線中京競馬場前駅
-
-
-

-
- 中古一戸建て
- 3,780万円
-
愛知郡東郷町北山台2丁目
-
名鉄豊田線日進駅
-
-
-

-
- 中古一戸建て
- 1,500万円
-
豊川市諏訪2丁目
-
名鉄豊川線諏訪町駅
-
-
-

-
- 中古一戸建て
- 1,990万円
-
岡崎市真福寺町字落合
-
愛知環状鉄道大門駅
-
-
-

-
- 中古一戸建て
- 2,550万円
-
清須市朝日五条
-
JR東海交通城北線尾張星の宮駅
-
- お近くの店舗を探す
-
おすすめ物件
-
-

-
- 中古一戸建て
- 1,080万円
-
常滑市大鳥町3丁目
-
名鉄常滑線榎戸
-
-
-

-
- 中古一戸建て
- 770万円
-
犬山市大字橋爪字四郎丸
-
名鉄犬山線犬山口
-
-
-

-
- 中古一戸建て
- 3,699万円
-
豊川市西桜木町1丁目
-
JR飯田線豊川
-
-
-

-
- 中古一戸建て
- 1億2,000万円
-
名古屋市千種区大島町2丁目
-
名古屋市東山線覚王山
-
-
-

-
- 中古一戸建て
- 3,980万円
-
知多郡東浦町大字石浜字南ヶ丘
-
JR武豊線石浜
-
-
-

-
- 中古一戸建て
- 2,400万円
-
愛西市北河田町郷前
-
名鉄津島線藤浪
-
-
-

-
- 中古一戸建て
- 3,380万円
-
豊田市美里1丁目
-
名鉄三河線豊田市
-
-
-

-
- 中古一戸建て
- 2,100万円
-
知多郡東浦町大字緒川字上高根台
-
名鉄河和線白沢
-
-
-

-
- 中古一戸建て
- 2,899万円
-
瀬戸市市場町
-
名鉄瀬戸線新瀬戸
-
-
-

-
- 中古一戸建て
- 2,280万円
-
日進市五色園1丁目
-
名鉄豊田線米野木
-





